リフォームのケンテック
  • TEL

    0120-25-4145

    受付時間 09:00-18:00(日祝除く)

  • MAIL

    お問い合わせフォームへ

    年中無休24時間承り中

耐震補強と断熱材に包まれた安心で快適な家 大田区E様邸

リフォームのきっかけ

築44年、在来木造2階建にお住いのE様。ライフスタイルの変化に伴い全面改修することになりました。。屋根を除く外壁、内部は間取りの変更を含め、ほぼスケルトンの工事となりました。

  • 耐震補強と断熱材に包まれた安心で快適な家 大田区E様邸
  • 耐震補強と断熱材に包まれた安心で快適な家 大田区E様邸
  • 耐震補強と断熱材に包まれた安心で快適な家 大田区E様邸
  • 耐震補強と断熱材に包まれた安心で快適な家 大田区E様邸

ビフォー
耐震補強と断熱材に包まれた安心で快適な家 大田区E様邸
リフォーム前の玄関

beforeafter_before2_06
アフター
耐震補強と断熱材に包まれた安心で快適な家 大田区E様邸
リフォーム後の玄関


YKKap 断熱ドア
ヴェナートD30 お色はマキアートパイン

そり板を使ったナチュラルなデザインです。タイルのお色ともマッチして植物のグリーンが引き立ちます

耐震補強と断熱材に包まれた安心で快適な家 大田区E様邸

ビフォー
耐震補強と断熱材に包まれた安心で快適な家 大田区E様邸
リフォーム前

ダイニングキッチンと、和室の居間の二間になっていました。

beforeafter_before2_06
アフター
耐震補強と断熱材に包まれた安心で快適な家 大田区E様邸
リフォーム後のリビング

間仕切りを取り去り、対面式のキッチンとリビングルームに。広いLDKは家族団らんのゆとりの空間になりました。大きな窓から臨む中庭の緑が、白いキッチンに映えます。

ビフォー
耐震補強と断熱材に包まれた安心で快適な家 大田区E様邸
リフォーム前

和室との間仕切壁は撤去しますが、左手の柱は構造上必要な柱ですので、デザインを生かしつつ残します。

beforeafter_before2_06
アフター
耐震補強と断熱材に包まれた安心で快適な家 大田区E様邸
リフォーム後

床材は LIXIL ラシッサD 木目タイプ
シンプルなキッチンがリビングのファニチャーの一部として成立しています。

耐震補強と断熱材に包まれた安心で快適な家 大田区E様邸
玄関収納は LIXILのラシッサS

お色はクリエダーク

ビフォー
耐震補強と断熱材に包まれた安心で快適な家 大田区E様邸
リフォーム前

beforeafter_before2_06
アフター
耐震補強と断熱材に包まれた安心で快適な家 大田区E様邸
リフォーム後

鏡の隣は収納扉になっていて、分電盤をさりげなく隠しています。

耐震補強と断熱材に包まれた安心で快適な家 大田区E様邸

耐震補強と断熱材に包まれた安心で快適な家 大田区E様邸

耐震補強と断熱材に包まれた安心で快適な家 大田区E様邸

耐震補強と断熱材に包まれた安心で快適な家 大田区E様邸

ビフォー
耐震補強と断熱材に包まれた安心で快適な家 大田区E様邸
リフォーム前

beforeafter_before2_06
アフター
耐震補強と断熱材に包まれた安心で快適な家 大田区E様邸
リフォーム後


LIXIL リフォーム階段 クリエベール色
手すりもついて明るい階段になりました。

ビフォー
耐震補強と断熱材に包まれた安心で快適な家 大田区E様邸
リフォーム前のキッチン

beforeafter_before2_06
アフター
耐震補強と断熱材に包まれた安心で快適な家 大田区E様邸
リフォーム後のキッチン


TOTO ザ・クラッソ
扉カラーはオプティホワイト
クリスタルカウンターはすりガラスの様な透明感がある仕上がりで、滑らかな手触りです。

耐震補強と断熱材に包まれた安心で快適な家 大田区E様邸

耐震補強と断熱材に包まれた安心で快適な家 大田区E様邸

耐震補強と断熱材に包まれた安心で快適な家 大田区E様邸
背面収納の3mのカウンター

ウォールキャビネットはトールタイプでシンプルで美しいデザインです。

耐震補強と断熱材に包まれた安心で快適な家 大田区E様邸
フロアキャビネットのダストボックス収納

耐震補強と断熱材に包まれた安心で快適な家 大田区E様邸
ビルトインコンロはリンナイのデリシア

耐震補強と断熱材に包まれた安心で快適な家 大田区E様邸
左右の違いが分かりますか?

キッチンの照明は調光調色ができます。温かみのあるこちらの照明は食材の色を美しく見せる効果があります。

耐震補強と断熱材に包まれた安心で快適な家 大田区E様邸
こちらの白昼色は明るさが欲しい時に。清潔感があり元気が出る照明です。

ビフォー
耐震補強と断熱材に包まれた安心で快適な家 大田区E様邸
リフォーム前

beforeafter_before2_06
アフター
耐震補強と断熱材に包まれた安心で快適な家 大田区E様邸
リフォーム後

洗面化粧台は、TOTO エスクア W1500

三面鏡とウォールキャビネット。

ビフォー
耐震補強と断熱材に包まれた安心で快適な家 大田区E様邸
リフォーム前

beforeafter_before2_06
アフター
耐震補強と断熱材に包まれた安心で快適な家 大田区E様邸
リフォーム後


TOTO シンラ HKシリーズ 
Rタイプ 1620サイズ
壁はノアウッド、床はタイル調のライングレー
浴槽はエレノアグレー、カウンターはダウンホワイトのコーディネートです。

耐震補強と断熱材に包まれた安心で快適な家 大田区E様邸
おそうじラクラクカウンター

汚れやすい洗い場まわりのお掃除がいっそうラクになります

耐震補強と断熱材に包まれた安心で快適な家 大田区E様邸

耐震補強と断熱材に包まれた安心で快適な家 大田区E様邸
床ワイパー洗浄(きれい除菌水)ボタンひとつでカビやピンク汚れの発生を抑えます。>ワイパーのように水道水を散布することで、汚れの原因となる角質や皮脂汚れも洗い流し「きれい除菌水」で仕上げます。

光&水流で浮遊する極上バスタイムはTOTOシンラで 江東区Y様邸
調光調色システム

一日の光の移ろいをデザインした4つの明かり。時間の変化やその日の気分で楽しむことができます。

※画像:TOTO HPより抜粋

耐震補強と断熱材に包まれた安心で快適な家 大田区E様邸

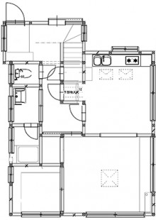
ビフォー
耐震補強と断熱材に包まれた安心で快適な家 大田区E様邸
リフォーム前一階図面

beforeafter_before2_06
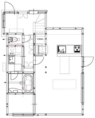
アフター
耐震補強と断熱材に包まれた安心で快適な家 大田区E様邸
リフォーム後一階図面

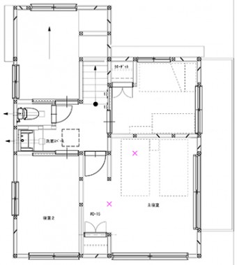
ビフォー
耐震補強と断熱材に包まれた安心で快適な家 大田区E様邸
リフォーム前二階図面

beforeafter_before2_06
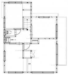
アフター
耐震補強と断熱材に包まれた安心で快適な家 大田区E様邸
リフォーム後二階図面

耐震補強と断熱材に包まれた安心で快適な家 大田区E様邸
外周壁の内壁を全て外して断熱材の充填工事をしました。

壁だけでなく天井上とや床下にも設置し、建物全体が断熱材に包まれている状態に。サッシもすべてペアガラス仕様に交換、断熱性能と同時に、遮音性能も高まりました。

耐震補強と断熱材に包まれた安心で快適な家 大田区E様邸
昭和56年以前の旧耐震基準の建物であったため、耐震工事をを実施。すじかいを新設、耐震金物を設置、間取りに応じた貼り補強など、構造面での見直し工事を随所にしました。

耐震補強と断熱材に包まれた安心で快適な家 大田区E様邸
工事の様子①

キッチンの取付

耐震補強と断熱材に包まれた安心で快適な家 大田区E様邸
工事の様子②

浴室コンクリート工事

耐震補強と断熱材に包まれた安心で快適な家 大田区E様邸
工事の様子③

梁や構造枠の新設

耐震補強と断熱材に包まれた安心で快適な家 大田区E様邸
二階主寝室

耐震補強と断熱材に包まれた安心で快適な家 大田区E様邸
ダウンライトは調光調色ができます。左右の違いが分かりますか?

耐震補強と断熱材に包まれた安心で快適な家 大田区E様邸
お休み前のリラックスタイムには照明を変えるなど、シーンの応じて変えることができます。

ビフォー
acfe468145dd3e15001151f11c665b801
リフォーム前

二階洗面化粧台

beforeafter_before2_06
アフター
耐震補強と断熱材に包まれた安心で快適な家 大田区E様邸
リフォーム後

二階洗面化粧台
TOTO エスクア W750 扉はロイヤルブラウン

耐震補強と断熱材に包まれた安心で快適な家 大田区E様邸
寝室①

耐震補強と断熱材に包まれた安心で快適な家 大田区E様邸
寝室②

耐震補強と断熱材に包まれた安心で快適な家 大田区E様邸
ウォークインクローゼット

 

工事内容  戸建の全面リフォーム
 
工事個所
 
キッチン  TOTO ザ・クラッソ
浴室  TOTO シンラ 1620
建具(内部外部)  玄関ドア YKK  窓・内部建具 LIXIL
全体構造  耐震補強工事 断熱工事
工事費用  約 2.850万円 (税込)
工事日数  約3ヶ月
施工エリア  大田区

 

関連の全面改装を見る

リフォームのケンテック公式Instagramはこちら
page top