リフォームのケンテック
  • TEL

    0120-25-4145

    受付時間 09:00-18:00(日祝除く)

  • MAIL

    お問い合わせフォームへ

    年中無休24時間承り中

水廻り設備と内装をリフレッシュして 明るく広々 世田谷区F様邸

リフォームのきっかけ

築42年のマンションのオーナー様。

キッチン・洗面・ユニットバス・トイレなどの水廻り設備と
洋室の間仕切りを撤去してLDKに、和室を洋室に間取り変更、押入れをクローゼットに、
フローリングやクロスも貼替て、明るくスタイリッシュなリフォームをご検討されていました。

ビフォー
a211ac4f3c158bb5054de6ae544e0d561

beforeafter_before2_06
アフター
c7e2a2c718385e07976a5ba5252d6dae

ビフォー
水廻り設備と内装をリフレッシュして 明るく広々 世田谷区F様邸
リフォーム前のキッチン

beforeafter_before2_06
アフター
水廻り設備と内装をリフレッシュして 明るく広々 世田谷区F様邸
リフォーム後のキッチン

LIXIL TIO W1800にお取替え。
扉カラーは「グロッシーバーチ」シリコンコートによる耐汚染処理などがなされ、汚れが付きにくく落としやすく、キレイが長持ちしお手入れが簡単な扉です。
ワークトップは、ステンレストップのシルクエンボス。ステンレスの中でもサビに強く、お手入れも簡単です。

050a95ce6f63da37943f043489c9075f1
【3段引出しタイプ】

小さなものまでキチンと整理でき、出し入れしやすく収納できます。
1⃣コンロ下
開き扉・コンロ脇小引出し
2⃣調理台下
3段引出し
3⃣シンク下
開き扉

※画像:LIXIL HPより抜粋

d4c7416e05f5041a4a265535c627c231
【ラウンド68シンク】

使いやすい奥行きを確保した独自のラウンドシンク。調理も洗い物もラクにできる機能的なシンクです。
シンク中央部の奥行きは45.5cm。大きな中華鍋も余裕で洗えるゆったりサイズです。
シンク底面と排水口に段差があるので、排水口の上に鍋などを置いてもスムーズに排水できます。

※画像:LIXIL HPより抜粋

水廻り設備と内装をリフレッシュして 明るく広々 世田谷区F様邸
リフォーム後のリビングからみたキッチン

水廻り設備と内装をリフレッシュして 明るく広々 世田谷区F様邸
リフォーム後のキッチンから見たリビング

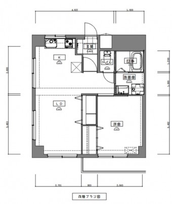
既存は、ダイニングキッチンと洋室という間取でしたが、

間仕切りを撤去してリビングダイニングキッチンに間取り変更しました。

フローリングは、朝日ウッドテック Live Natural オリジナル2P バーチをお選びいただきました。
自然が創りだしたみずみずしい木肌や鮮やかな木目、耐傷性、メンテナンス性、
床暖房などの機能に優れており、ピュアハード塗装を施すことで、塗膜面の白化傷がつきにくくなっています。
天然木の深い味わいとみずみずしさを突き板で表現したデザインで、自然な素材感が特長の柔らかな色合いで、
落ち着きと高級感もありながら、飽きのこないお色です。
ナチュラルスタイリッシュで明るい心地の良い空間になりました。

ビフォー
水廻り設備と内装をリフレッシュして 明るく広々 世田谷区F様邸
リフォーム前の洋室

beforeafter_before2_06
アフター
水廻り設備と内装をリフレッシュして 明るく広々 世田谷区F様邸
リフォーム後のリビング

ビフォー
水廻り設備と内装をリフレッシュして 明るく広々 世田谷区F様邸
リフォーム前の洋室押入れ

beforeafter_before2_06
アフター
水廻り設備と内装をリフレッシュして 明るく広々 世田谷区F様邸
リフォーム後のリビングクローゼット

既存の押入れのスペースには、DAIKEN Hapia 押入棚板セット・押入枕棚板セットを設置。建具も折戸に変更して、たっぷり収納しつつスッキリとクローゼット扉で使いやすく機能的な収納スペースになりました。

ビフォー
水廻り設備と内装をリフレッシュして 明るく広々 世田谷区F様邸
リフォーム前の和室

beforeafter_before2_06
アフター
水廻り設備と内装をリフレッシュして 明るく広々 世田谷区F様邸
リフォーム後の洋室

既存の和室を洋室に間取り変更しました。天井も板張りからクロスに交換してあかるくすっきリとした洋室になりました。

ビフォー
水廻り設備と内装をリフレッシュして 明るく広々 世田谷区F様邸
リフォーム前の和室押入れ

beforeafter_before2_06
アフター
水廻り設備と内装をリフレッシュして 明るく広々 世田谷区F様邸
リフォーム後の洋室クローゼット

既存の押入れのスペースには、リビング同様、DAIKEN Hapia 押入棚板セット・押入枕棚板セットを設置。
建具も折戸に変更して、機能的な収納スペースになりました。

ビフォー
水廻り設備と内装をリフレッシュして 明るく広々 世田谷区F様邸
リフォーム前の和室建具

beforeafter_before2_06
アフター
水廻り設備と内装をリフレッシュして 明るく広々 世田谷区F様邸
リフォーム後の洋室建具

既存の襖からDAIKEN Hapia 片引き戸に変更しました。

ビフォー
水廻り設備と内装をリフレッシュして 明るく広々 世田谷区F様邸
リフォーム前の廊下

beforeafter_before2_06
アフター
水廻り設備と内装をリフレッシュして 明るく広々 世田谷区F様邸
リフォーム後の廊下

ビフォー
水廻り設備と内装をリフレッシュして 明るく広々 世田谷区F様邸
リフォーム前の建具

beforeafter_before2_06
アフター
水廻り設備と内装をリフレッシュして 明るく広々 世田谷区F様邸
リフォーム後の建具

リビングへの片開戸、トイレの片開戸もDAIKEN Hapia 変更しました。統一感のある明るくスッキリとした空間になりました。

ビフォー
水廻り設備と内装をリフレッシュして 明るく広々 世田谷区F様邸
リフォーム前の浴室

beforeafter_before2_06
アフター
水廻り設備と内装をリフレッシュして 明るく広々 世田谷区F様邸
リフォーム後の浴室

LIXIL リノビオVシリーズ Eタイプ 1216サイズ
にお取替え。
壁パネル・浴槽・床カラーもホワイトで統一して、スッキリとした浴室になりました。

【ミナモ浴槽】

浴槽の上縁が広く、湯面の広がりと入浴時の開放感を感じ、角の少ないやわらかな曲線で快適な入浴姿勢ができます。

ミナモ浴槽1
肩やひざまわりひろびろ

洗い場側に張り出した浴槽フランジにより、ひろびろ入浴。

ミナモ浴槽2
両手でしっかり支える

両手でしっかりと身体を支える浴槽内握りバーとエプロン形状。

ミナモ浴槽3
清掃性の高い、ゆるやかなフォルム

角の少ない形状だから、日々のお手入れがしやすい。

          ※画像:LIXIL HPより抜粋

ビフォー
水廻り設備と内装をリフレッシュして 明るく広々 世田谷区F様邸
リフォーム前の洗面化粧台

beforeafter_before2_06
アフター
水廻り設備と内装をリフレッシュして 明るく広々 世田谷区F様邸
リフォーム後の洗面化粧台

LIXIL ピアラ W750にお取替え。
扉色は「グロスホワイト」、
カウンターは「プレーンネオホワイト」を
お選びいただきました。

cf3753f75fd6e9d78c16cb7adbf2e64d
【ひろびろボウル】

底が広くて大容量なので使い勝手抜群!
バケツの水汲みや衣類のつけ置き洗いもしやすいです。
排水口を右奥に配置しているので、作業の邪魔になりません。

※画像:LIXIL HPより抜粋

広々ボウル1
広く作業しやすい底面

底面が広いので、バケツの水汲みや衣類のつけ置き洗いもしやすいです。排水口を右奥に配置しているので、作業の邪魔になりません。

※画像:LIXIL HPより抜粋

広々ボウル2
ハイバックガード一体ボウル

&壁付水栓

つなぎ目や凹凸のないボウルなので、水ハネをサッと拭き取れます。壁付き水栓なので水栓まわりに汚れがたまりにくく、お手入れカンタンです。

※画像:LIXIL HPより抜粋

広々ボウル3
ウェットパレット&ドライパレット

ウェットパレット(写真左)は、コップや泡立てネットなど、濡れものを気兼ねなく置けます。ドライパレット(写真右)は、濡らしたくないものを、一時置きするのに便利。サイドガード付で水だれも防ぎます。

※画像:LIXIL HPより抜粋

ビフォー
水廻り設備と内装をリフレッシュして 明るく広々 世田谷区F様邸
リフォーム前のトイレ

beforeafter_before2_06
アフター
水廻り設備と内装をリフレッシュして 明るく広々 世田谷区F様邸
リフォーム後のトイレ

LIXIL アメージュ手洗器付きにお取替え。

サティスS アクアセラミック
【アクアセラミック】

アクアセラミックのポイントは「超親水性」。陶器表面に付着した汚れの下へ水が入り込み汚れを浮き上がらせ、少量の洗浄水で、汚物を綺麗に洗い流します。

※画像:LIXIL HPより抜粋

サティスS パワーストリーム洗浄
【パワーストリーム洗浄】

強力な水流の「パワーストリーム洗浄」を搭載。トイレを新しくしたときの輝きも、心のときめきも、もちろん清潔さも、長く続きます。

※画像:LIXIL HPより抜粋

ビフォー
水廻り設備と内装をリフレッシュして 明るく広々 世田谷区F様邸
リフォーム前の玄関

beforeafter_before2_06
アフター
水廻り設備と内装をリフレッシュして 明るく広々 世田谷区F様邸
リフォーム後の玄関

フロアータイルも変更して、とても明るく広々とした玄関になりました。

水廻り設備と内装をリフレッシュして 明るく広々 世田谷区F様邸

dbda7083ae0b7d9b9b0f81171c93211d-e1717645646299
解体作業

b73b97404cfb56d13b771a752d9b5f03-e1717645700684
解体作業

7b31c6ab52793228b2e95644621db0ba-e1717645747823
配管作業

a6923c883b18bcc9709e6af80a458542-e1717645780951
床下地

1a337bc7cb2217523459b41cc7f9e32e-e1717645804605
間仕切り設置

4314920e7e7d743554d5ec134cfd575c-e1717645829567
ユニットバス設置

5eca51edf906a0090a5e784c94ee7169-e1717645852327
建具設置

a34ca41e2f39c735d6ce6fbda50b9e4a-e1717645879753
キッチン設置

d2508cd8485a711a42e2d9f4eebacb80-e1717645904410
内装工事

  • 水廻り設備と内装をリフレッシュして 明るく広々 世田谷区F様邸
  • 水廻り設備と内装をリフレッシュして 明るく広々 世田谷区F様邸
  • 水廻り設備と内装をリフレッシュして 明るく広々 世田谷区F様邸
  • 水廻り設備と内装をリフレッシュして 明るく広々 世田谷区F様邸
  • 水廻り設備と内装をリフレッシュして 明るく広々 世田谷区F様邸
  • 水廻り設備と内装をリフレッシュして 明るく広々 世田谷区F様邸
  • 水廻り設備と内装をリフレッシュして 明るく広々 世田谷区F様邸
  • 水廻り設備と内装をリフレッシュして 明るく広々 世田谷区F様邸
  • 水廻り設備と内装をリフレッシュして 明るく広々 世田谷区F様邸
  • 水廻り設備と内装をリフレッシュして 明るく広々 世田谷区F様邸
  • 水廻り設備と内装をリフレッシュして 明るく広々 世田谷区F様邸

 

工事内容  マンション全面リフォーム
 
工事箇所
 
キッチン  LIXIL ティオ W1800
浴室  LIXIL リノビオVシリーズ Eタイプ1216サイズ
洗面  LIXIL ピアラ W750
トイレ  LIXIL アメージュ手洗器付き
フローリング  朝日ウッドテック  ライブナチュラルオリジナル
工事費用  約601万円 (税込)
工事日数  約2か月
施工エリア  世田谷区

 

関連の全面改装を見る

リフォームのケンテック公式Instagramはこちら
page top