リフォームのケンテック
  • TEL

    0120-25-4145

    受付時間 09:00-18:00(日祝除く)

  • MAIL

    お問い合わせフォームへ

    年中無休24時間承り中

食×コミュニケーション×Smileは我家のキッチンスタジオで 大田区M様邸

リフォームのきっかけ

大田区にお住まいのM様邸のリノベーションをご紹介します。RC造三階建ての賃貸併用住宅の一階部分の改修です。LDKを広くされたいとのご希望を叶えるために、RC壁を撤去する大改修となりました。構造計算をした上で、間仕切りのRC壁を撤去します。キッチンや浴室など水回りも大移動しました。

  • 食×コミュニケーション×Smileは我家のキッチンスタジオで 大田区M様邸
  • 食×コミュニケーション×Smileは我家のキッチンスタジオで 大田区M様邸
  • 食×コミュニケーション×Smileは我家のキッチンスタジオで 大田区M様邸
  • 食×コミュニケーション×Smileは我家のキッチンスタジオで 大田区M様邸

ビフォー
食×コミュニケーション×Smileは我家のキッチンスタジオで 大田区M様邸
リフォーム前キッチン

beforeafter_before2_06
アフター
食×コミュニケーション×Smileは我家のキッチンスタジオで 大田区M様邸
リフォーム後キッチン

ビフォー
食×コミュニケーション×Smileは我家のキッチンスタジオで 大田区M様邸
リフォーム前キッチン

beforeafter_before2_06
アフター
食×コミュニケーション×Smileは我家のキッチンスタジオで 大田区M様邸
リフォーム後キッチン


クリナップのステディア アイランド型 W2180
天井をLDから少し下げて間接照明を入れ、
オークのピーリングで仕上げています。

食×コミュニケーション×Smileは我家のキッチンスタジオで 大田区M様邸

食×コミュニケーション×Smileは我家のキッチンスタジオで 大田区M様邸
トールキャビネット(食器棚)クリナップステディア

背面収納は、引違扉のトール収納(一見冷蔵庫?)とカウンター収納の組み合わせです。壁はタイル貼で、棚受けを埋め込んで飾り棚を設置しています。

タイルは水面のような輝きがあるブライト仕上げ。手作り感を演出しラフに成形されています。
平田タイル ステッサ48×248mm

食×コミュニケーション×Smileは我家のキッチンスタジオで 大田区M様邸

食×コミュニケーション×Smileは我家のキッチンスタジオで 大田区M様邸

食×コミュニケーション×Smileは我家のキッチンスタジオで 大田区M様邸

キッチンの脇には少し自由に使えるフリースペースも。ご家族がそろって長い時間を共有できる、笑顔がいっぱいのLDKになりました。

ビフォー
食×コミュニケーション×Smileは我家のキッチンスタジオで 大田区M様邸

beforeafter_before2_06
アフター
食×コミュニケーション×Smileは我家のキッチンスタジオで 大田区M様邸

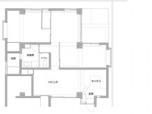
ビフォー
食×コミュニケーション×Smileは我家のキッチンスタジオで 大田区M様邸
リフォーム前図面

beforeafter_before2_06
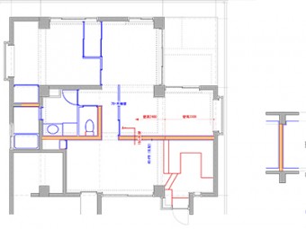
アフター
食×コミュニケーション×Smileは我家のキッチンスタジオで 大田区M様邸
リフォーム後図面
キッチンや浴室、トイレなど水回りの位置が大きく変わっています。

食×コミュニケーション×Smileは我家のキッチンスタジオで 大田区M様邸
◀今回、既存の赤い部分の壁を撤去します。
詳細な調査の下、構造計画を立てて安全性を確認した上での改修工事になります。

食×コミュニケーション×Smileは我家のキッチンスタジオで 大田区M様邸

食×コミュニケーション×Smileは我家のキッチンスタジオで 大田区M様邸
イメージパース画像


弊社では、仕上がりをイメージしていただくために、
CG画像を用いたプレゼンテーションをしています。

食×コミュニケーション×Smileは我家のキッチンスタジオで 大田区M様邸

食×コミュニケーション×Smileは我家のキッチンスタジオで 大田区M様邸

食×コミュニケーション×Smileは我家のキッチンスタジオで 大田区M様邸
工事中①

間仕切り壁を撤去します。

食×コミュニケーション×Smileは我家のキッチンスタジオで 大田区M様邸
工事中②

食×コミュニケーション×Smileは我家のキッチンスタジオで 大田区M様邸
工事中③

給排水管も交換します。

食×コミュニケーション×Smileは我家のキッチンスタジオで 大田区M様邸
LDKの床は朝日ウッドテック ライブナチュラル MRX(ラスティック) 二重床用 銘木単板タイプ

キッチン部分の床はフロアタイル(サンゲツ)です。

食×コミュニケーション×Smileは我家のキッチンスタジオで 大田区M様邸
キッチンの隣のパントリースペース

折戸で出し入れがしやすくなっています。
建具は Panasonic ベリティス

食×コミュニケーション×Smileは我家のキッチンスタジオで 大田区M様邸
収納①

食×コミュニケーション×Smileは我家のキッチンスタジオで 大田区M様邸
収納②

食×コミュニケーション×Smileは我家のキッチンスタジオで 大田区M様邸
収納③

ビフォー
食×コミュニケーション×Smileは我家のキッチンスタジオで 大田区M様邸
リフォーム前玄関

beforeafter_before2_06
アフター
食×コミュニケーション×Smileは我家のキッチンスタジオで 大田区M様邸
リフォーム後玄関

広くなりとても使いやすくなりました。

食×コミュニケーション×Smileは我家のキッチンスタジオで 大田区M様邸
玄関土間は 150角 磁器質タイル貼 LIXIL クレド

食×コミュニケーション×Smileは我家のキッチンスタジオで 大田区M様邸
玄関収納は 折戸の観音開き。可動棚でたっぷり収納できます。Panasonic ベリティス

食×コミュニケーション×Smileは我家のキッチンスタジオで 大田区M様邸

食×コミュニケーション×Smileは我家のキッチンスタジオで 大田区M様邸
リビングに続く扉

食×コミュニケーション×Smileは我家のキッチンスタジオで 大田区M様邸

食×コミュニケーション×Smileは我家のキッチンスタジオで 大田区M様邸
フローリングは

朝日ウッドテック ライブナチュラル MRX(ラスティック)

食×コミュニケーション×Smileは我家のキッチンスタジオで 大田区M様邸

食×コミュニケーション×Smileは我家のキッチンスタジオで 大田区M様邸
床や壁の見切りや納まり①

キッチンのフロアタイルとフローリングの見切りにライン状のステンレスを使っています。

食×コミュニケーション×Smileは我家のキッチンスタジオで 大田区M様邸
床や壁の見切りや納まり②

食×コミュニケーション×Smileは我家のキッチンスタジオで 大田区M様邸
床や壁の見切りや納まり③

食×コミュニケーション×Smileは我家のキッチンスタジオで 大田区M様邸
床や壁の見切りや納まり④

食×コミュニケーション×Smileは我家のキッチンスタジオで 大田区M様邸
床や壁の見切りや納まり⑤

食×コミュニケーション×Smileは我家のキッチンスタジオで 大田区M様邸
床や壁の見切りと納まり⑥

ビフォー
食×コミュニケーション×Smileは我家のキッチンスタジオで 大田区M様邸
リフォーム前のユニットバス

beforeafter_before2_06
アフター
食×コミュニケーション×Smileは我家のキッチンスタジオで 大田区M様邸
リフォーム後のユニットバス


TOTOサザナ 1618サイズ
白を基調にパティオベージュのパネルの組み合わせ

ビフォー
食×コミュニケーション×Smileは我家のキッチンスタジオで 大田区M様邸
リフォーム前の洗面化粧台

beforeafter_before2_06
アフター
食×コミュニケーション×Smileは我家のキッチンスタジオで 大田区M様邸
リフォーム後の洗面化粧台

Panasonic ウツクシーズ W900
+ 洗濯機用ウォールキャビネット
カラーはシルキーゴールド

食×コミュニケーション×Smileは我家のキッチンスタジオで 大田区M様邸
床はクッションフロア貼

食×コミュニケーション×Smileは我家のキッチンスタジオで 大田区M様邸
ツインライン照明(LED) 三面鏡 タッチレス水栓

など使いやすさがいっぱいです

ビフォー
食×コミュニケーション×Smileは我家のキッチンスタジオで 大田区M様邸
リフォーム前のトイレ

beforeafter_before2_06
アフター
食×コミュニケーション×Smileは我家のキッチンスタジオで 大田区M様邸
リフォーム後のトイレ


LIXILサティスSタイプ 手洗いコフレルスリム
背面には爽やか水色のアクセントクロスを貼りました

食×コミュニケーション×Smileは我家のキッチンスタジオで 大田区M様邸
収納もしっかり確保しました

食×コミュニケーション×Smileは我家のキッチンスタジオで 大田区M様邸

ビフォー
食×コミュニケーション×Smileは我家のキッチンスタジオで 大田区M様邸

beforeafter_before2_06
アフター
食×コミュニケーション×Smileは我家のキッチンスタジオで 大田区M様邸
人口木材デッキとフェンスを新設しました。

LIXIL 樹ら楽ステージ木彫 ミディアムウッド
木彫アルミフェンス クリエモカ

 

工事内容  三階建RC造 一階部分リノベーション
 
工事箇所
 
間取  RC壁撤去 間仕切り変更
キッチン  クリナップ ステディア
内装建具  Panasonic  朝日ウッドテック
外構  LIXIL 人口木材デッキ フェンス 防草シート
工事費用  約1,929万円
工期  約2ヶ月
施工エリア  大田区

 

関連の全面改装を見る

リフォームのケンテック公式Instagramはこちら
page top