リフォームのケンテック
  • TEL

    0120-25-4145

    受付時間 09:00-18:00(日祝除く)

  • MAIL

    お問い合わせフォームへ

    年中無休24時間承り中

清楚なホワイトとシックなブラウンの調和が素敵な家 品川区S様邸

リフォームのきっかけ

11階建マンションの10階にお住いのS様。
築36年が経過し、日当たり眺望は良好ですが、色々と気になる点が出てきたので全体的なリフォームをご検討をされていました。水廻り設備のリフレッシュ、給湯器交換に伴う配管工事、床暖房や二重サッシも設置し、老後も安心して快適に暮らせる住まいをプランニングしました。

  • 清楚なホワイトとシックなブラウンの調和が素敵な家 品川区S様邸
  • 清楚なホワイトとシックなブラウンの調和が素敵な家 品川区S様邸
  • 清楚なホワイトとシックなブラウンの調和が素敵な家 品川区S様邸
  • 清楚なホワイトとシックなブラウンの調和が素敵な家 品川区S様邸

ビフォー
清楚なホワイトとシックなブラウンの調和が素敵な家 品川区S様邸
リフォーム前の玄関

beforeafter_before2_06
アフター
清楚なホワイトとシックなブラウンの調和が素敵な家 品川区S様邸
リフォーム後の玄関

マンションの構造上変形した形の玄関。
框の位置を変更し、玄関土間部分を広くしました。
また玄関からの冷気をシャットダウンする為、
引戸を設置しました。

清楚なホワイトとシックなブラウンの調和が素敵な家 品川区S様邸
玄関収納はPanasonic コンポリアのフロートタイプを設置しました。

ビフォー
清楚なホワイトとシックなブラウンの調和が素敵な家 品川区S様邸
リフォーム前の玄関から廊下

beforeafter_before2_06
アフター
清楚なホワイトとシックなブラウンの調和が素敵な家 品川区S様邸
リフォーム後の玄関から廊下

変形した形の玄関を変更し、玄関土間部分を広くすることで、変形した形のキッチンも変更でき、玄関から廊下も明るくオープンになりました。

ビフォー
清楚なホワイトとシックなブラウンの調和が素敵な家 品川区S様邸
リフォーム前のキッチン

壁に囲まれ、少し閉鎖的だったキッチン。

beforeafter_before2_06
アフター
清楚なホワイトとシックなブラウンの調和が素敵な家 品川区S様邸
リフォーム後のキッチン

リビングとの間の壁を取り払い対面キッチンにしました。
LIXIL シエラS1950 にお取替えしました。
扉カラーは、「プレーンウォルナット」という重厚感がしっくりと馴染むお色をお選びいただきました。
清楚なホワイトの壁紙にシックなブラウンの扉色は、お部屋を広々と素敵な空間に演出してくれます。

清楚なホワイトとシックなブラウンの調和が素敵な家 品川区S様邸
キッチンから見たリビングダイニング

清楚なホワイトとシックなブラウンの調和が素敵な家 品川区S様邸
リビングから見たキッチン

清楚なホワイトとシックなブラウンの調和が素敵な家 品川区S様邸
キッチンのイメージイラスト

清楚なホワイトとシックなブラウンの調和が素敵な家 品川区S様邸
リビングから見たキッチン

清楚なホワイトとシックなブラウンの調和が素敵な家 品川区S様邸

ビフォー
清楚なホワイトとシックなブラウンの調和が素敵な家 品川区S様邸
リフォーム前のリビング・キッチン

beforeafter_before2_06
アフター
清楚なホワイトとシックなブラウンの調和が素敵な家 品川区S様邸
リフォーム後のリビング・キッチン

玄関から廊下、キッチンへの動線がすっきり。

ビフォー
清楚なホワイトとシックなブラウンの調和が素敵な家 品川区S様邸
リフォーム前のリビング

beforeafter_before2_06
アフター
清楚なホワイトとシックなブラウンの調和が素敵な家 品川区S様邸
リフォーム後のリビング

リビングダイニングを少し広くして、洋室2部屋を1つに間取り変更しました。

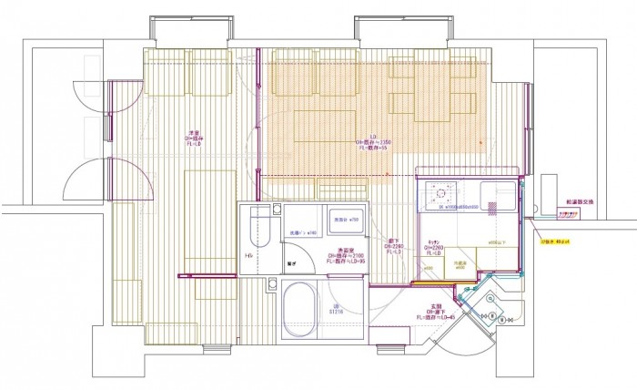
ビフォー
清楚なホワイトとシックなブラウンの調和が素敵な家 品川区S様邸
リフォーム前の平面図

beforeafter_before2_06
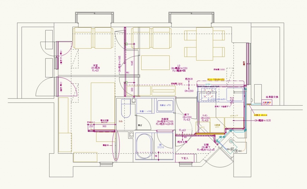
アフター
清楚なホワイトとシックなブラウンの調和が素敵な家 品川区S様邸
リフォームプラン図

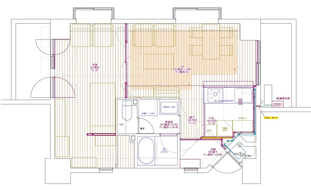
清楚なホワイトとシックなブラウンの調和が素敵な家 品川区S様邸
リフォーム後の平面図

ビフォー
清楚なホワイトとシックなブラウンの調和が素敵な家 品川区S様邸
リフォーム前の左側の洋室

beforeafter_before2_06
アフター
清楚なホワイトとシックなブラウンの調和が素敵な家 品川区S様邸
リフォーム後の洋室

左側の洋室と右側の洋室の壁を撤去して、一部屋に間取り変更しました。

清楚なホワイトとシックなブラウンの調和が素敵な家 品川区S様邸
工事の様子①

リフォーム前の左側の洋室

清楚なホワイトとシックなブラウンの調和が素敵な家 品川区S様邸
工事の様子②

リフォーム前の右側の洋室

清楚なホワイトとシックなブラウンの調和が素敵な家 品川区S様邸
工事の様子③

壁を撤去して一部屋にし、
窓にはインプラスを設置しました。

清楚なホワイトとシックなブラウンの調和が素敵な家 品川区S様邸
リフォーム後の窓

インプラスを設置しました。サッシカラーは、「キャメルウッドG」というお色をお選びいただきました。
床の色とピッタリで、木製のサッシがついているような温かみのあるお色です。
インプラスは、「断熱効果」「結露軽減」「遮音効果」「UVカット」「侵入抑止効果」「経済性」の6つのメリットがあります。

ビフォー
清楚なホワイトとシックなブラウンの調和が素敵な家 品川区S様邸
リフォーム前の洗面室

beforeafter_before2_06
アフター
清楚なホワイトとシックなブラウンの調和が素敵な家 品川区S様邸
リフォーム後の洗面室

リビングとの間の壁を取り払い対面キッチンにしました。
LIXIL エルシィW750 にお取替えしました。
扉カラーは、「クリエラスク」という木の質感を感じるナチュラルで優しくなごむお色をお選びいただきました。

 

工事内容  全面リフォーム
詳細
(設備機器)
キッチン  LIXIL シエラS
浴室  LIXIL
 リノビオVシリーズ
洗面化粧台  LIXIL エルシィ
トイレ  LIXIL
 アメージュ便器リトイレ
詳細
(内装材)
壁天井材  クロス
床材  朝日ウッドテック
工事費用  約752万円(税込)
工事日数  約40日
施工エリア  品川区

 

関連の全面改装を見る

リフォームのケンテック公式Instagramはこちら
page top