リフォームのケンテック
  • TEL

    0120-25-4145

    受付時間 09:00-18:00(日祝除く)

  • MAIL

    お問い合わせフォームへ

    年中無休24時間承り中

1Rマンションを明るく気分の上がる事務所にチェンジ 目黒区M様邸

リフォームのきっかけ

築40年のワンルームマンションを事務所としてのご使用を検討していたM様。

既存のお部屋の水回りはワンルームのお手本のような設備機器の配置で、
浴室は3点ユニット(お風呂と洗面ボウルとトイレが一体になっているユニットバス)とミニキッチンのお部屋です。

事務所用にご使用の為、浴槽は不要という事で、脱衣所エリアを新規作成して
タカラスタンダードのシャワーユニットを設置しました。

ビフォー
b6b8685bff3404ced04c692a2ce238571
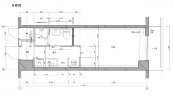
リフォーム前の平面図

beforeafter_before2_06
アフター
2549e5364f5fc31fc0aa83b9d3782989
リフォーム後の平面図

ビフォー
1Rマンションを明るく気分の上がる事務所にチェンジ 目黒区M様邸
リフォーム前の3点ユニット

beforeafter_before2_06
アフター
1Rマンションを明るく気分の上がる事務所にチェンジ 目黒区M様邸
リフォーム後のトイレ・洗面・脱衣スペース

洗面化粧台はLIXIL オフト

トイレはLIXIL アメージュZ にお取替え。

既存は、お風呂と洗面ボウルとトイレが一体になっている3点ユニットバスでしたが、事務所として使用するため浴槽は不要ということだったので、新しく脱衣スペースを確保し、洗面化粧台・トイレ・シャワーユニットを設置しました。

1Rマンションを明るく気分の上がる事務所にチェンジ 目黒区M様邸
リフォーム後のシャワーユニット

タカラスタンダードのシャワーユニット を設置。

どんな空間にもぴったり収まる約2000通りのサイズバリエーションで、縦長も横長も、狭くても広くても、間口・奥行ともに2.5㎝刻みでセレクトしてぴったりに。壁面はホーローだからキレイが続きます

1Rマンションを明るく気分の上がる事務所にチェンジ 目黒区M様邸
リフォーム後のトイレ・洗面・脱衣スペースへのドア

新しく脱衣スペースとしても使用できるように、洗面化粧台・トイレ・シャワーユニットへのドアを設置しました。

ホーロークリーン浴室パネル
【ホーロークリーン浴室パネル】


●ぬくもりをキープして結露も防ぐ●

あらかじめ工場で吹き付けた極厚の発泡ウレタンが、外気を遮断しつつ、浴室内の熱を逃さずキープ。冬場でも結露がつきにくく、快適に入浴できます。


●洗剤なしでらくらくキレイ●

シャンプーや石けんの飛び散りで、実は汚れている壁。普段のお手入れは入浴後にシャワーとスポンジで洗い流すだけでOKです。傷がつきにくいので、長年使ってもお手入れのしやすさは変わりません。

              ※画像:タカラスタンーダード HPより抜粋

キープクリーンフロア
【キープクリーンフロア】

汚れが落ちやすく、ぬめりやカビも抑制、掃除がしやすく水捌けのよい磁器素材のフロアです。硬いブラシで擦っても、風呂イスを引きずっても傷がつきにくい磁器タイルは、皮脂などの頑固な汚れもゴシゴシお掃除できます。天然石をそのまま切り出したような印象を与える磁器タイルは、バスルームの足もとにラグジュアリーな彩りを添えます。

              ※画像:タカラスタンーダード HPより抜粋

どこでもラック
【どこでもラック】

ベースが金属の壁だから「どこでもラック」をはじめとするマグネットアイテムがしっかりくっつきます。
POINT❶ 必要なときに必要な分だけ収納を増やせる
POINT❷ 浮かせる収納で清潔キープ、床掃除もスムーズ
POINT❸ 使いやすく、ちょうどいい高さに調節できる

              ※画像:タカラスタンーダード HPより抜粋


ビフォー
1Rマンションを明るく気分の上がる事務所にチェンジ 目黒区M様邸
リフォーム前のキッチン

beforeafter_before2_06
アフター
1Rマンションを明るく気分の上がる事務所にチェンジ 目黒区M様邸
リフォーム後のキッチン

LIXIL Tio にお取替え。
扉色は北欧風のインテリアと調和する柔らかな色合いも魅力的な「ノールグリーン」をお選びいただきました。

ビフォー
1Rマンションを明るく気分の上がる事務所にチェンジ 目黒区M様邸
リフォーム前の洗濯機置き場

beforeafter_before2_06
アフター
1Rマンションを明るく気分の上がる事務所にチェンジ 目黒区M様邸
リフォーム後の洗濯機置き場

既存の洗濯機置き場はキッチンの横にあり、冷蔵庫を置くスペースがなかったので、冷蔵庫のスペースを確保して洗濯機置き場を設置しました。

クロスは、キッチンの北欧風のインテリアと調和するグリーンのストライプをお選びいただきました。

ビフォー
1Rマンションを明るく気分の上がる事務所にチェンジ 目黒区M様邸
リフォーム前の分電盤

beforeafter_before2_06
アフター
1Rマンションを明るく気分の上がる事務所にチェンジ 目黒区M様邸
リフォーム後の分電盤

既存の分電盤は剝き出しで無骨でしたが、今どきの分電盤はスッキリ。クロスも洗濯機置き場と同様に北欧風のインテリアと調和するグリーンのストライプをお選びいただきました。

ビフォー
1Rマンションを明るく気分の上がる事務所にチェンジ 目黒区M様邸
リフォーム前の洋室

beforeafter_before2_06
アフター
1Rマンションを明るく気分の上がる事務所にチェンジ 目黒区M様邸
リフォーム後の洋室

事務所としてお使いになるということで、明るくテンションの上がる雰囲気のお部屋をご希望でした。
ベランダに向かって左側のクロスは、水廻り同様に北欧風のインテリアと調和するように、北欧フィンランドの最古のテキスタイルブランド「FINLAYSON」「アンニ」のパターンの壁紙に。
生き生きとして親しみの持てる花柄で、シンプルなシェイプと細かなディティールのないパターンは、伝統的でもあり、どこか懐かしく、継続して使える新鮮な魅力を持ったクロスです。

ビフォー
1Rマンションを明るく気分の上がる事務所にチェンジ 目黒区M様邸
リフォーム前の洋室

beforeafter_before2_06
アフター
1Rマンションを明るく気分の上がる事務所にチェンジ 目黒区M様邸
リフォーム後の洋室

ベランダに向かって右側のクロスもお部屋の雰囲気に合うよう、北欧パターンと相性の良い塗りのテクスチャーとカラーで揃えました。消臭機能(ルームエアー)付きの壁紙です。

ビフォー
1Rマンションを明るく気分の上がる事務所にチェンジ 目黒区M様邸
リフォーム前の洋室

beforeafter_before2_06
アフター
1Rマンションを明るく気分の上がる事務所にチェンジ 目黒区M様邸
リフォーム後の洋室ドア

既存は間仕切りのないワンルームでしたが、事務所としての使用ということで、洋室と水回りを仕切るようにドアを設置しました。
北欧風のお部屋の雰囲気に合うように、フェミニンでナチュラル&アンティークでカフェスタイルのようなデザインコンセプトのLIXIL ラシッサD パレット「ブルーペイント」色をお選びいただきました。
表情豊かなナチュラルで優しいカラーは、北欧風のお部屋を更にアップグレード。

222f363c6615298557fccfb4638795011
解体工事中▶▶▶

4c3d2cb6b4301d1503c21102f74f8f231
解体工事中▶▶▶

af00b79b716e6851b362c282a1e29d5b
解体工事中▶▶▶

2738123dcc3fd0085b1da81db17e5ad9
墨だし

251ed0946a01ac5ebeb6b61bdd85693e
既設配管▶▶▶

bff6a828b8e1a8560c3a77a0e62f7934
既設配管▶▶▶

2368d7b22549f84030665c3c25b9c549
配管工事中▶▶▶

2764155e8d36c8d625473e786d5616fc
配管工事中▶▶▶

70eb8a3a94790ec24d746e5900563c8c
配管工事中▶▶▶

d0942af88f3d5f651f25421f88f0d29d
配管工事中▶▶▶

28de1b0cefe71a1ea21796b05d32b420
木工事▶▶▶

640066063ccacdee569d1fca58993cdf
木工事▶▶▶

25b5d19922dd388c24b260c9d63f9d46
シャワーユニット取付▶▶▶

dd84bd0e3836e6297b2a149c8d4923ac
シャワーユニット取付▶▶▶

2cc6dd1f742e7efafa55edb50a1ad5a2
シャワーユニット取付▶▶▶

d1765760ee609e09302da8937dba5513
シャワーユニット取付▶▶▶

e924e693131d5de3ea51719f82653195
シャワーユニット取付▶▶▶

4cc443a4727903dba56d1d59c904fed6
配管状況

7891c17d962908153a4cd1be923afba9
木工事▶▶▶

e5bca64d5f71b577971d42935d575ab5
木工事▶▶▶

b8cea7bb4038b57f927737afda2447d7
木工事▶▶▶

eaf68a32ffb62cb54717706308d05a71
木工事▶▶▶

073ef98d515af400cfcbac060537e1221
木工事▶▶▶

55d618d6ad0f681a8e5aa308ad51703a
木工事▶▶▶

b5b9a6fef7e51792d10c71fd575cce29
木工事▶▶▶

61d39fc028fa2f06306f607e1f196cca
木工事▶▶▶

dd5a01e17d00625a9fa83186f3740b41
木工事▶▶▶

790f0fa5206e247ab54ff8774d54a47b
クロス貼りおよび床材施工▶▶▶

4336a4f469f72cfe4a1353428df23019
クロス貼りおよび床材施工▶▶▶

cb64ddd2c877ac38367a285d7a58a7cb
クロス貼りおよび床材施工▶▶▶

ee5988ae8d96360d1de9ad3830d23dc5
設備機器取付▶▶▶

886d552da7b770b31532323fc07762c8
設備機器取付▶▶▶

b0290da27935de287d17f75f6dfcaca3
設備機器取付▶▶▶

971d0af6273868fb57111a5097d772a5
設備機器取付▶▶▶

df4f7b48e07b23ca966fb3e4c597c845
設備機器取付▶▶▶

PA2100331
建具取付

  • 1Rマンションを明るく気分の上がる事務所にチェンジ 目黒区M様邸
  • 6142
  • 3234
  • 4191
  • 5166

1Rマンションを明るく気分の上がる事務所にチェンジ 目黒区M様邸
お客様と記念に一枚撮らせていただきました。

 

工事内容  マンション全面リフォーム
 
工事箇所
 
シャワーユニット  タカラスタンダード
洗面
化粧台
 LIXIL オフト
トイレ  LIXIL アメージュZ
キッチン  LIXIL Tio
工事費用  約377万円
工期  約1ヶ月
施工エリア  目黒区

 

関連の全面改装を見る

リフォームのケンテック公式Instagramはこちら
page top