リフォームのケンテック
  • TEL

    0120-25-4145

    受付時間 09:00-18:00(日祝除く)

  • MAIL

    お問い合わせフォームへ

    年中無休24時間承り中

トップライトの採光を利用した間取り変更 目黒区H様邸

リフォームのきっかけ

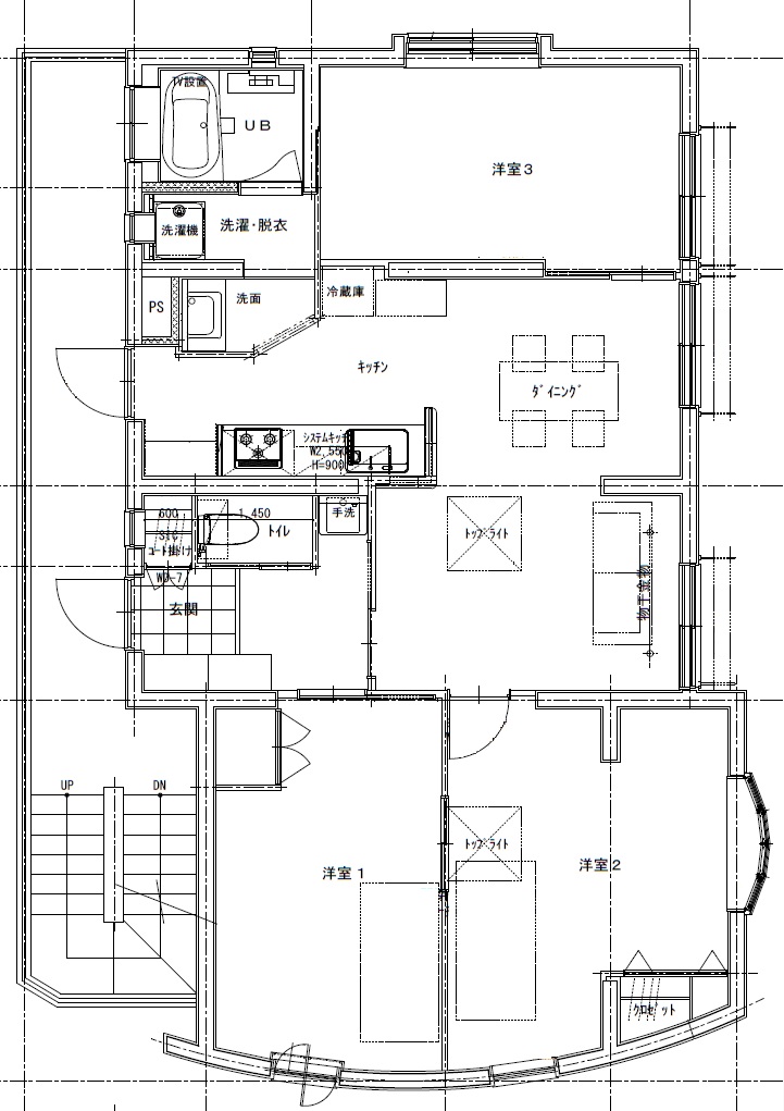
ビフォー
a57103bd278cca6455c864867d6c7a50
リフォーム前の平面図

beforeafter_before2_06
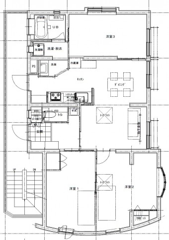
アフター
改装後図面
リフォーム後の平面図

一部間取り変更することで暮らしやすい住まいに

間取り変更を伴う全面的なリフォームのご依頼を頂きました。
以前は、2か所あったトイレを玄関脇1か所に間取りを変更して、トイレだった場所を洗面脱衣室にしました。洗濯機置き場だった場所には、洗面コーナーを新設し、効率的な家事動線になりました。
勝手口のドアは、コンロの近くということもあり、カバー工法で耐熱ドアに変更しました。
また、キッチンスペースをダイニング側に位置変更することで、ハイカウンターユニットを設置し、収納を充実させました。
玄関は、トイレの位置を変更することで、コート掛けを新設、手洗いスペースも向きを変えることで使い勝手の良い水回りになりました。

ビフォー
927f0c0fa956fc6d00a9570861df64902
リフォーム前のキッチン

beforeafter_before2_06
アフター
080220f0c1be674ec7ac7e3818d74310
リフォーム後のキッチン

TOTO ザ・クラッソ I型2550にお取替え。
扉色は、クラムホワイトをお選びいただきました。
白で統一されたキッチンは、とても明るくて広々としたキッチンになりました。

cd97b1b8b77156153f0492d4cae20da91
●スクエアすべり台シンク●

シンクは溝や段差がない、スクエアでシンプルな形状。すべり台のように排水口に向かって流れていくのでお手入れも簡単です。網かごのごみを捨て、水で洗ったあとに「きれい除菌水」をふきかければ、嫌なヌメリを抑えてきれいが長持ちします。

d44a47f1270fd23cf662cf20e03249e71
●ガラストップ両面焼きコンロH●

ガラストップの表面に親水性コートを施してあるので、水で汚れが浮き上がり、油などのこびり付きのお手入れがラクラクです。またグリルの庫内は凹凸が少なく、お手入れがしやすい構造になっています。

f0c4483c690f672dec194c613cd6285e1
●ゼロフィルターフードeco●

薄さ35mmのスリムな外観。整流板は手前と奥が外れる両開き式で、取り付けたまま表も裏もサッとひとふきできるから、いつでもきれいにお手入れラクラク。手前側の照明は手元を明るく照らすので、作業効率もアップします。

ビフォー
7dacf8c85f55662745e5f511d001e28e1
リフォーム前のキッチン出入口

beforeafter_before2_06
アフター
a94abcd61009143d9b978a0b36cb5df51
リフォーム後のキッチン出入口

片引き戸は、DAIKENのハピアシリーズ、ネオホワイト。縦長窓は、イージーオーダーでステンドグラス柄のデザインに変更し明るく素敵な雰囲気になりました。

ビフォー
ff1b78418ad3c5c8696b1b52f303394b1
リフォーム前の勝手口ドア

beforeafter_before2_06
アフター
1b7167abb7fd7d53245693dee77165b31
リフォーム後の勝手口ドア

LIXIL リシェント勝手口ドア 断熱仕様 K型にお取替え。断熱仕様 は、中空層の働きで、熱を逃しにくい「複層ガラス」を採用。優れた断熱効果を生み出し、結露の発生を抑えます。またフラットスライド構造により、高い気密性、操作性、デザイン性を実現。採風時には、引き出してスライドさせるだけのスマートな操作です。

ビフォー
064f96828801624d8ddf94de0fb2b3f91
リフォーム前の浴室

beforeafter_before2_06
アフター
4459698fc5b56cb2a30136fac04395df1
リフォーム後の浴室

TOTO リモデルバスルーム ひろがるWYシリーズ 1418にお取替え。アクセントパネルは自然の風合いを生かしランダムに積み上げたモダンな石目柄の「パティオベージュ」というお色です。

b03e72e352b7610ed268ea4e376b1bd91
【浴槽】
ゆりかごに包まれるような新感覚の「クレイドル浴槽」。
お掃除ラクラク人大浴槽の表面は、はっ水・はつ油クリア層に覆われ皮脂も弾いて落としやすくします。

【床ワイパー洗浄(きれい除菌水)】
ボタンを押すだけで「皮脂・角質汚れ」を洗い流し、「きれい除菌水」で除菌仕上げ。カビやピンク汚れの発生を抑えます。

【お掃除ラクラク ほっカラリ床】
冷機をシャットアウトする、W断熱構造!
翌朝にカラリと乾くので、お掃除がラクラクです。
親水パワーの効果で軽くこすれば汚れがスッキリ落ちます!クッション性にもすぐれていてまるで畳のようなやわらかさ。ひざをついても痛くありません。

【浴室テレビ】
鮮やかな発色で、彩り豊かなハイビジョン画質を再現するLEDバックライトの16V型液晶を採用。浴槽に入りながらでも、正面と変わらず美しい映像を楽しむことができ、ゆったりと快適なバスタイムを。

ビフォー
bf1b4ac3cd30d494221bb3c0757bb2ce
リフォーム前のトイレ

beforeafter_before2_06
アフター
56c04618a4372391abeea1c248cdb6961
リフォーム後の洗濯機置き場

もともと浴室隣にあったトイレを洗濯機置き場と脱衣室に変更しお洗濯も入浴も快適になりました。

fd91baf6f81b5450a14d764a1788e97a1

9d444a4948c6bd71e10621e18f71a6d41

リフォーム後の洗面コーナー

リフォーム前洗濯機置き場場所に、洗面コーナーを設置しました。入口が下がり壁になっているので圧迫感がなく、とても素敵な空間になりました。

ビフォー
1b243565b9edad492e1479410dd223311
リフォーム前の洗濯機置き場

beforeafter_before2_06
アフター
eaa0793fae582fc311af409c5d7a43ab2
リフォーム後の洗面化粧台

TakaraStandardのホーロー洗面化粧台ファミーユにお取替え。ホーローは、汚れてもお手入れ簡単!湿気や熱に強く、腐食せず、頑丈で色あせないからとても長持ちします。

【ハイバックカウンター】
水栓の根元に水がたまらないので汚れにくく、継ぎ目のない一体成形だからお手入れもラクラク。

【2WAYカウンター】
濡れたものはウェットエリア、濡らしたくないものはドライエリアと便利に使い分けできます。

【スタイリッシュ三面鏡】
広範囲を照らすワイドなLED照明。
くもり止め+防汚のクリーンコーティングで汚れもサッとひと拭き。ミラーの下には小物の収納がしやすい引き出しを装備。

【洗面ルームヒーター】
吊戸棚一体型の冬は暖かい温風、夏は涼しい涼風が出ます。


ビフォー
4f13a64af6e2dd6e1c04b1a46439c32f2
リフォーム前の玄関収納

beforeafter_before2_06
アフター
4632383437b416d9cfebc80549059a8a2
リフォーム後の玄関収納

DAIKEN ハピアシリーズをお選びいただきました。
扉裏には、傘やスリッパも収納できます。鏡も今までより高い位置までの大きな鏡で、玄関全体が明るくなりました。

617b1f2f7a52540bbf3bdbc9f5b715011

364e3d0f25b446fb7d164ebc680e85d91

リフォーム後の玄関コートクローゼット

トイレの位置を60センチ移動して、玄関にコートクローゼットを設置しました。奥には棚もあり、収納力抜群です。

ビフォー
a70d616950a0c79bdd41217e8b96dfa61
リフォーム前の手洗い

beforeafter_before2_06
アフター
0b72dbb2b763ec21bf8aa2ea8dc200801
リフォーム後の手洗い

洗面コーナーと同じTakaraStandardのホーロー洗面化粧台ファミーユにお取替え。洗面台の向きを変えることで、鏡の影響もあり明るい玄関ホールになりました。

ビフォー
10cefbe6eb12380d91b3194ee5e1fc7f4
リフォーム前のトイレ

beforeafter_before2_06
アフター
e5def18ecf096ed7cb4ef2b5dd8c54441
リフォーム後のトイレ

TOTO ネオレストRH1にお取替え。

【除菌】
「きれい除菌水」が、黒ずみや輪じみの原因となる、目に見えない「菌」を除菌し、トイレのきれいを保ちます。トイレ使用後に「きれい除菌水」が、ノズルの内側も外側も自動で洗浄・除菌。使用していないときも定期的に洗浄することで、ノズルのきれいが長持ちします。

【防汚】
菌すら入り込めないナノレベルになめらかな便器表面で、優れた耐久性があり、汚れが『ツルッ』と落ちて、汚れがつきにくいです。

【清掃】
汚れがたまりやすい便器のフチ裏がないので、汚れが見えにくかった死角もなく、手前から奥までぐるりとシートでふくだけでトイレ掃除できます。本体と便器の隙間も、手動でリフトでき、お掃除楽々です。
渦を巻くようなトルネード洗浄が、汚物が付着しやすい便器後方に勢いよく当たるので、少ない水で汚れを効率的にし洗浄します。

【オート機能】
便器に近づくと…自動で便ふたを開きます。
便座に座ると…脱臭を行い、ウォシュレット使用前後にはノズルを自動で洗浄します。
便座から立つと…便器を自動で洗浄します。
便座から離れると…自動で便ふたを閉じます。


ビフォー
3b6c551a1aecf60f1263342141e973281
リフォーム前の食堂

beforeafter_before2_06
アフター
99282a9699fe17565205eb416b36561e1
リフォーム後のリビング

ビフォー
0e7e289f6067a6d6dbc4f838be0f14011
リフォーム前のリビングのクローゼット

beforeafter_before2_06
アフター
14ebde8822ef8f8ee70add2e25ddd9251
リフォーム後の洋室1

リビングとして使っていたお部屋を2分割に間取り変更しました。クローゼットを撤去したので、広々としました。

bcb3190864f59e5eaa86a4346fa1c6691
リビングとして使っていたお部屋は、小窓のある間仕切りで2部屋にしました。トップライトを利用し、間仕切り上部の小窓から差し込む光で、明るく落ち着いた雰囲気のお部屋になりました。

ビフォー
87dfe2828329d2c05a6061b40cf304db1
リフォーム前のリビング

beforeafter_before2_06
アフター
92d89f8bac84ef136de5da167fa344711
リフォーム後の洋室2

P6160039
リフォーム後の洋室2トップライト

P6160041
リフォーム後の洋室2トップライト


ビフォー
73594235daec15b231e8dd7c0a80c5f61
リフォーム前のリビング物入

beforeafter_before2_06
アフター
979c2df1a8a6bcacfaa6ca6a841b381a1
リフォーム後の洋室2クローゼット

ビフォー
e21cbfbb342efbdd3779b52a2ca6ab421
リフォーム前の洋室

beforeafter_before2_06
アフター
4e1fff74841cff4ce2d208d736acacd81
リフォーム後の洋室3


以前はトイレ・浴室への出入口がありましたが、出入口をダイニングへの一か所にすることで、広々と使い勝手の良いお部屋になりました。

 

工事内容  戸建全面リフォーム
 
(設備機器)
 
キッチン  TOTO ザ・クラッソ
浴室  TOTO リモデルバスルーム ひろがるWYシリーズ
洗面化粧台  TakaraStandardのホーロー洗面化粧台ファミーユ
トイレ  TOTO ネオレストRH1
工事費用  約1620万円 (税込)
工事日数  約3ヶ月
施工エリア  目黒区

 

関連の全面改装を見る

リフォームのケンテック公式Instagramはこちら
page top