リフォームのケンテック
  • TEL

    0120-25-4145

    受付時間 09:00-18:00(日祝除く)

  • MAIL

    お問い合わせフォームへ

    年中無休24時間承り中

二世帯住宅の二階の間取り変更と水廻り設備全てをリフォーム! 世田谷区K様邸

リフォームのきっかけ

家族構成が変わったため、二世帯住宅の二階部分を全面改修し、
ご夫婦2人と猫が快適に住めるオープンな空間にリフォームをご希望でした。

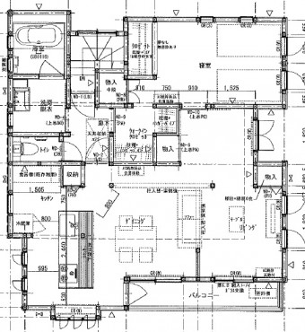
ビフォー
Before図面
リフォーム前
2階平面図

beforeafter_before2_06
アフター
After図面
リフォーム後 2階平面図

3階天井収納への階段を撤去し、はしごを設置。
そのスペースを活用して、浴室と洗面脱衣室を
広くしました。
キッチンは向きを変えてオープンキッチンに!
洋室AとBを撤去し、広々としたリビングダイニングに
リフォームしました。 洋室Cの出入口と、階段踊り場にあった物入スペースに、ウォークインクロゼット設置。
主寝室へはリビングから出入できるようにしました。

ビフォー
8c32cbe83e223cc28c481755aa95de4d
リフォーム前の
キッチン

beforeafter_before2_06
アフター
3b0eb19c74f18e9d18d8b97a54425c052
リフォーム後のキッチン
LIXIL リシェルSIにお取替えしました。
扉の色はフロマージュアイボリーをお選び頂きました。

既存のキッチンは、食堂に対面しているとはいえ開口の間口が狭く、使い勝手がよくありませんでした。ご夫婦が楽しく快適な時を過ごすことができるように、壁を撤去し、キッチンの向きを変更しました。調理した料理をよりスムーズに食卓に運ぶことができる「動線」を確保し、シンク側・コンロ側のどちら側からもキッチンに入れるオープンキッチンにリフォームしました。ワークトップは人造大理石。350℃に熱した空の鍋を20分間放置しても、著しい変色・変形しない優れた耐熱性を実現。

らくパッと収納
●らくパッと収納●

収納スペースをムダなく活かした立体構造で大容量を収納。

①小物をトレーで収納
②水廻りエリア
③調理のエリア
④加熱調理エリア
⑤重い物やストックの収納
※画像:LIXIL HPより抜粋

ひろまる3口コンロ
●ひろまる3口コンロ●

バーナー間隔が広く、3口同時に使っても鍋振りもできるひろびろ設計、2層コート構造の硬質カラーホーローは、汚れがつきにくく、熱や衝撃にも強いトップです。

ハンズフリー水栓
●ハンズフリー水栓●
吐水口に内蔵されたセンサーが物や手の位置と動きを感知して、吐水も止水も自動で行います。シンク作業がラクになって、節水もできる水栓です。

二世帯住宅の二階の間取り変更と水回り全てをリフォーム!
リビングから見たキッチン

二世帯住宅の二階の間取り変更と水回り全てをリフォーム!
キッチンから見た
リビングダイニング

二世帯住宅の二階の間取り変更と水回り全てをリフォーム!

二世帯住宅の二階の間取り変更と水回り全てをリフォーム!
リビングから見た
ダイニングキッチン

二世帯住宅の二階の間取り変更と水回り全てをリフォーム!

ビフォー
10cefbe6eb12380d91b3194ee5e1fc7f1
リフォーム前の
トイレ

beforeafter_before2_06
アフター
d8c8925595edc9af8f329dbc5da0768f2
リフォーム後のトイレ

TOTOレストパルI型手洗い付きにお取替えしました。
既存のトイレは、トイレ内に収納スペースがあったので、
使い勝手がよく、コンパクトなのに大容量の収納ができるTOTOレストパルをお選びいただきました。
凹凸も少なく、ふき掃除も簡単で、手の届きにくかった大便器後ろもすき間がないのでお掃除ラクラクです。
床に置いていた小物類もキャビネットに収納できすっきり片付くので、床面のお掃除もスムーズです。
タンク上の手洗器は、限られた空間を有効活用できます。棚付二連紙巻器は、棚に携帯電話などの小物を置いたり、
手をついて体を支えられる耐荷重のある棚は、立ち座りのサポートとしても使用できます。


ビフォー
二世帯住宅の二階の間取り変更と水回り全てをリフォーム!
リフォーム前の
洗面脱衣室

beforeafter_before2_06
アフター
二世帯住宅の二階の間取り変更と水回り全てをリフォーム!
リフォーム後の洗面脱衣室

LIXIL L.C.(エルシー)にお取替え。
間取り変更して、洗面脱衣室は以前より広いスペースになりました。
●キレイアップ水栓&キレイアップカウンター●
水栓取付部が隠れているので水がたまらず、拭き掃除が簡単です。
洗面器と一体成形のカウンターなので、つなぎ目などの凹凸がないので、飛び散った水滴もサッとひと拭き。
●ひろびろストッカー●
収納キャビネットは奥行500mmとコンパクトなのに、底面積が広く、キャビネットの隅々まで収納できます。
奥行きが500mmとコンパクトだから、動作スペースを大きく広げることができ、洗濯などの作業や人の行き来などが楽になります。

ビフォー
117c0a5e7ee74d3b1d9a4e3bcf9b14de1
リフォーム前の
ユニットバス

LIXIL アライズ1616 にお取替え。

浴槽の向きを変更して、1600ロング浴槽で明るく広々とした空間で

リラックスタイムを。

beforeafter_before2_06
アフター
二世帯住宅の二階の間取り変更と水回り全てをリフォーム!
リフォーム後のユニットバス

壁パネルは、ボテチーノベージュ。
流れ模様のある大理石、乱形組石など天然石の豊かな表情をモチーフに上質な空間を演出します。

くるりんポイ排水口
●くるりんポイ排水口●
浴槽からの排水でうずを起こし排水口をキレイにします。
※画像:LIXIL HPより抜粋

サーモバスS
●サーモバスS●
浴槽保温材と保温組フタのダブル構造でお湯が冷めにくい。
※画像:LIXIL HPより抜粋

キレイサーモフロア
●キレイサーモフロア●
①スポンジでキレイ。
②ヒヤッとしない。
③水はけがよくすべりにくい。
※画像:LIXIL HPより抜粋


ビフォー
二世帯住宅の二階の間取り変更と水回り全てをリフォーム!
リフォーム前の洋室C

beforeafter_before2_06
アフター
二世帯住宅の二階の間取り変更と水回り全てをリフォーム!
リフォーム後の寝室

窓の雰囲気に合わせて、
壁紙 をLilycolor ヨーロピアン調
LW-2792でアクセントをつけ、
華やかで落着きのある寝室に!

ビフォー
二世帯住宅の二階の間取り変更と水回り全てをリフォーム!
リフォーム前の
3F天井収納への階段

浴室と洗面脱衣室を広くするために3階天井収納への階段を撤去、はしごを設置しました。

beforeafter_before2_06
アフター
二世帯住宅の二階の間取り変更と水回り全てをリフォーム!

二世帯住宅の二階の間取り変更と水回り全てをリフォーム!
リフォーム後の
3F天井収納へのはしご
階段からはしごに変更したことで、
廊下が広々とすっきりしました。

二世帯住宅の二階の間取り変更と水回り全てをリフォーム!

工事内容  水廻り設備を中心に全面的なリフォーム
詳細
(設備機器他)
キッチン  LIXIL リシェルSI
浴室  LIXIL アライズ1616
洗面化粧台  LIXIL エルシー
トイレ  TOTO レストパルⅠ型
建具  Panasonic ベリティス
工事費用

 約 1125万円(税込)

工事日数  約3ヵ月
施工エリア  世田谷区

関連の全面改装を見る

リフォームのケンテック公式Instagramはこちら
page top