リフォームのケンテック
  • TEL

    0120-25-4145

    受付時間 09:00-18:00(日祝除く)

  • MAIL

    お問い合わせフォームへ

    年中無休24時間承り中

老朽化した配管も更新ー安心して住める住まいに 中央区N様邸

リフォームのきっかけ

マンションにお住まいのN様。
築年数も達ち、配管等見えない部分の老朽化を心配されていました。
また荷物が多いのに収納が少ないのもお悩みでした。
今回配管更新も含めた全面的なリフォームを実施。
室内側にあった給湯器をベランダに移設したり、浴室とトイレを分離、また収納を増やすなど
暮らしやすさを考慮してプランニング。
安心して住める住まいが完成しました。

老朽化した配管も更新ー安心して住める住まいに
リフォーム後の洋室

老朽化した配管も更新ー安心して住める住まいに
リフォーム後の壁面収納

リビングの一角には壁面収納[Panasonic キャビオス]を設置。

収納が少なかったので、今回リビングの2ヶ所に大容量のクローゼットを新設しました。

老朽化した配管も更新ー安心して住める住まいに
リフォーム後のクローゼット①

老朽化した配管も更新ー安心して住める住まいに
リフォーム後のクローゼット②

ビフォー
老朽化した配管も更新ー安心して住める住まいに
リフォーム前のキッチン

beforeafter_before2_06
アフター
老朽化した配管も更新ー安心して住める住まいに
リフォーム後のキッチン

クリナップ ラクエラ W2250にお取替え。
お色はグラセウッドアッシュという鏡面の木目柄です。


老朽化した配管も更新ー安心して住める住まいに
リフォーム後のキッチンカウンター

傷が目立ちにくいようコイニング加工がされたステンレスワークトップ。
収納は全てスライド収納で、下部の収納は背の高いものも立てたままスッポリ入るトール足元収納となっています。

老朽化した配管も更新ー安心して住める住まいに
リフォーム後のキッチン吊戸&レンジフード

フードは[フラットスリムレンジフード]
スリムでスッキリしたデザインです。省エネ性の高いLED照明が搭載してあります。フラットな内面形状で、お手入れもかんたんです。

老朽化した配管も更新ー安心して住める住まいに
吊戸棚には[ハンドムーブ]を採用。
しまった食器や調理器具を目の前の高さに手動で手軽に下ろせます。
使いやすさにこだわった収納システムです。
今回はH700の水切りタイプを施工しました。

老朽化した配管も更新ー安心して住める住まいに
リフォーム後の背面収納

背面収納はカップボード+家電収納プランです。
家電収納の下はゴミ箱がスッキリと収納できるようになっています。

ビフォー
老朽化した配管も更新ー安心して住める住まいに
リフォーム前の給湯器

以前は室内側にあった給湯器

beforeafter_before2_06
アフター
老朽化した配管も更新ー安心して住める住まいに
リフォーム後の給湯器

今回は配管をやり直し、給湯器をベランダに移設しました。

ビフォー
老朽化した配管も更新ー安心して住める住まいに
リフォーム前の3点ユニット

beforeafter_before2_06
アフター
老朽化した配管も更新ー安心して住める住まいに
リフォーム後のユニット

Panasonic シャワー&パウダーにお取替え。
シャワー&パウダーでは、3点ユニットを簡単に[シャワー・トイレ別]もしくは[シャワー・洗面別]というユニットに取り替えることができます。

シャワー&パウダー
※画像:Panasonic HPより抜粋

狭くて、掃除の手間のかかる浴槽は使わないという単身者向けの賃貸物件やアパートなどにもオススメです。

老朽化した配管も更新ー安心して住める住まいに
リフォーム後の玄関&廊下

老朽化した配管も更新ー安心して住める住まいに
リフォーム後の玄関

玄関収納は吊戸と下台に分かれたタイプ。
W1250あるので、たっぷり収納できます。

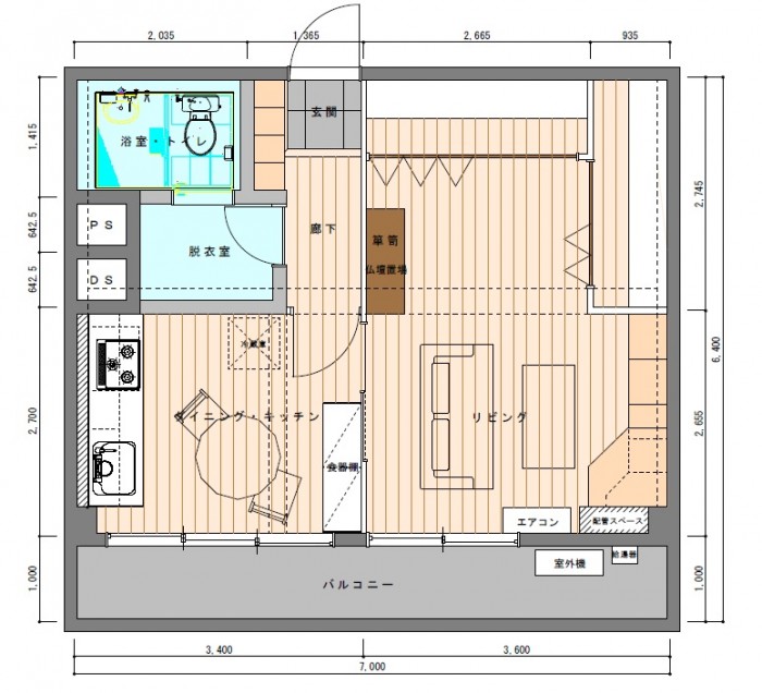
改修図面
改装プラン

工事内容  マンション全面リフォーム
詳細(設備機器) キッチン  クリナップ ラクエラ W2250
 シャワー  Panasonic シャワー&パウダー
トイレ  Panasonic シャワー&パウダー
給湯器  リンナイ
壁面収納  Panasonic キュビオス
工事費用

 約 670万円(税込)

工事日数  約1ヶ月半
施工エリア  中央区

関連の全面改装を見る

リフォームのケンテック公式Instagramはこちら
page top