リフォームのケンテック
  • TEL

    0120-25-4145

    受付時間 09:00-18:00(日祝除く)

  • MAIL

    お問い合わせフォームへ

    年中無休24時間承り中

リビングを可動式の間仕切りで明るく広い空間に   世田谷区H様邸

リフォームのきっかけ

中古のマンションをご購入された世田谷区のH様。
天然素材を使用したナチュラルなイメージで、全面リフォームをご希望されていました。
永く使える耐久性の高い素材で、ホワイトを基調とした明るく落ち着いた雰囲気に仕上がりました。
リビングには、隣接する洋室の壁を撤去して可動式の間仕切りを設置しました。

 

リビングを可動式の間仕切りで明るく広い空間に

ビフォー
リビングを可動式の間仕切りで明るく広い空間に
リフォーム前のリビング
と隣接する洋室

beforeafter_before2_06
アフター
リビングを可動式の間仕切りで明るく広い空間に
リフォーム後のリビング
壁を撤去して間仕切りを設置

ビフォー
リビングを可動式の間仕切りで明るく広い空間に
リフォーム前のリビング

フローリングは朝日ウッドテック ライブナチュラルプレミアムに貼替え。
縦ラインが強調され広く感じられます。
間仕切りは天井で吊ってあるので
床はフラットな状態です。

beforeafter_before2_06
アフター
リビングを可動式の間仕切りで明るく広い空間に
リフォーム後のリビング

リビングを可動式の間仕切りで明るく広い空間に

ビフォー
リビングを可動式の間仕切りで明るく広い空間に
リフォーム前

beforeafter_before2_06
アフター
リビングを可動式の間仕切りで明るく広い空間に
リフォーム後

リビングを可動式の間仕切りで明るく広い空間に

リビングを可動式の間仕切りで明るく広い空間に
リビングのクローゼット


リビングのドア
奥行きと高さが感じられるデザインに交換。
リビングを広く見せる効果があります。

ビフォー
リビングを可動式の間仕切りで明るく広い空間に
リフォーム前の玄関

玄関収納は 
Panasonic VERITIS(ベリティス)
にお取替え。扉カラーは新発売の
[しっくいホワイト柄]。
ドアのホワイトとの相乗効果でより
明るく広く感じられるようになりました。

beforeafter_before2_06
アフター
リビングを可動式の間仕切りで明るく広い空間に
リフォーム後の玄関

ビフォー
リビングを可動式の間仕切りで明るく広い空間に
リフォーム前
玄関から室内を見たようす

beforeafter_before2_06
アフター
リビングを可動式の間仕切りで明るく広い空間に
リフォーム後
玄関から室内を見たようす

ビフォー
リビングを可動式の間仕切りで明るく広い空間に
リフォーム前のキッチン

トクラスBerry(ベリー)にお取替。
美しく汚れに強いトクラスの人造大理石
カウンターは、国内初の発売から40周
年の高品質。シンクや排水部分との
つなぎ目がない一体構造で、
お掃除が簡単で清潔に保てます。

beforeafter_before2_06
アフター
リビングを可動式の間仕切りで明るく広い空間に
リフォーム後のキッチン

ビフォー
リビングを可動式の間仕切りで明るく広い空間に
リフォーム前

beforeafter_before2_06
アフター
リビングを可動式の間仕切りで明るく広い空間に
リフォーム後

リビングを可動式の間仕切りで明るく広い空間に

9c24dbc7598cb09475fd856cc713e1162

b61b7447fe04562c3eac88929265721f1

キッチンと洗面室の間仕切りを変更して、キッチンにゆとりを持たせました。
食器棚の他に、新たに家電収納棚を設けました。

リビングを可動式の間仕切りで明るく広い空間に
家電収納キャビネット

リビングを可動式の間仕切りで明るく広い空間に
収納キャビネット(カップボードタイプ)

リビングを可動式の間仕切りで明るく広い空間に

リビングを可動式の間仕切りで明るく広い空間に
浴室は LIXIL システムバスルーム[リノビオV]
にお取替え。
壁パネルは[ウッドグレインライト]
浴槽、床はベージュとホワイトでまとめました。
[くるりんポイ排水口][キレイサーモフロア]
毎日のお掃除がしやすい機能が備わった
オールインワンの快適なバスルームです。

リビングを可動式の間仕切りで明るく広い空間に
洗濯機置場上部の収納

リビングを可動式の間仕切りで明るく広い空間に
洗面化粧台は LIXIL ルミシス W1200
ボウル一体型でフルスライドタイプの収納。

リビングを可動式の間仕切りで明るく広い空間に

ビフォー
リビングを可動式の間仕切りで明るく広い空間に
リフォーム前のトイレ

TOTO ネオレストAH1
レストルームドレッサーセレクトシリーズ
にお取替え。
超節水で便器洗浄水量は13Lから3.8Lへ、75%の節水を実現。
手洗器はスタイリッシュな角型のデザイン。

beforeafter_before2_06
アフター
リビングを可動式の間仕切りで明るく広い空間に
リフォーム後のトイレ

リビングを可動式の間仕切りで明るく広い空間に

リビングを可動式の間仕切りで明るく広い空間に
納戸はぐるっと三方にポールハンガーを設けて、
ウォークインクローゼットに。

リビングを可動式の間仕切りで明るく広い空間に
収納力はバッチリです。

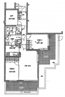
ビフォー
1733fb3d16d5df2b94676a9217dc7cb1
リフォーム前図面

beforeafter_before2_06
アフター
a8b7f22b2a5bb5261087051aed9b5d7d
リフォーム後図面

 

工事内容  全面リフォーム
  詳細(設備機器) キッチン  トクラス ベリー
浴室  LIXIL リノビオV 1418
洗面化粧台  LIXIL ルミシズ W1200
トイレ  TOTO ネオレストAH1
詳細(内装材) 玄関収納  Panasonic コンポリア
床材  朝日ウッドテック ライブナチュラルプレミアム ホワイトオーク 
 マルホン 無遮音フローリング タモ材(廊下)
工事費用  約928万円 (税込)
工事日数  約2月
施工エリア  世田谷区

 

関連の全面改装を見る

リフォームのケンテック公式Instagramはこちら
page top