リフォームのケンテック
  • TEL

    0120-25-4145

    受付時間 09:00-18:00(日祝除く)

  • MAIL

    お問い合わせフォームへ

    年中無休24時間承り中

気持ちよく過ごせる住まいに 千代田区O様邸

リフォームのきっかけ

築35年以上のマンションにお住まいだったO様。
ほとんど改装しておらず、今後気持ちよくお住まいになりたいとフルリフォームをご検討されていました。
今回間取りは変更していませんが、水廻り設備や内装など全面的なリフォームを実施。
給水給湯管更新・壁断熱工事など見えない部分もしっかり工事をして、安心して気持ちよく過ごせる住まいが
完成しました。

気持ちよく過ごせる住まいに

ビフォー
既存図面
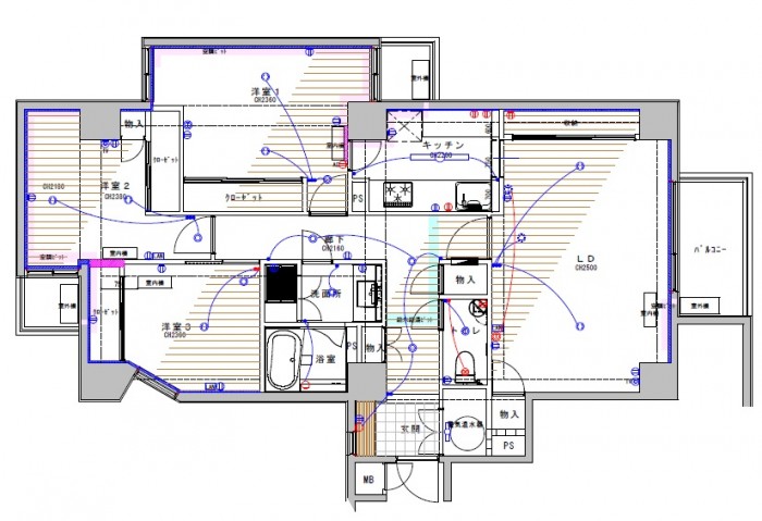
【Before図面】

beforeafter_after1_03
アフター
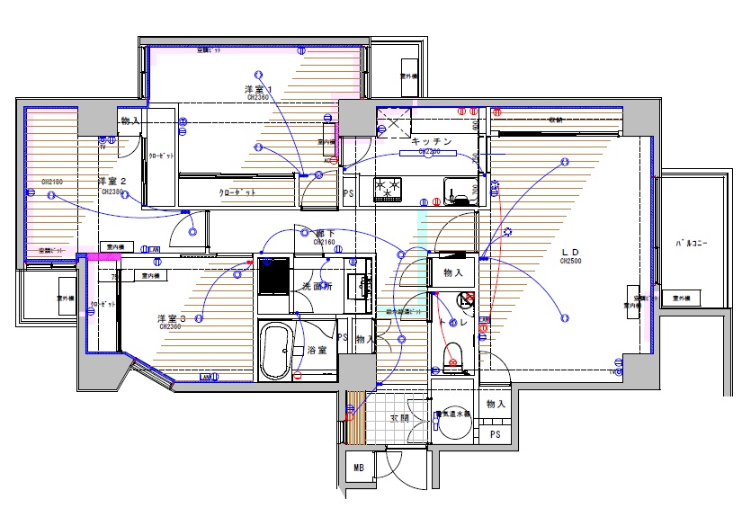
改装後図面
【After図面】

ビフォー
気持ちよく過ごせる住まいに
リフォーム前のリビングダイニング①

beforeafter_before2_06
アフター
気持ちよく過ごせる住まいに
リフォーム後のリビングダイニング

床材はカーペットからフローリングに変更しました。
フローリングは朝日ウッドテック ネダレス95、建具はPanasonicのベリティス(ウォールナット色)です。
カーテンボックスも建具に合わせてウォールナット色のものに交換。
天井・壁のクロスも貼替え、明るいリビングダイニングになりました。

気持ちよく過ごせる住まいに
リビングダイニングの壁一面には大容量の収納を新設しました。

ビフォー
気持ちよく過ごせる住まいに
リフォーム前のリビングダイニング②

beforeafter_before2_06
アフター
気持ちよく過ごせる住まいに
リフォーム後のリビングダイニング②

ビフォー
気持ちよく過ごせる住まいに
リフォーム前のキッチン①

beforeafter_before2_06
アフター
気持ちよく過ごせる住まいに
リフォーム後のキッチン②

クリナップ クリンレディ W2650にお取替え。


扉カラーはクリスタチャコールという濃紺のお色をお選び頂きました。
キッチンの壁はタイル貼から清掃性の高いキッチンパネルに変更しました。

ビフォー
気持ちよく過ごせる住まいに
リフォーム前のキッチン背面収納

beforeafter_before2_06
アフター
気持ちよく過ごせる住まいに
リフォーム後のキッチン背面収納

背面収納は奥行きD550で、W750の天井までのカップボードとW750の家電収納という組み合わせです。
キッチンとは違うペアウッドホワイトというお色で明るく清潔感のある収納になりました。

ビフォー
気持ちよく過ごせる住まいに
リフォーム前のキッチン②

もともとキッチンから洋室につながる開き戸がついていました。

beforeafter_before2_06
アフター
気持ちよく過ごせる住まいに
リフォーム後のキッチン②

キッチンから洋室につながる動線はそのままに、建具をウォールナット色で新しくしました。

気持ちよく過ごせる住まいに
レンジフードは「とってもくりんフード(化粧前幕板タイプ)」、シンクは「流レールシンク」です。

とってもクリンフード

クリナップ クリンレディ おススメポイントその①

とってもクリンフード独自の「リーフプレート」→→

ステンレス仕様のリーフプレートには、美コート(親水性のセラミック系特殊コーティング)が施されているので、しつこい油汚れやホコリも落としやすくなり、お掃除が簡単です!!

※画像:クリナップHPより抜粋

流レールシンク
クリナップ クリンレディ おススメポイントその②

←←←「流レールシンク」
流レールシンクには排水口に向けて傾斜が出来ていて、食器を洗った際に出る汚れた水や野菜のクズなども水の流れによって自然と排水口へ流れていくシステムです。
汚れにくく、洗いやすいを実現するシンクです。

※画像:クリナップHPより抜粋

ビフォー
気持ちよく過ごせる住まいに
リフォーム前のユニットバス

beforeafter_before2_06
アフター
気持ちよく過ごせる住まいに
リフォーム後のユニットバス

TOTO WGシリーズXタイプ 1316にお取替え。
グレーの石目調アクセントパネル(クレアライトグレー色)と横長のワイドミラーがスタイリッシュな浴室空間を演出します。

ビフォー
気持ちよく過ごせる住まいに
リフォーム前の洗面化粧台

beforeafter_before2_06
アフター
気持ちよく過ごせる住まいに
リフォーム後の洗面化粧台

TOTO オクターブW1200にお取替え。
扉カラーは爽やかな「パナシェアクア」というお色です。
洗面化粧台設置箇所には梁があり、高さ1800ミリ対応の三面鏡を設置しました。

以前は一面鏡で細かいものがカウンターに出てしまっていましたが、今回3面鏡にしたことで収納量が増え、スッキリとしたカウンターまわりが実現しました。

ビフォー
気持ちよく過ごせる住まいに
リフォーム前のトイレ

beforeafter_before2_06
アフター
気持ちよく過ごせる住まいに
リフォーム後のトイレ


LIXIL サティスにお取替え。
コーナーにはLIXILのコーナー手洗いキャビネットも設置しました。

ビフォー
気持ちよく過ごせる住まいに
リフォーム前の洋室

beforeafter_before2_06
アフター
気持ちよく過ごせる住まいに
リフォーム後の洋室

カビ対策ー壁の断熱工事を実施

結露によるカビでお悩みだったO様。今回、リビングと洋室3部屋で壁の断熱工事を実施しました。
断熱機能を上げることで、冬場室内の温度差が小さくなり、結露しにくくなります。

コンクリート直の部分に木軸を組み、25㎜厚のスタイロフォームをはめ込みます。その後石膏ボードで下地壁を作り、クロスで仕上げました。

気持ちよく過ごせる住まいに
①解体した所

気持ちよく過ごせる住まいに
②木軸を組んだ所

気持ちよく過ごせる住まいに
③スタイロフォームを施工した所

ビフォー
気持ちよく過ごせる住まいに
リフォーム前の玄関

beforeafter_before2_06
アフター
気持ちよく過ごせる住まいに
リフォーム後の玄関

玄関にはADVAN ギヤマンテというタイルを施工しました。
明るく清潔感のあるタイルです。

工事内容  マンション全面リフォーム
詳細(設備機器) キッチン  クリナップ クリンレディ
浴室  TOTO WGシリーズ Xタイプ
洗面化粧台  TOTO オクターブ W1200 
トイレ  LIXIL サティス/コーナー手洗いキャビネット
建具  Panasonic ベリティス
工事費用

 約 1,070万円(税込)

工事日数  約3ヶ月半
施工エリア  千代田区

関連の全面改装を見る

リフォームのケンテック公式Instagramはこちら
page top