リフォームのケンテック
  • TEL

    0120-25-4145

    受付時間 09:00-18:00(日祝除く)

  • MAIL

    お問い合わせフォームへ

    年中無休24時間承り中

和室から洋室へ―暮らしに合わせて窓も自在に  横浜市戸塚区S様邸

リフォームのきっかけ

横浜市戸塚区にお住まいのS様。
外壁や窓サッシ、水周りや内装などのリフォームのご依頼をいただきました。
1階は和室を洋室にリフォームしてインプラスを取り付け。
窓の位置を変更して小さくしました。
キッチンと浴室、トイレの交換。洗面化粧台はレイアウトの変更にともない移設しました。
フローリングの貼替、床下収納の施工、家具の造作など、
全面的なリフォームでより住みやすいご住宅になりました。

 

ビフォー
DSCN1026
リフォーム前のキッチン

[クリナップ クリンレディ] に交換。
扉カラーは ペアウッドアッシュ。
骨組みまでステンレスを使用した
長寿命のキッチン。
明るく、清潔感いっぱいです。

beforeafter_before2_06
アフター
DSCN3511
リフォーム後のキッチン

DSCN3431

DSCN3420
リビング側から見たようす

ビフォー
DSCN1027
リフォーム前の背面キャビネット

キッチンのレイアウトが変更になり
リビング側から冷蔵庫や家電収納が
見えにくい配置になりました。

beforeafter_before2_06
アフター
DSCN3512
リフォーム後のキャビネット

ビフォー
7804e6774c348b37afe22a3cd9ac204e
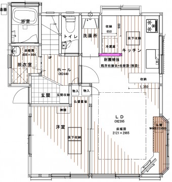
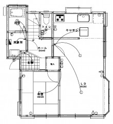
1階既存図面

beforeafter_before2_06
アフター
c258ae9c0c3601c3c733bccf66ee9aa1
1階リフォーム後図面

ビフォー
DSCN1009
リフォーム前浴室

beforeafter_before2_06
アフター
DSCN3371
リフォーム後

DSCN3376

[LIXIL アライズ ]1216サイズ
に交換。
浴室暖房乾燥機を付けて給湯器も交換しました。

面化粧台を移設した脱衣室に
タオル収納とマルチシンクを施工しました。

ビフォー
DSCN1049
リフォーム前二階トイレ

LIXIL アメージュに交換しました。

beforeafter_before2_06
アフター
DSCN3451
リフォーム後

DSCN1015

DSCN1018

DSCN1022

リフォーム前のリビング、ダイニング、和室。

ビフォー
1a4e43abb1aa356c0f708ce5646a02f9
2階既存図面

beforeafter_before2_06
アフター
43b81bc7706cae976c9c16ead958658e
2階リフォーム後図面

DSCN3518

DSCN3522

DSCN3517
1階には内窓(インプラス=ライトウッド色)を施工。
冬場は窓からの冷気を防ぎ、結露を軽減します。

和室だった部屋は洋室にリフォーム。
隣接するリビングと引戸で仕切ります。
床下収納も施工しました。

リビングにはインターホンの壁に片開きの収納棚
窓下に書籍棚を造作しました。

DSCN3416

DSCN3400

ビフォー
DSCN1014
リフォーム前リビング

窓は出窓にリフォームして、
窓下に本棚とテレビ台を造作
しました。

beforeafter_before2_06
アフター
DSCN3519
リフォーム後

DSCN3510

ビフォー
DSCN1017
リフォーム前の一階和室。

奥様のご趣味の大きなサイズの絵画を立て掛けるのに、窓が不便でした。

そこで大きな窓を無くし、上部に欄間様式に明かり取りと通風のための窓を作りました。

beforeafter_before2_06
アフター
DSCN3516
リフォーム後

ビフォー
DSCN1445
リフォーム前の窓

beforeafter_before2_06
アフター
DSCN3533
リフォーム後

DSCN3532
二重サッシでさらに防犯性が高くなりました。

10070
外壁は 水性セラミックシリコン塗装を施工。

断熱材を入れる工事
防蟻工事を行いました。

S__6545441

S__6496276

DSCN3392

DSCN3437

玄関の収納家具とリビングの扉は
Panasonic チェリー色です。

 

工事内容  全面リフォーム
  詳細(設備機器) キッチン  クリナップ クリンレディ
浴室  LIXILアライズ/給湯器・浴室暖房乾燥機 リンナイ
トイレ  LIXILアメージュ
 サッシ交換、内窓サッシ インプラス(ライトウッド色)
詳細 内装  床 朝日ウッドテックLiveNatural ブラックチェリー色/床下収納/建具Panasonicチェリー色/造作家具
外部  外壁 水性セラミンシリコン/外壁タイル LIXIL/屋根 屋根用遮熱塗料 坊蟻処理
工事費用  約1300万円 (税込)
工事日数  約3ヶ月
施工エリア  横浜市戸塚区

 

関連の全面改装を見る

リフォームのケンテック公式Instagramはこちら
page top