リフォームのケンテック
  • TEL

    0120-25-4145

    受付時間 09:00-18:00(日祝除く)

  • MAIL

    お問い合わせフォームへ

    年中無休24時間承り中

会話の弾むダイニング中心の生活に 目黒区M様邸

東京都 目黒区M様邸

孤立したキッチンを開放的なキッチンへ。
お子様と会話をしながら、日常の家事が楽しめる空間になりました。



ビフォー
会話の弾むダイニング中心の生活に


間仕切り変更

浴室側と和室側の壁を撤去。

beforeafter_before2_06
アフター
会話の弾むダイニング中心の生活に


風の通るLDKに

もともとあった浴室・洗面・トイレと和室を解体。
バルコニーから日差しと風が通る空間になりました。

左側出窓前のカウンターには、お子様が3人仲良く
勉強ができるスペースへ。お子様の後姿を見ながら
家事ができ、コミュニケーションもとれます。

ビフォー
会話の弾むダイニング中心の生活に


工事前のキッチン

扉タイプのシステムキッチン

beforeafter_before2_06
アフター
会話の弾むダイニング中心の生活に


対面型システムキッチン ヤマハ ベリー

リビングダイニングと一体のキッチンスペースにして
毎日の家事をみんなで共有して楽しめる空間にしました。

会話の弾むダイニング中心の生活に

キッチンからの目線
目の前がリビングなので、家事で孤立しません。
テレビや家族と会話しながらお料理などができます。

会話の弾むダイニング中心の生活に

キッチンからの目線
【右手前】
小物がおける稼動棚。
【右中央】
お子様の勉強机、または奥様の家計簿記入などの机としても利用できます。
【右奥】
ご主人様用の書斎スペース。

会話の弾むダイニング中心の生活に

リビングダイニング
壁面はアクセントで壁紙の仕様を変更。
大型のテレビとソファーセットが設置予定です。

会話の弾むダイニング中心の生活に

自然光が入る勉強机
お子様が3人並んで座れる巾広カウンター。
ひとつひとつ消せるダウンスポットライトでお子様
専用の机にもなります。

会話の弾むダイニング中心の生活に

会話の弾むダイニング中心の生活に

会話の弾むダイニング中心の生活に

会話の弾むダイニング中心の生活に

会話の弾むダイニング中心の生活に

会話の弾むダイニング中心の生活に

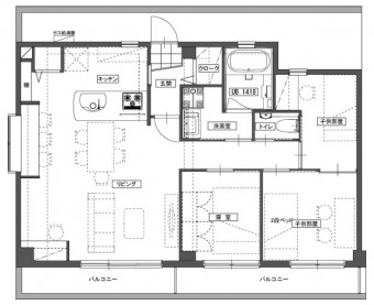
ビフォー
リフォーム前の図面


既存平面図

beforeafter_before2_06
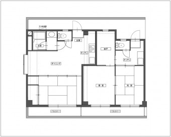
アフター
リフォーム後の図面


☆コンセプトは、会話が楽しめるダイニングルーム

なるべく長い時間を家族みんなでリビングダイニングに集まるように工夫しました。

01f2e090a36fb3b76d15214f6f151d902-s

 

工事内容  マンション全面改装工事
詳細 壁天井材  サンゲツ 機能性クロス
床材  朝日ウッドテック ライブナチュラル
建具  パナソニック スマートフィール
工事費用  約950万円
工事日数  45日
施工エリア  目黒区

 

関連の全面改装を見る

リフォームのケンテック公式Instagramはこちら
page top