リフォームのケンテック
  • TEL

    0120-25-4145

    受付時間 09:00-18:00(日祝除く)

  • MAIL

    お問い合わせフォームへ

    年中無休24時間承り中

家族みんなが幸せな二世帯住宅全面リフォーム      杉並区O様邸

リフォームのきっかけ

お嬢様ご夫婦と二世帯でお住まいの杉並区のO様。

以前、一部を賃貸にされていたのでトイレが2階に二つあったり、

また、使われていないお部屋があったりとご不便を感じていらっしゃいました。

今回、お孫様の成長にともなって寝室を設けることになり、二世帯とも全面的にリフォームをすることになりました。


家族みんなが幸せな二世帯住宅全面リフォーム

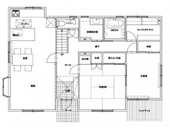
ビフォー
リフォーム前の図面

一階既存の間取り(おもに親世帯)

beforeafter_before2_06
アフター
リフォーム後の図面

リフォーム後

ビフォー
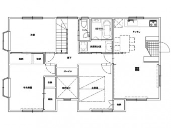
リフォーム前の図面

二階既存の間取り(おもに子世帯)

beforeafter_before2_06
アフター
リフォーム後の図面

リフォーム後

家族みんなが幸せな二世帯住宅全面リフォーム

家族みんなが幸せな二世帯住宅全面リフォーム

一階リフォーム後のキッチン


TOTO クラッソ 二列型対面キッチン

にお取替え。

扉はメロウオフブラック、

カウンターはライトストーニーグレー、

シンクカラーはグレーをお選びいただきました。

対面側カウンターのシンクはすべり台シンク採用。

シンクのゴミがスムーズに排水溝に

流れていきます。

水栓はタッチスイッチで、軽くタッチするだけ

なので清潔が保てます。

リビングと一体化したデザインのキッチン

には自然と人 が集まります

家族みんなが幸せな二世帯住宅全面リフォーム

                                 既存の民芸調の家具がリビングによくなじみます。

ビフォー
家族みんなが幸せな二世帯住宅全面リフォーム

二階の既存キッチン


TOTO クラッソ にお取替。

扉材はダークウッドをお選びいただきました。

背面収納も設けました。

beforeafter_before2_06
アフター
家族みんなが幸せな二世帯住宅全面リフォーム

リフォーム後

家族みんなが幸せな二世帯住宅全面リフォーム

家族みんなが幸せな二世帯住宅全面リフォーム

家族みんなが幸せな二世帯住宅全面リフォーム

既存の寝室との間の柱を利用してデザイン

された 格子です。

エコカラットを貼った壁にする別案も

ありましたがこちらのかたちになりました。

格子状のゆるい目隠しが、リビング側から

の視線をほどよく遮ります。

ビフォー
家族みんなが幸せな二世帯住宅全面リフォーム

既存の一階浴室


LIXIL システムバス ソレオ 1616タイプ

にお取替。

壁パネルはモノストライプ、浴槽はストレートラインのホワイトをお選びいただきました。

beforeafter_before2_06
アフター
家族みんなが幸せな二世帯住宅全面リフォーム

リフォーム後

ビフォー
家族みんなが幸せな二世帯住宅全面リフォーム

既存の二階浴室


LIXIL システムバス ソレオ 1616タイプ 

にお取替。

壁パネルはストーンモザイクダーク、浴槽はストレートラインのブラックをお選びいただきました。

beforeafter_before2_06
アフター
家族みんなが幸せな二世帯住宅全面リフォーム

リフォーム後

ビフォー
家族みんなが幸せな二世帯住宅全面リフォーム

既存の1階トイレ


LIXIL サティスSタイプリトイレ にお取替。

カラーはブルーグレーをお選びいただきました。前出寸法は650mmの世界最小サイズです。アクアセラミックは水の力で新品のツルツルが100年続きます。

beforeafter_before2_06
アフター
家族みんなが幸せな二世帯住宅全面リフォーム

リフォーム後

ビフォー
家族みんなが幸せな二世帯住宅全面リフォーム

既存の二階トイレ


LIXIL サティスSタイプリトイレ にお取替。

beforeafter_before2_06
アフター
家族みんなが幸せな二世帯住宅全面リフォーム

リフォーム後

ビフォー
家族みんなが幸せな二世帯住宅全面リフォーム

既存の一階洗面室

LIXIL 洗面化粧台ルミシス にお取替。

扉カラーはクリエダーク

カウンターはハイグレードタイプの人工大理石

ラビシアホワイトをお選びいただきました。

beforeafter_before2_06
アフター
家族みんなが幸せな二世帯住宅全面リフォーム

リフォーム後

家族みんなが幸せな二世帯住宅全面リフォーム

二階は LIXIL 洗面化粧台ルミシス 

にお取替。

扉カラーはクリエダーク

カウンターはパールブラックをお選びいただきました。

家族みんなが幸せな二世帯住宅全面リフォーム

家族みんなが幸せな二世帯住宅全面リフォーム

二階リビングにはエコカラット(グラナスルドラ)

を施工しました。

革張りのソファとマッチして、

ダークな落ち着いた雰囲気に。

家族みんなが幸せな二世帯住宅全面リフォーム

二階玄関


ダイケンの玄関収納

エコカラット(グラナスルドラ)を施工しました。

家族みんなが幸せな二世帯住宅全面リフォーム

工事内容  二世帯住宅全面リフォーム
詳細(設備機器) キッチン  一階/TOTOクラッソ二列型対面式 二階/TOTOクラッソW1800+背面収納
浴室  一階/LIXIL ソレオ 1616タイプ  二階/LIXIL ソレオ 1616タイプ
洗面化粧台  一階/LIXIL ルミシス  W1000  二階/LIXIL ルミシス  W800
トイレ  一階/LIXIL サティス Sタイプ リトイレ  二階/LIXIL サティス Sタイプ リトイレ
玄関ドア  YKK aP/ドアリモ 断熱ドア 手動錠・ランマ
詳細(内装材) 床材  朝日ウッドデック ライブナチュラルピュアハード
壁材  LIXIL エコカラット グラナスルドラ
工事費用

 約2000万円(税込)

工事日数  約2ヶ月半
施工エリア  杉並区

関連の全面改装を見る

リフォームのケンテック公式Instagramはこちら
page top