リフォームのケンテック
  • TEL

    0120-25-4145

    受付時間 09:00-18:00(日祝除く)

  • MAIL

    お問い合わせフォームへ

    年中無休24時間承り中

間接照明でワンランク上の賃貸物件へ 渋谷区S様邸

リフォームのきっかけ

渋谷区に賃貸物件を所有されているS様。
今回、長年使われていた水廻り設備を全て交換するとともに、内装や配管更新を含めた全面改修工事をさせて頂きました。
S様が特にこだわったのが照明計画です。
リビングだけでなく、玄関収納やトイレにも間接照明を設置しました。
直接的でない明るい光が、お部屋の雰囲気をグっとグレードアップさせています。

 

ビフォー
間接照明でワンランク上の賃貸物件へ
リフォーム前のリビング①

beforeafter_before2_06
アフター
間接照明でワンランク上の賃貸物件へ
リフォーム後のリビング①

フローリングはLIXILのラシッサDフロアという商品です。

足ざわりのよさにこだわったフットフィール仕上げ。
天然木の無垢材が持つ質感を特殊技法でありのままに表現しているので、歩く時はもちろん、床に座ったり、寝転んだりとさまざまなシーンで独特の触感をお楽しみ頂けるフローリングです。

窓上部分にはS様こだわりの間接照明を設置。
優しい光がリビング全体に広がります。

ビフォー
間接照明でワンランク上の賃貸物件へ
リフォーム前のリビング②

beforeafter_before2_06
アフター
間接照明でワンランク上の賃貸物件へ
リフォーム後のリビング②(キッチン側から見た様子)

b6cfbccf1a88a3f9fbaacb99925c3d43
リビングから見たキッチン

建具やクロスはホワイトで統一。明るく広々としたリビングです。
以前はシーリングが2つついていただけでしたが、今回は照明もしっかり計画しました。
キッチンエリアはダウンライトでスッキリと。ダイニングテーブルを置くスペースにはペンダントライトが取り付けられるようにレールを配線してあります。

間接照明でワンランク上の賃貸物件へ

間接照明でワンランク上の賃貸物件へ

ビフォー
間接照明でワンランク上の賃貸物件へ
リフォーム前のキッチン

もともとは壁付けのI型キッチンでした。

beforeafter_before2_06
アフター
間接照明でワンランク上の賃貸物件へ
リフォーム後のキッチン

クリナップ ラクエラにお取替え。
お色はグラセウッドホワイトをお選び頂きました。
キッチンの位置を移動して、対面のキッチンに。
キッチンからもリビングの様子がよく分かります。

0f3a387ac92342d27f59aea6a3e36924
玄関

玄関の土間にはADVANのタイルを施工しました。
玄関収納の吊戸下にはダウンライト、下の収納部分には間接照明を設置しました。

収納下からの明るい光が土間のタイルを照らし、高級感を演出しています。

ビフォー
間接照明でワンランク上の賃貸物件へ
リフォーム前の玄関

木目調の収納が置いてあるだけでした。

beforeafter_before2_06
アフター
間接照明でワンランク上の賃貸物件へ
リフォーム後の玄関

フロートタイプの収納と上部に吊戸棚と設置しました。
以前より収納量はアップしています。

ビフォー
間接照明でワンランク上の賃貸物件へ
リフォーム前のトイレ

beforeafter_before2_06
アフター
間接照明でワンランク上の賃貸物件へ
リフォーム後のトイレ

TOTO レストパルI型手洗い付きにお取替え。

以前はタンク付きのトイレでしたが、今回収納ユニット付きのトイレに交換しました。トイレの両サイドは収納になっていて、トイレットペーパーや掃除道具などが収納できます。止水栓も収納内に隠れてスッキリです。

間接照明でワンランク上の賃貸物件へ

間接照明でワンランク上の賃貸物件へ

間接照明でワンランク上の賃貸物件へ

リフォーム後の洗面化粧台

Panasonicのシーラインにお取替え。

浴室やトイレと合わせて扉は木目調のホワイトをお選び頂きました。
洗濯パンと干渉するところには収納ユニットをいれず、カウンターだけにしています。

ビフォー
間接照明でワンランク上の賃貸物件へ
リフォーム前のユニットバス

beforeafter_before2_06
アフター
間接照明でワンランク上の賃貸物件へ
リフォーム後のユニットバス

TOTO WGシリーズDタイプ1316にお取替え。

床や壁パネルなど全体的にホワイトの色で統一し、明るく清潔感のある浴室に。
鏡は楕円ミラーをお選び頂きました。
お掃除ラクラク鏡は簡単なお手入れで水あかをしっかり落とせます。

ビフォー
間接照明でワンランク上の賃貸物件へ
リフォーム前の廊下

beforeafter_before2_06
アフター
間接照明でワンランク上の賃貸物件へ
リフォーム後の廊下

建具や内装を一新したことで、全体的に明るい印象となりました。

ビフォー
間接照明でワンランク上の賃貸物件へ
リフォーム前の洋室収納部分

beforeafter_before2_06
アフター
間接照明でワンランク上の賃貸物件へ
リフォーム後の洋室収納部分

リビングと洋室の間の建具は3枚連動引き戸を採用しました。開口するとリビングとひとつなぎになり、広々とお使い頂けます。
押入のあった部分は引き違い戸からクローゼット扉に変更。扉を開けた時に開口できるスペースが広くなるので、使いやすくなります。

間接照明でワンランク上の賃貸物件へ
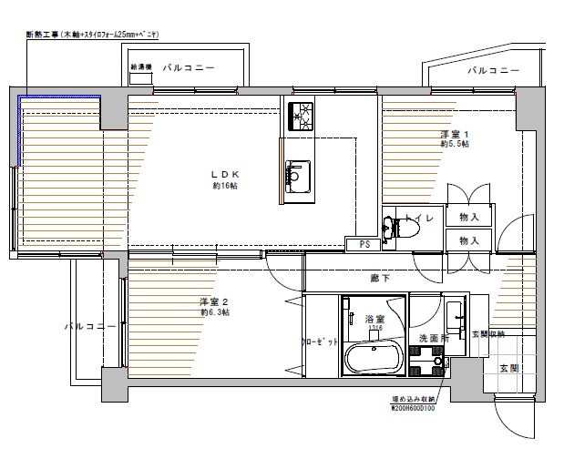
【AFTER図面】

 

工事内容  全面リフォーム
  詳細(設備機器) キッチン  クリナップ ラクエラ
浴室  TOTO WGシリーズDタイプ 1316
洗面化粧台  Panasonic シーライン
トイレ  TOTO レストパルI型 手洗い付
詳細(内装材) 壁天井材  クロス
床材  LIXIL ラシッサDフロア
工事費用  約734万円 (税込)
工事日数  約2月
施工エリア  渋谷区

 

関連の全面改装を見る

リフォームのケンテック公式Instagramはこちら
page top