リフォームのケンテック
  • TEL

    0120-25-4145

    受付時間 09:00-18:00(日祝除く)

  • MAIL

    お問い合わせフォームへ

    年中無休24時間承り中

仲良しご家族の新しい住まい 目黒区O様邸

東京都 目黒区O様邸

目黒川沿いのビルにお住まいのO様。
前回は4階・5階の全面工事のご依頼を頂きましたが、今回同じビルの2・3階に息子様ご家族が住むことになり、水廻り設備・内装など全面的に工事をさせて頂きました。

 

 

ビフォー
仲良しご家族の新しい住まい

リフォーム前のLD

beforeafter_before2_06
アフター
仲良しご家族の新しい住まい

リフォーム後のLDK

仲良しご家族の新しい住まい

仲良しご家族の新しい住まい

ビフォー
仲良しご家族の新しい住まい

リフォーム前のキッチン

beforeafter_before2_06
アフター
仲良しご家族の新しい住まい

リフォーム後のキッチン

キッチンは位置を変え、リビング・ダイニングが見渡せる対面キッチンに。
背面には大容量のキッチン収納を設置しました。

仲良しご家族の新しい住まい

ダイニングから見たキッチン

キッチンのダイニング側も収納になっています。
リビングからご家族の様子がよくわかり、明るく会話の楽しめるキッチンとなりました。



ビフォー
仲良しご家族の新しい住まい

リフォーム前の浴室

beforeafter_before2_06
アフター
仲良しご家族の新しい住まい

リフォーム後の浴室

ビフォー
仲良しご家族の新しい住まい

リフォーム前の洗面化粧台

beforeafter_before2_06
アフター
仲良しご家族の新しい住まい

リフォーム後の洗面化粧台

ビフォー
仲良しご家族の新しい住まい

リフォーム前のトイレ

beforeafter_before2_06
アフター
仲良しご家族の新しい住まい

リフォーム後のトイレ

ビフォー
仲良しご家族の新しい住まい

リフォーム前の玄関

beforeafter_before2_06
アフター
仲良しご家族の新しい住まい

リフォーム後の玄関

建具はすべてLIXIL製の明るい木目で統一。
玄関収納は鏡付の扉も設置し、収納量は以前よりもアップしました。


ビフォー
仲良しご家族の新しい住まい

リフォーム前の収納

beforeafter_before2_06
アフター
仲良しご家族の新しい住まい

リフォーム後の廊下収納

3階の階段を上がったところにも壁一面の大容量収納の設置。
家族使うものなどスッキリと収納できます。


仲良しご家族の新しい住まい

お客様とご一緒に記念撮影。

 

工事内容  全面リフォーム
詳細(設備機器) キッチン  トクラス ベリー
浴室  LIXIL リノビオV
洗面化粧台  LIXIL ピアラ
トイレ  LIXIL アステオ
詳細(内装材) 壁天井材  クロス
床材  朝日ウッドテック ライブナチュラル
工事費用  1,280万円(税込)
工事日数  約1ヶ月半
施工エリア  目黒区

 

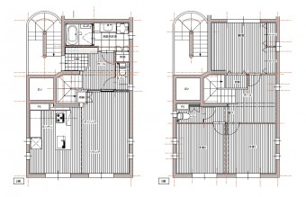
図面
リフォーム後の図面(2階・3階)

関連の全面改装を見る

リフォームのケンテック公式Instagramはこちら
page top