リフォームのケンテック
  • TEL

    0120-25-4145

    受付時間 09:00-18:00(日祝除く)

  • MAIL

    お問い合わせフォームへ

    年中無休24時間承り中

持ち物件をリニューアル 目黒区K様邸

東京都 目黒区K様邸

現在、お持ちの物件のリニューアルで工事をさせていただきました。

キレイメンテナンスされておりますが、さらに使いやすくする為に

レイアウト変更を含め全面改修をさせていただきました。



ビフォー
持ち物件をリニューアル

リフォーム前のキッチン

beforeafter_before2_06
アフター
持ち物件をリニューアル

リフォーム後のキッチン
クリナップ ラクエラ 黄色が映えて

清潔感があるキッチンになりました。

持ち物件をリニューアル

ビフォー
持ち物件をリニューアル

リフォーム前のトイレ

beforeafter_before2_06
アフター
持ち物件をリニューアル

リフォーム後のトイレ
LIXIL アメージュZ型
 

持ち物件をリニューアル

リフォーム後の収納
以前は押入れの収納でしたが、折れ戸のクローゼットに変更しました。

持ち物件をリニューアル

リフォーム後の収納②

持ち物件をリニューアル

リフォーム後の洗面脱衣所

持ち物件をリニューアル

リフォーム後の浴室
ピンクのアクセントパネルを入れて明るくなりました。

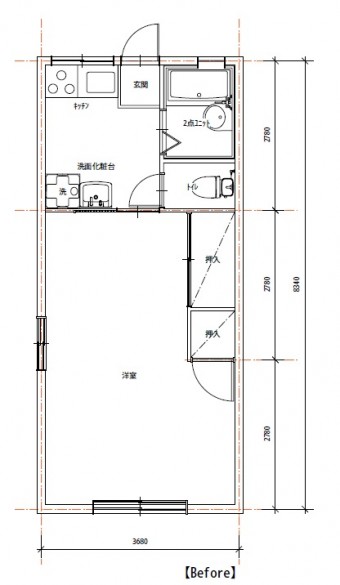
ビフォー
リフォーム前の図面

リフォーム前の図面

洗面器がにある2点タイプのユニットバスの
スタンダードな設備で脱衣所もありませんでした
 

beforeafter_before2_06
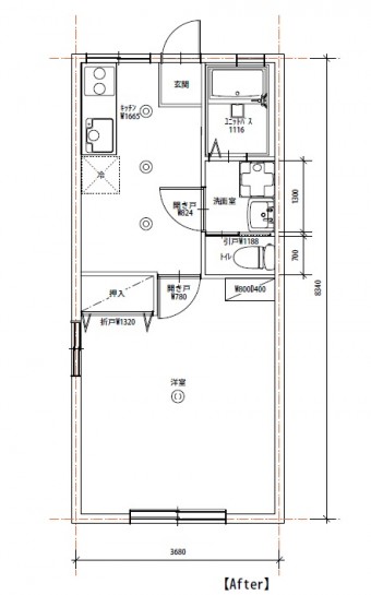
アフター
リフォーム後の図面

 リフォーム後の図面

既存の押入れのスペースを利用して脱衣所を
つくりまして、水周りをひとつの入り口から
アクセスできるように変更して収納を
新たにもうけました。

 

工事内容  水廻/間取り変更 リフォーム
 
詳細(設備機器)
 
キッチン  クリナックプ コルティ
浴室  LIXIL BP1116
洗面化粧台  LIXIL オフト
トイレ  LIXIL アメージュZ
詳細(内装材) 壁天井材  クロス
床材  サンゲツ フロアータイル
工事費用  212万円
工事日数  30日
施工エリア  目黒区

 

関連の全面改装を見る

リフォームのケンテック公式Instagramはこちら
page top