リフォームのケンテック
  • TEL

    0120-25-4145

    受付時間 09:00-18:00(日祝除く)

  • MAIL

    お問い合わせフォームへ

    年中無休24時間承り中

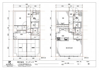
間取り変更 品川区K様邸

品川区 K様邸

キッチンを対面式にレイアウト変更して、和室2部屋とキッチン部分の壁を取り払い
開放の空間に仕上げました。玄関入口側の洋室およびリビングダイニングにあった押入れは
クローゼットに変更いたしました。洗面所は選択パンをデットスペース側につけました。

ビフォー
間取り変更

リフォーム前のリビング

ひき違いの扉が収まるスペースがあり
物が溜まってしまうスペースになってしまい
使いにくさがありあました。

beforeafter_before2_06
アフター
間取り変更

リフォーム後のリビング

間仕切り壁および下がり壁を撤去して
とてもすっきりとした空間になりました。

間取り変更

ビフォー
間取り変更

リフォーム前のキッチン

以前のキッチンは壁に向かって取り付けてあり
レンジフード側に配管図ペースがあり狭く
使いにくい流し台でした。

beforeafter_before2_06
アフター
間取り変更

リフォーム後のキッチン

LIXILアミィ2550サイズキッチンを
対面式に位置を変えて設置しました。
間仕切りを取り払ったリビングを見ながら
料理を作れて家族の会話も増えますね~
 

間取り変更

間取り変更

ビフォー
間取り変更

リフォーム前の浴室

タイル貼りのユニットバスでカビが生えやすく
寒い浴室でした。

 

 

beforeafter_before2_06
アフター
間取り変更

リフォーム後のユニットバス

TOTO WFシリーズDタイプ1216にお取替え。
アクセントパネル無しで
明るくお掃除のしやすい浴室になりました。

ビフォー
間取り変更

リフォーム前の洗面化粧台

とても小さく年代を感じる洗面台でした

 

beforeafter_before2_06
アフター
間取り変更

リフォーム後の洗面化粧台
 
洗面化粧台のサイズを750にひろげまして
以前の給湯器があったスペースに選択パン
を配置して使い勝手がUPしました。


ビフォー
間取り変更

リフォーム前のトイレ

beforeafter_before2_06
アフター
間取り変更

リフォーム後のトイレ

 TOTO 床上排水の為、マンション用を
選定しました。

ビフォー
間取り変更

リフォーム前の廊下

beforeafter_before2_06
アフター
間取り変更

リフォーム後の廊下



間取り変更

 リフォーム後の洋室クローゼット

押入れから3枚引戸に変更しました

図面

 

工事内容  水廻り・内装全面リフォーム
詳細(設備機器) ユニットバス  TOTO WFVシリーズDタイプ1216
洗面化粧台  TOTO Vシリーズ 
キッチン  LIXIL アミィ W2550
トイレ  TOTO ピュアレストMR
詳細(内装材) 壁天井材  ビニルクロス
床材  フロアータイル 
工事費用  500万円(税込)
工事日数  約1ヶ月
施工エリア  目黒区

 

関連の全面改装を見る

リフォームのケンテック公式Instagramはこちら
page top