リフォームのケンテック
  • TEL

    0120-25-4145

    受付時間 09:00-18:00(日祝除く)

  • MAIL

    お問い合わせフォームへ

    年中無休24時間承り中

間仕切りも兼ね備えた造作収納を設置 目黒区W様邸

東京都 目黒区W様邸

古くなった設備を最新の設備に交換。収納のなかったリビングにも住みやすさを考え、家具の配置なども考慮して収納を造作しました。

間仕切りも兼ね備えた造作収納を設置

Panasonic レセンテ3枚シンクロ引き戸

間仕切りも兼ね備えた造作収納を設置

収納内部はPanasonicの収納パーツi-shelfを設置

間仕切りも兼ね備えた造作収納を設置

間仕切りも兼ね備えた造作の収納

ビフォー
間仕切りも兼ね備えた造作収納を設置

工事前の洗面化粧台

 

beforeafter_before2_06
アフター
間仕切りも兼ね備えた造作収納を設置

工事後の洗面化粧台/INAX LC
サイド収納の設置や鏡を3面鏡にしたので、収納量が大幅にアップしました。

 

ビフォー
間仕切りも兼ね備えた造作収納を設置

工事前のトイレ

beforeafter_before2_06
アフター
間仕切りも兼ね備えた造作収納を設置

工事後のトイレ
INAX サティスリトイレに交換。

ビフォー
間仕切りも兼ね備えた造作収納を設置

工事前のユニットバス

beforeafter_before2_06
アフター
間仕切りも兼ね備えた造作収納を設置

工事後のユニットバス」/INAX リノビオ
洗面の面材と合わせてこげ茶色のアクセントパネルを選定。
 

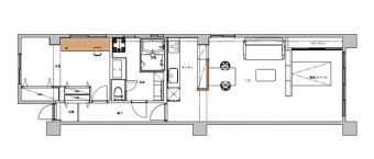
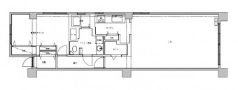
ビフォー
間仕切り開閉壁スクリーンウォールで自由な空間に 

beforeafter_before2_06
アフター
リフォーム後の図面

関連の全面改装を見る

リフォームのケンテック公式Instagramはこちら
page top