リフォームのケンテック
  • TEL

    0120-25-4145

    受付時間 09:00-18:00(日祝除く)

  • MAIL

    お問い合わせフォームへ

    年中無休24時間承り中

キッチンの配置を替えてリビングからの光の差し込む明るいキッチンに 世田谷区A様邸

東京都 世田谷区A様邸

お住まいになられて11年。キッチンを使いやすい位置に変更し、和室を洋室になどのリフォームを検討されていらっしゃいました。

 

ビフォー
戸建2階を全面改装

リフォーム前のキッチン

beforeafter_before2_06
アフター
戸建2階を全面改装

リフォーム後のキッチン


以前とキッチンの配置を替え、キッチンからリビングが見渡せるようにしました。
背面収納も充実させ、リビングからの光の差し込む明るいキッチンとなりました。



 

戸建2階を全面改装

戸建2階を全面改装

戸建2階を全面改装

戸建2階を全面改装

キッチンには名古屋モザイクのタイルを施工
レンジフード部分の壁にはキッチン側・リビング側とも名古屋モザイクの外国製のタイルを施工。
外国製のタイルは日本製にはないデザインが魅力的ですが、色むらやサイズにばらつきがあります。
今回も当初お選び頂いたタイルに斑点と色むらがあり、再度選びなおして頂き施工しました。
タイルの割付も何度もお客様とお打合せをして、最終的にはお客様にもとてもご満足頂けました!

ビフォー
戸建2階を全面改装

リフォーム前の和室

beforeafter_before2_06
アフター
戸建2階を全面改装

リフォーム後のダイニング

 

ビフォー
戸建2階を全面改装

リフォーム前のリビング

 

 

beforeafter_before2_06
アフター
戸建2階を全面改装

リフォーム後のリビング


戸建2階を全面改装

戸建2階を全面改装

戸建2階を全面改装

戸建2階を全面改装

 

工事内容  戸建2階全面リフォーム
詳細(設備機器) キッチン  トクラス ベリー I型 シャインカラーシリーズ 薄赤銅色
詳細(内装材) 壁天井材  ビニルクロス
床材  朝日ウッドテック ライブナチュラル ブラックチェリー
工事費用  約660万円
工事日数  約40日
施工エリア  世田谷区

 

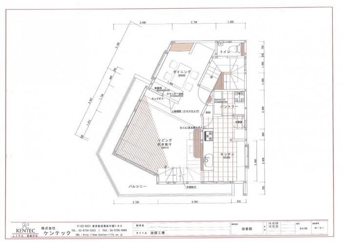
図面

関連の全面改装を見る

リフォームのケンテック公式Instagramはこちら
page top