リフォームのケンテック
  • TEL

    0120-25-4145

    受付時間 09:00-18:00(日祝除く)

  • MAIL

    お問い合わせフォームへ

    年中無休24時間承り中

お友達が集まりたくなる楽しい空間に 大田区K様邸

東京都 大田区K様邸

元々は事務所でしたが、借主が退出することになり、そこを住まいとして活用することになりリフォームをされました。
 

 

ビフォー
お友達が集まりたくなる楽しい空間に

リフォーム前の事務所

beforeafter_before2_06
アフター
お友達が集まりたくなる楽しい空間に

リフォーム後のリビング

お友達が集まりたくなる楽しい空間に

お友達が集まりたくなる楽しい空間に

工場の2階をお気に入りの空間にリフォーム。

TVまわりの収納棚は造作で。お気に入りの本やミニカーが飾られています。
床は触感も心地よいコルクタイルです。全体的に白とダークブラウンで統一し落ち着いた空間ができました。



お友達が集まりたくなる楽しい空間に

トランクルーム

お友達が集まりたくなる楽しい空間に

玄関

お友達が集まりたくなる楽しい空間に

主寝室

お友達が集まりたくなる楽しい空間に

リフォーム後のキッチン①
キッチンは対面式。対面式カウンターも設置しました。

お友達が集まりたくなる楽しい空間に

リフォーム後のキッチン②

ビフォー
お友達が集まりたくなる楽しい空間に

リフォーム前のトイレ

beforeafter_before2_06
アフター
お友達が集まりたくなる楽しい空間に

リフォーム後のトイレ

ビフォー
お友達が集まりたくなる楽しい空間に

リフォーム前の浴室

beforeafter_before2_06
アフター
お友達が集まりたくなる楽しい空間に

リフォーム後の浴室

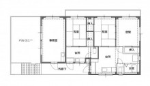
ビフォー
リフォーム前の図面

beforeafter_before2_06
アフター
リフォーム後の図面

お友達が集まりたくなる楽しい空間に

 

工事内容  全面リフォーム
詳細(設備機器) キッチン  LIXIL イスト
浴室  LIXIL ソレオ
洗面化粧台  LIXIL L.C
トイレ  LIXIL アメージュY
詳細(内装材) 壁天井材  クロス
床材  ロビンソン コルクフロア
工事費用  約976万円
工事日数  約90日
施工エリア  大田区

 

関連の全面改装を見る

リフォームのケンテック公式Instagramはこちら
page top