リフォームのケンテック
  • TEL

    0120-25-4145

    受付時間 09:00-18:00(日祝除く)

  • MAIL

    お問い合わせフォームへ

    年中無休24時間承り中

美しくまとまりのある空間に 目黒区N様邸

東京都 目黒区N様邸

築18年が経過し、内装と水廻りが老朽化。
それに加えお子様も成長したことからこの機会にライフスタイルをリセットしたいと本格的なリフォームに踏み切りました。

ビフォー
美しくまとまりのある空間に

リフォーム前のリビング

beforeafter_before2_06
アフター
美しくまとまりのある空間に

リフォーム後のリビング
旦那様こだわりのフローリング。このフローリングは店舗用で無垢のパイン材、しかも木目を生かした浮造り仕様。
素足で歩いてもヒンヤリしないのが採用の理由です。



美しくまとまりのある空間に

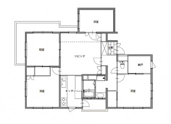
隣接する和室とリビングをひとつに。

既存は12畳のリビングの隣に8畳の和室がありましたが、上手に活用されているとはいえませんでした。
今回のリフォームで思い切って広いリビングを中心とした3LDK+ウォークインクローゼットの間取りに変更しました。



ビフォー
美しくまとまりのある空間に

リフォーム前の玄関

beforeafter_before2_06
アフター
美しくまとまりのある空間に

リフォーム後の玄関
落ち着いた雰囲気でまとめた玄関廻り。格子戸の奥は豊富な収納量を誇る下足入。右脇にはエコカラットが配置されています。

美しくまとまりのある空間に

トイレ

美しくまとまりのある空間に

洗面化粧台

美しくまとまりのある空間に

ユニットバス


美しくまとまりのある空間に

主寝室

美しくまとまりのある空間に

子供部屋1

美しくまとまりのある空間に

子供部屋2

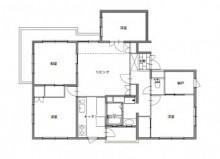
ビフォー
リフォーム前の図面

beforeafter_before2_06
アフター
リフォーム後の図面

 

工事内容  全面リフォーム
詳細(設備機器) キッチン  既存(一部変更)
浴室  LIXIL ソレオ1418
洗面化粧台  LIXIL ラルージュW900
トイレ  LIXIL サティス
詳細(内装材) 壁天井材  サンゲツ 機能性壁紙
床材  ボード株式会社 無垢床材
工事費用  約960万円
工事日数  約40日
施工エリア  目黒区

 

関連の全面改装を見る

リフォームのケンテック公式Instagramはこちら
page top