リフォームのケンテック
  • TEL

    0120-25-4145

    受付時間 09:00-18:00(日祝除く)

  • MAIL

    お問い合わせフォームへ

    年中無休24時間承り中

ナチュラルテイストな賃貸マンションに改装! 港区T様邸

東京都 港区 T様

ご自身がお住まいだったお部屋を、賃貸物件として全面リフォーム。
「貸し出す前に自分が住みたい!」とまで言って下さったお部屋は、
ナチュラルな雰囲気で、明るく、無駄のない空間に仕上がりました。



ナチュラルテイストな賃貸マンションに改装!

明るいリビング
床材は、明るいハードメイプルを使用。
梁の部分にはアクセントクロスで柔らかい雰囲気を演出。

ナチュラルテイストな賃貸マンションに改装!

間仕切り 3枚引き扉
半透明のアクリル面から光だけ通るような建具を選び、扉を閉めても圧迫感がないようにしました。

ビフォー
ナチュラルテイストな賃貸マンションに改装!

既存の玄関
収納がギリギリに設置されており、窮屈で暗い玄関でした。

beforeafter_before2_06
アフター
ナチュラルテイストな賃貸マンションに改装!

明るく、ゆったりとした玄関
玄関収納を洋室側へ埋め込んで、できるだけ玄関スペースを広く確保。浴室側にできたデットスペースを利用して、ちょっとした棚も設置しました。

ビフォー
ナチュラルテイストな賃貸マンションに改装!

既存のキッチン

beforeafter_before2_06
アフター
ナチュラルテイストな賃貸マンションに改装!

システムキッチン LIXILアミィ2250mm
とにかくシンプルに。キッチンパネルと扉の面材は真っ白にすることで、より明るい雰囲気になりました。

ナチュラルテイストな賃貸マンションに改装!

ユニットバス
TOTOWBシリーズ1216サイズTタイプ。お部屋の雰囲気に合わせて、アクセントパネルも選定。(アクセントパネル:ラインホワイトウッド)

ナチュラルテイストな賃貸マンションに改装!

洗面脱衣室
LIXIL ピアラ 幅900mm。


ナチュラルテイストな賃貸マンションに改装!

節水トイレ
最新の節水トイレと機能的なウォシュレット。

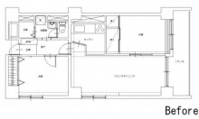
ビフォー
リフォーム前の図面

既存平面図

beforeafter_before2_06
アフター
リフォーム後の図面

リフォーム後平面図

31a36b3dc2c4a180b7d891b84a6e09df-s

 

工事内容  マンション全面改装工事
詳細 壁天井材  サンゲツ 量産品クロス
床材  朝日ウッドテック ハードメイプル
建具  Panasonic リビエ エクセルライト柄
設備機器  キッチン・洗面・浴室・トイレ他
工事費用  約450万円
工事日数  40日
施工エリア  港区

 

関連の全面改装を見る

リフォームのケンテック公式Instagramはこちら
page top