リフォームのケンテック
  • TEL

    0120-25-4145

    受付時間 09:00-18:00(日祝除く)

  • MAIL

    お問い合わせフォームへ

    年中無休24時間承り中

スクリーンウォールとこだわりの内装・設備リフォーム 目黒区S様邸

東京都 目黒区S様邸

お引越し前にマンションの水廻りと内装の工事をご検討されていました。
クロスは一部アクセントクロスでボタニカル柄のクロスを施工。お客様のお好みのテイストにアレンジされました。



ビフォー
スクリーンウォールとこだわりの内装・設備リフォーム

リフォーム前のリビング



beforeafter_before2_06
アフター
スクリーンウォールとこだわりの内装・設備リフォーム

リフォーム後のリビング&洋室




ご提案パース

間仕切り開閉壁イメージパース

スクリーンウォールとこだわりの内装・設備リフォーム

完成後の間仕切り開閉壁

LIXIL,Panasonic,YKK apの3社をご検討され、
ショールームにも足を運んでいただき、YKK ap
スクリーンウォールを採用しました。

スクリーンウォールとこだわりの内装・設備リフォーム
3枚連動の引戸が標準ですが、一枚ずつ独立して 

動かせるよう、特注仕様としました。

スクリーンウォールとこだわりの内装・設備リフォーム
引戸を片側に寄せると開放的な空間になります。

スクリーンウォールとこだわりの内装・設備リフォーム

スクリーンウォールとこだわりの内装・設備リフォーム

ビフォー
スクリーンウォールとこだわりの内装・設備リフォーム

リフォーム前のキッチン

beforeafter_before2_06
アフター
スクリーンウォールとこだわりの内装・設備リフォーム

リフォーム後のキッチン

クリナップ クリンレディ
面材はクリスタディープグリーンをお選び頂きました。

スクリーンウォールとこだわりの内装・設備リフォーム
コンロはリンナイ製 LiSSeを取付 

しました。お客様こだわりのコンロです。

スクリーンウォールとこだわりの内装・設備リフォーム
食器洗い乾燥機は最大容量の 

ディープ型を採用。

スクリーンウォールとこだわりの内装・設備リフォーム
収納力たっぷりの引き出し収納です。

ビフォー
スクリーンウォールとこだわりの内装・設備リフォーム

リフォーム前のユニットバス

beforeafter_before2_06
アフター
スクリーンウォールとこだわりの内装・設備リフォーム

リフォーム後のユニットバス

TOTO WBシリーズDタイプ1316

スクリーンウォールとこだわりの内装・設備リフォーム

スクリーンウォールとこだわりの内装・設備リフォーム
リンナイ製 ミスト機能付き浴室暖房乾燥機を取り付け

スクリーンウォールとこだわりの内装・設備リフォーム

ビフォー
スクリーンウォールとこだわりの内装・設備リフォーム

リフォーム前の洗面室

beforeafter_before2_06
アフター
スクリーンウォールとこだわりの内装・設備リフォーム

リフォーム後の洗面室

洗面化粧台は既存のままですが、内装をボタニカル柄でアレンジしました。

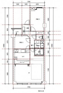
ビフォー
リフォーム前の図面

Before図面

beforeafter_before2_06
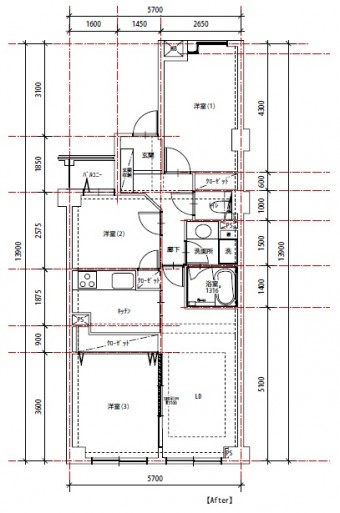
アフター
リフォーム後の図面

After図面

 

工事内容  水廻リ・内装フォーム
 
詳細(設備機器)
 
キッチン  クリナップ クリンレディ W2100
浴室  TOTO WB1316
詳細(内装材) 壁天井材  クロス
床材  クッションフロア(キッチン・洗面)
工事費用  355万円
工事日数  約25日
施工エリア  目黒区

 

関連の全面改装を見る

リフォームのケンテック公式Instagramはこちら
page top