リフォームのケンテック
  • TEL

    0120-25-4145

    受付時間 09:00-18:00(日祝除く)

  • MAIL

    お問い合わせフォームへ

    年中無休24時間承り中

間取り変更でゆったりできる広々としたLDKに 川崎市中原区Y様邸

リフォームのきっかけ

戸建てにお住まいのY様。
もともと6畳の和室とダイニングキッチンがあった1階を間仕切り変更して広々としたLDKに
リフォームしました。
玄関ホールからの入口とトイレの入口も位置を変更し、リビングで使える収納も設置しました。

間取り変更でゆったりできる広々としたLDKに

ビフォー
間取り変更でゆったりできる広々としたLDKに
リフォーム前のキッチン

beforeafter_before2_06
アフター
間取り変更でゆったりできる広々としたLDKに
リフォーム後のキッチン

クリナップ ラクエラにお取替え。
色は<ミストアッシュ>という自然な仕上げが魅力的な明るい木目のお色をお選び頂きました。

間取り変更でゆったりできる広々としたLDKに
もともとL型のキッチンがついていましたが、今回キッチンの位置を変更し、I型のキッチンに。

背面には家電収納を兼ねたカウンター収納を設置しました。 

間取り変更でゆったりできる広々としたLDKに
リフォーム後のキッチン&ダイニング部分

間取り変更でゆったりできる広々としたLDKに
リフォーム後のキッチン&ダイニング部分

ビフォー
間取り変更でゆったりできる広々としたLDKに
リフォーム前の和室

beforeafter_before2_06
アフター
間取り変更でゆったりできる広々としたLDKに
リフォーム後のリビングからみたキッチン

間取り変更でゆったりできる広々としたLDKに
構造上撤去できない柱は柱を残して、キッチン側に棚を造作しました。

間取り変更でゆったりできる広々としたLDKに
リビングには新たに床暖房も設置しました。

ビフォー
間取り変更でゆったりできる広々としたLDKに
リフォーム前のダイニング入口扉

beforeafter_before2_06
アフター
間取り変更でゆったりできる広々としたLDKに
リフォーム後のリビング収納

もともダイニングの入口だった部分はリビングの収納に間取り変更しました。
内部は可動棚になっていて、キッチンやリビングで使うものがたくさん収納できます。

ビフォー
間取り変更でゆったりできる広々としたLDKに
リフォーム前のトイレ

beforeafter_before2_06
アフター
間取り変更でゆったりできる広々としたLDKに
リフォーム後のトイレ

TOTO GG800にお取替え。
手洗いしやすい深ひろボウルで子供でもしっかり手が洗いやすいデザインになっています。

ビフォー
間取り変更でゆったりできる広々としたLDKに
リフォーム前の洗面化粧台

beforeafter_before2_06
アフター
間取り変更でゆったりできる広々としたLDKに
リフォーム後の洗面脱衣室

LIXIL ピアラにお取替え。
洗面室の床はタイル貼りからクッションフロアに変えて
掃除がしやすく明るい雰囲気に。


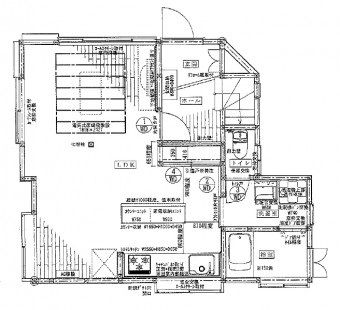
ビフォー
リフォーム前の図面
リフォーム前1階図面

beforeafter_before2_06
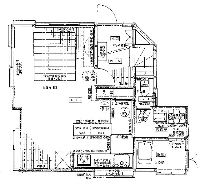
アフター
リフォーム後の図面
リフォーム後1階図面

 

工事内容  間取り変更リフォーム
詳細
(設備機器)
キッチン  クリナップ ラクエラ
トイレ/洗面  TOTO GG-800/LIXIL ピアラ
詳細
(内装材)
壁天井材  クロス
床材  朝日ウッドテック エアリスα
工事費用  654万円 (税込) 
工事日数  約1ヶ月半
施工エリア  川崎市中原区

 

関連の間取り変更を見る

リフォームのケンテック公式Instagramはこちら
page top