リフォームのケンテック
  • TEL

    0120-25-4145

    受付時間 09:00-18:00(日祝除く)

  • MAIL

    お問い合わせフォームへ

    年中無休24時間承り中

充実収納とおしゃれで明るいLDKでこだわりの賃貸物件へ 目黒区 K様邸

東京都 目黒区 K様邸

何度も工事のご依頼を頂いているK様。
今回は賃貸物件が空いたので退去修繕でキレイにしたいとご依頼を頂きました。



ビフォー
充実収納とおしゃれで明るいLDKでこだわりの賃貸物件へ

 

リフォーム前の洋室

beforeafter_before2_06
アフター
充実収納とおしゃれで明るいLDKでこだわりの賃貸物件へ



リフォーム後



既存の洋室と台所をつなげてLDKに。

キッチンを対面式にして、開放感のある明るい

リビングになりました。



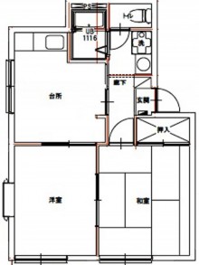
ビフォー
リフォーム前の図面

 

リフォーム前の間取り図

beforeafter_before2_06
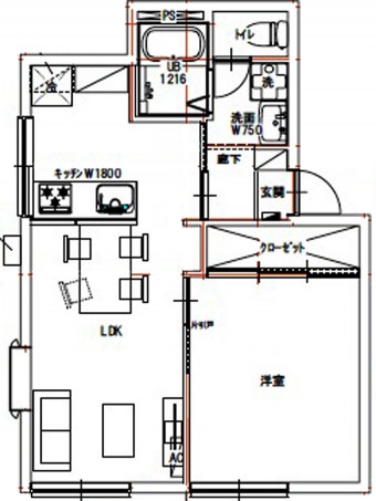
アフター
リフォーム後の図面

 

リフォーム後の間取り図

ビフォー
充実収納とおしゃれで明るいLDKでこだわりの賃貸物件へ

リフォーム前のキッチン

beforeafter_before2_06
アフター
充実収納とおしゃれで明るいLDKでこだわりの賃貸物件へ

リフォーム後のLDK

壁面に面していたI型1800サイズのキッチンを

対面式に変更。明るいキッチンです。

アクセントクロスがよりLDを広くスッキリ見せます。

ビフォー
充実収納とおしゃれで明るいLDKでこだわりの賃貸物件へ

リフォーム前の和室押入れ

beforeafter_before2_06
アフター
充実収納とおしゃれで明るいLDKでこだわりの賃貸物件へ

リフォーム後

 

押入横の入口扉をつなげて広々のクローゼットに変更。

ビフォー
充実収納とおしゃれで明るいLDKでこだわりの賃貸物件へ

リフォーム前の浴室

beforeafter_before2_06
アフター
充実収納とおしゃれで明るいLDKでこだわりの賃貸物件へ

リフォーム後の浴室

 

TOTO WTシリーズ1216 にお取替え。

既存の1116 からサイズアップしました。

ビフォー
充実収納とおしゃれで明るいLDKでこだわりの賃貸物件へ

リフォーム前のトイレ

beforeafter_before2_06
アフター
充実収納とおしゃれで明るいLDKでこだわりの賃貸物件へ

リフォーム後のトイレ

 

ピュアレストQR にお取替え

 

 

工事内容  間取り変更リフォーム
詳細(設備機器) 建具・玄関収納  Panasonic ベリティス
キッチン  クリナップ コルティ
ユニットバス  TOTO WTシリーズ1216
洗面  ノーリツ シャンピーヌ
トイレ  ピュアレストQR
インナーサッシ  YKKAP プラマードU
工事費用  280万円(税込) 
工事日数  約1ヶ月
施工エリア  目黒区

 

関連の間取り変更を見る

リフォームのケンテック公式Instagramはこちら
page top