リフォームのケンテック
  • TEL

    0120-25-4145

    受付時間 09:00-18:00(日祝除く)

  • MAIL

    お問い合わせフォームへ

    年中無休24時間承り中

自然光と空調を開口壁でやさしくとりこむ間取りに 大田区I様邸

リフォームのきっかけ

築51年経過したマンションを、間取りも変更して全面リフォームすることになりました。 限られた専有面積53㎡のスペースで、リビングを広く、個室が2部屋欲しいとのI様のご要望を踏まえたプランを作成。新規にエアコン用の穴開けができないので、
エアコンを2台で個室2部屋とLDKの空調を賄うことになってしまいます。
そこで、間仕切壁を工夫して、冷暖房や採光がリビング側に届くようにしました。

自然光と空調を開口壁でやさしく取り込む 大田区I様邸

365a62155a72bd174bea801f39bb7a8b

ビフォー
fa8944deb42db0ab035a0357315c4599

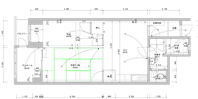
改装前図面

beforeafter_before2_06
アフター
0f42cf73b877360a5e44bac0991442de3

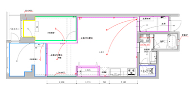
改装後図面

ビフォー
a9bde805d15f0efe3b87db23c7fbf960
リフォーム前

リビングからバルコニー側に向かって左側が和室でした。

beforeafter_before2_06
アフター
6e75f4fadd99a1ee2715f6f9118c4231
リフォーム後

リビングが広くなりました。

自然光と空調を開口壁でやさしく取り込む 大田区I様邸
工事写真①

キッチン取付前のリビング

自然光と空調を開口壁でやさしく取り込む 大田区I様邸
工事写真②

間仕切壁の上部を開口にします。冷暖房がリビングに届くようにするためです。

自然光と空調を開口壁でやさしく取り込む 大田区I様邸
工事写真③

開口を付けることによって、空調だけでなく、窓からの自然光もリビングに届くので明るく圧迫感も少なくなります。

ビフォー
2e5f754e7341cfa6ad3d971cbba8da6e1
リフォーム前

beforeafter_before2_06
アフター
自然光と空調を開口壁でやさしく取り込む 大田区I様邸
リフォーム後

ビフォー
a9e1078b0cdd2c6402aed0d408228a0b1
リフォーム前

beforeafter_before2_06
アフター
8780a2af662fe31d8a6154f89d610f15
リフォーム後

クロスの色を一部変えてより明るく、広く見えます。

自然光と空調を開口壁でやさしく取り込む 大田区I様邸
洋室側からリビングへの引き戸

自然光と空調を開口壁でやさしく取り込む 大田区I様邸
バルコニーのある洋室側からリビングに向かって。

f3cc2bb012a44e69eef353c48d4f7165
リビング壁面

ビフォー
e3f4ee0e07e918967f00cf317b521c283
リフォーム前のキッチン

beforeafter_before2_06
アフター
68f8697c8c949b11fe950d5d553474092
リフォーム後のキッチン


LIXIL システムキッチンシエラSにお取替え。

ビフォー
a7715d624c90fdb2cf3b1726ac1999dd8
リフォーム前の浴室

beforeafter_before2_06
アフター
bd804f8945d1205c3935cf89019c9a992
リフォーム後の浴室


LIXIL システムバスリノビオVシリーズ 1116サイズ
にお取替え。さわやかなお色のアクセントパネルは
青磁リーフ。

ビフォー
8d5a9fded54251d4db7bab95a7ccb3f1
リフォーム前の洗面室

beforeafter_before2_06
アフター
fbfb872f6b9df3c87819ef1e7c06ca6e1
リフォーム後の洗面化粧台


LIXIL シアラ にお取替え。
フレッシュグリーンの壁が爽やかです。

ビフォー
自然光と空調を開口壁でやさしく取り込む 大田区I様邸
リフォーム前トイレ

beforeafter_before2_06
アフター
e12c23aa0265f7333e828104bca6e6383
リフォーム後トイレ

TOTOのコンパクト便器 にお取替え。

 

工事内容  マンション間取り変更リフォーム
 
工事個所
 
キッチン  LIXIL シエラS
浴室  LIXIL リノビオV 1119
洗面  LIXIL シアラ
建具  Panasonic ベリティス
工事費用  約550万円 (税込)
工事日数  約40日
施工エリア  大田区

 

関連の間取り変更を見る

リフォームのケンテック公式Instagramはこちら
page top