リフォームのきっかけ
今回ご紹介させていただくのは品川区H様邸の全面リフォームです。
お嬢様のご結婚を機に全面改修工事のご依頼をいただきました。
◎水まわり各設備についてはページ最後に紹介リンクがございます

〇お客様のご希望内容
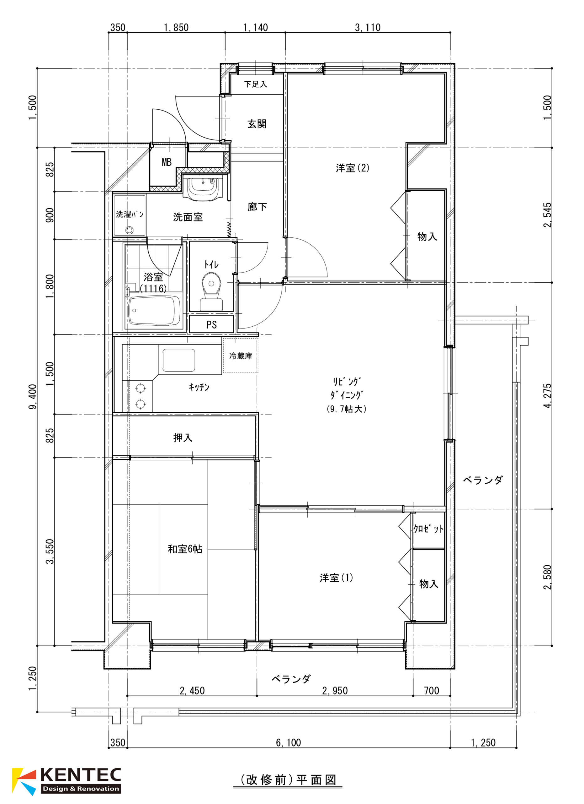
- リビングを見ながら料理が出来るようにキッチン位置を変更
- 間取り変更をして書斎・ウォークインリビング・寝室に変更
- ユニットバス、洗面化粧台、トイレの位置はそのままに新しい設備へ交換
-

-

書斎、WIC、寝室の幅を揃えリビングダイニングまで新たに導線を確保しました


●写真左:書斎 ●写真右:ウォークインクローゼット(WIC)


●写真左:ウォークインクローゼット(WIC) ●写真右:WIC→寝室→リビングダイニング


●写真左:寝室
・天井は板張りでシックな印象に
●写真右:リビングダイニング
・二部屋続きの洋室を間取り変更することで開放的な空間が誕生
・躰体床から天井までの高さが2450mmのところ、最小限の下がりで天井を組み、
排水管の勾配を確保しながら最小高さでの床組を。
大工さんの経験を生かしていただきながらフローリング仕上がりから天井まで
2360mmの高さを確保しました。
【工事の様子】



その他、工事詳細を「スタッフ日記」営業担当の藤川のブログでも紹介しております。
ご興味のあるかたは是非ご覧ください!
▪ マンション全面改修工事【解体編】
▪ マンション全面改修工事【配管工事編】
▪ マンション全面改修工事【天井地組編】
▪ マンション全面改修工事【床下地組・フリーフロアー編】
▪ マンション全面改修工事【壁角スタット組/天井ボード貼】
▪ マンション全面改修工事【工事完了】
●壁面収納
-

柔らかな木目は空間に馴染みながら、アクセントにもなる収納棚の完成です
-

収納力抜群、スーツケースや掃除機などもそのまま収納できるスペースもご用意
【各メーカー商品リンク】
・クリナップ:STEDIA
・TOTO:オクターブスリム
・TOTO:WYシリーズ
・TOTO:ピュアレストEX
【施工データ】
工事内容:全面改装・間取り変更
建築種別:マンション
工事日数:約80日
工事費用:1,177万円(税込)
施工エリア:東京都品川区
🏡その他の設備工事
🌸キッチンリフォーム
🌸洗面化粧台リフォーム
🌸浴室リフォーム
🌸トイレリフォーム
機能的なデザイン、住環境快適計画
リノベーションのことならケンテックへご相談ください





