リフォームのケンテック
  • TEL

    0120-25-4145

    受付時間 09:00-18:00(日祝除く)

  • MAIL

    お問い合わせフォームへ

    年中無休24時間承り中

ご家族とネコちゃんみんな楽しい!キャットウォークのある家 目黒区M様邸

リフォームのきっかけ

5年ほど前から何度か工事をさせて頂いているM様。
今回は壁に囲われて少し閉鎖的だったキッチンを開放的にするため、壁を撤去してL型に変更しました。
また、リビングには梁や下がり壁の高さを活かして、4方にキャットウォークを設置しました。
ご家族とネコちゃんみんなが楽しめるリビングです。

ご家族とネコちゃんみんな楽しい!キャットウォークのある家

ビフォー
ご家族とネコちゃんみんな楽しい!キャットウォークのある家
リフォーム前のキッチン

beforeafter_before2_06
アフター
ご家族とネコちゃんみんな楽しい!キャットウォークのある家
リフォーム後のキッチン

I型からL型に変更 壁を撤去して、開放的なキッチンに

もともとは壁に囲まれてI型のキッチンがついていました。
今回、リビングとキッチンの間の壁を撤去。キッチンはI型からL型に変更しました。

キッチンはトクラスのベリー。扉の色はライトオークをお選び頂きました。
吊戸棚のコーナーの部分はあえて収納ユニットをとりつけず、オープンな収納として、面材の色を合わせてカウンターを取り付けました。

またキッチンパネルは通常アイカのものを使うことが多いのですが、今回はDICのものを選定。
鮮やかな水色がキッチンのいいアクセントになっています。

ご家族とネコちゃんみんな楽しい!キャットウォークのある家

ご家族とネコちゃんみんな楽しい!キャットウォークのある家

ご家族とネコちゃんみんな楽しい!キャットウォークのある家
リビングから見たキッチン

ビフォー
ご家族とネコちゃんみんな楽しい!キャットウォークのある家
リフォーム前のリビング

beforeafter_before2_06
アフター
ご家族とネコちゃんみんな楽しい!キャットウォークのある家
リフォーム後のリビング

ビフォー
ご家族とネコちゃんみんな楽しい!キャットウォークのある家
リフォーム前のリビング

beforeafter_before2_06
アフター
ご家族とネコちゃんみんな楽しい!キャットウォークのある家
リフォーム後のリビング

ご家族とネコちゃんみんな楽しい!キャットウォークのある家

4方にキャットウォークがあるリビング

キッチンとの間の壁を取り払って、開放的になったLDKです。お料理をしながらもリビングでの家族の様子が分かるようになりました。
もともとグレーのアクセントクロスが貼ってありましたが、今回は淡いグリーンのクロスに貼り替え、印象がガラリと変わりました。

キッチン部分の天井はリビングより下がっていましたが、その段差や梁の高さを活かしてリビングの4方にキャットウォークを取り付けました。また、ネコちゃんが登る階段や穴もつくりました。

ご家族とネコちゃんみんなが楽しめるリビングとなりました。

ご家族とネコちゃんみんな楽しい!キャットウォークのある家

ご家族とネコちゃんみんな楽しい!キャットウォークのある家

イメージパースを使ってご提案
キッチンの壁を取り払いオープンになった様子やキャットウォークを取り付けた様子をイメージパースを使って
ご提案しました。

ご提案パース

ご提案パース

ご提案パース

ビフォー
ご家族とネコちゃんみんな楽しい!キャットウォークのある家
リフォーム前の洋室

beforeafter_before2_06
アフター
ご家族とネコちゃんみんな楽しい!キャットウォークのある家
リフォーム後の洋室

3枚連動引き戸で使いやすいクローゼットにリフォーム

LDKの隣にある洋室です。
以前は入口の扉を避けるようにクローゼットがあり、お部屋を圧迫している印象がありました。
今回、入口の扉をずらすことでクローゼットをスッキリ収めました。

収納の扉は3枚連動引き戸です。
通常の仕様は鏡付きがありませんが、上下に金物を取り付けて、扉いっぱいの鏡を取り付けました。

リビングとの間の建具は2枚片引き戸です。
開けた時に建具2枚分の開口になりますので、開放感があります。
壁が厚くなってしまう部分を活かして、リビング側にはニッチを作りました。

ご家族とネコちゃんみんな楽しい!キャットウォークのある家

ご家族とネコちゃんみんな楽しい!キャットウォークのある家

ご家族とネコちゃんみんな楽しい!キャットウォークのある家

ご家族とネコちゃんみんな楽しい!キャットウォークのある家

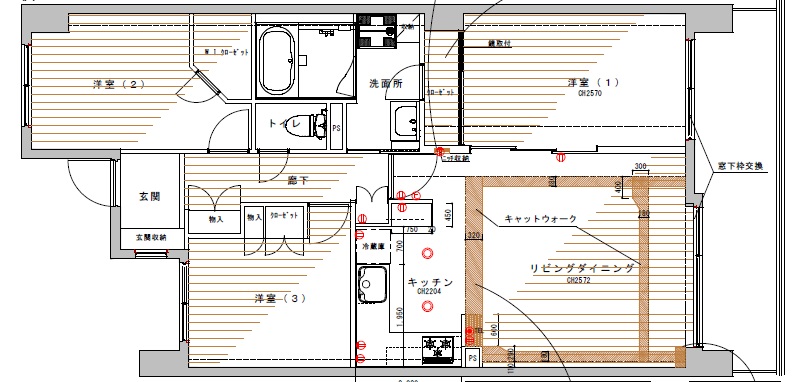
ビフォー
リフォーム前の図面

改装前図面

beforeafter_before2_06
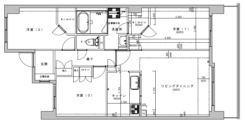
アフター
リフォーム後の図面

改装後図面

 

工事内容  間取り変更リフォーム
詳細(設備機器) キッチン  トクラス Berry
建具・玄関収納  Panasonic ベリティス
詳細(内装材) 壁天井材  クロス
床材  LIXIL ラシッサDフロア
工事費用  484万円 (税込) 
工事日数  約1ヶ月
施工エリア  目黒区

 

関連の間取り変更を見る

リフォームのケンテック公式Instagramはこちら
page top