リフォームのケンテック
  • TEL

    0120-25-4145

    受付時間 09:00-18:00(日祝除く)

  • MAIL

    お問い合わせフォームへ

    年中無休24時間承り中

間取り変更でゆったりとした水廻りに 練馬区N様邸

東京都 練馬区N様邸

木造の戸建て住宅の1階の改装のご依頼でした。
洗面室と浴室が狭く、もっとゆったりとした空間にしたいとのことで
2つあるトイレを1つなくして、水廻りの空間を一新しました。



ビフォー
間取り変更でゆったりとした水廻りに

既存在来浴室

beforeafter_before2_06
アフター
間取り変更でゆったりとした水廻りに

ユニットバス TOTO1317サイズ
WFシリーズ Xタイプ

ワイドミラーを選定することで、浴室がさらに広く感じられます。
ブローバスを取付け、旦那様の毎日の疲れを癒してくれます。

ビフォー
間取り変更でゆったりとした水廻りに

既存の洗面化粧台
とても狭くて、暗い空間でした。

beforeafter_before2_06
アフター
間取り変更でゆったりとした水廻りに

LIXIL ラルージュ
洗面室の位置をがらっと変えて、広々としたパウダールームに。

間取り変更でゆったりとした水廻りに

オシャレな人大のカウンター

間取り変更でゆったりとした水廻りに

サイドキャビネット
細かな収納を置ける、とっても便利な収納。

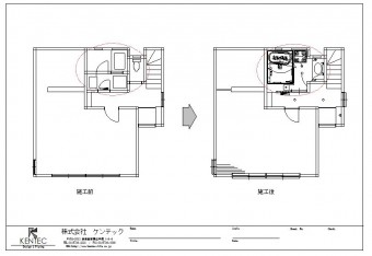
図面

リフォームプラン

070850400f624827cfd49271711df6934-s

 

工事内容  水廻り改装工事
 詳細 ユニットバス  TOTO1WFシリーズ1317サイズ 
洗面化粧台  LIXIL ラルージュ幅1200mm
   
工事費用  約245万円
工事日数  12日
施工エリア  練馬区

 

関連の間取り変更を見る

リフォームのケンテック公式Instagramはこちら
page top