リフォームのケンテック
  • TEL

    0120-25-4145

    受付時間 09:00-18:00(日祝除く)

  • MAIL

    お問い合わせフォームへ

    年中無休24時間承り中

和室を寝室&ウォークインクローゼットにリフォーム 目黒区F様邸

東京都 目黒区F様邸

7年前、LDKや水廻り設備を中心にリフォーム工事をして頂いたF様。
今回は2階の和室とクローゼットのある部分を間取り変更してご夫婦で使う主寝室にしたいと工事のご依頼を頂きました。



ビフォー
和室を寝室&ウォークインクローゼットにリフォーム

リフォーム前の和室

beforeafter_before2_06
アフター
和室を寝室&ウォークインクローゼットにリフォーム

リフォーム後の寝室

和室からフローリング貼の洋室にリフォーム。
落ち着いた主寝室に生まれ変わりました。

和室を寝室&ウォークインクローゼットにリフォーム

リフォーム後の寝室

ご提案パース

寝室イメージパース①

和室を寝室&ウォークインクローゼットにリフォーム

リフォーム後の洋室

ご提案パース

寝室イメージパース②

ビフォー
和室を寝室&ウォークインクローゼットにリフォーム

リフォーム前の廊下&クローゼット

beforeafter_before2_06
アフター
和室を寝室&ウォークインクローゼットにリフォーム

リフォーム後の和室

以前廊下とクローゼットだった部分にはお客様をお招きできるような和室を新たにつくりました。

和室を寝室&ウォークインクローゼットにリフォーム

寝室入口

寝室入口の扉は既存の扉を利用して移設しました。

和室を寝室&ウォークインクローゼットにリフォーム

ウォークインクローゼット入口

和室を寝室&ウォークインクローゼットにリフォーム

ウォークインクローゼット内

棚板とハンガーパイプも設置。
収納量はバッチリです!

 

工事内容  間取り変更リフォーム
詳細(内装材) 壁天井材  クロス
床材  朝日ウッドテック ライブナチュラル
工事費用  約165万円 (税込) 
工事日数  約1ヶ月
施工エリア  目黒区

 

ビフォー
リフォーム前の図面

改装前図面

beforeafter_before2_06
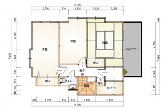
アフター
リフォーム後の図面

改装後図面

関連の間取り変更を見る

リフォームのケンテック公式Instagramはこちら
page top