リフォームのケンテック
  • TEL

    0120-25-4145

    受付時間 09:00-18:00(日祝除く)

  • MAIL

    お問い合わせフォームへ

    年中無休24時間承り中

2世帯住宅に階段を新設 世田谷区G様邸

東京都 世田谷区G様邸

二世帯住宅に内部階段を作りたいとのご要望でした。

ビフォー
2世帯住宅に階段を新設

階段をかける前の1階納戸

beforeafter_before2_06
アフター
2世帯住宅に階段を新設

新設した階段

納戸の手前部分に階段を掛けて奥はキッチンから入る納戸にしました。

2世帯住宅に階段を新設

内部階段を新設

 

2世帯住宅のG様邸。もともとは外階段しかなく室内に階段がなかったのですが、新設したいとのご要望でした。
1階納戸部分を一部階段スペースに。1階の廊下からスムーズに2階に上がれるようになりました。
もともと廊下から出入りしていた納戸はキッチン側から出入りできるように変更しました。

2世帯住宅に階段を新設

工事中①

 

2階の廊下部分です。ここを広げて階段を作りました。

2世帯住宅に階段を新設

工事中②

 

2階のリビング側に廊下を広げました。

2世帯住宅に階段を新設

工事中③

 

新設した階段。

2世帯住宅に階段を新設

リフォーム後の1階納戸①

2世帯住宅に階段を新設

リフォーム後の1階納戸②



階段下も納戸スペースです。

ビフォー
2世帯住宅に階段を新設

リフォーム前のロフト

以前からあった2階リビングの上には広めのロフトがありました。

beforeafter_before2_06
アフター
2世帯住宅に階段を新設

リフォーム後のロフト

階段を新設して廊下になってしまった上は、リビング側から使えるロフトに変更。以前からあったロフトと合体しました。

ロフトで空間を有効活用

階段を付けるため、泣く泣くリビングを半間分狭くしましたが、その新しく廊下になった上の部分は、ロフトに変更して、もともとあったロフトに繋ぎ、昇る位置を変更しました。
以前のロフトに昇るときには、大工さんが作った木製の梯子を持ってきて掛けて、昇っていました。
重く、大きいので、リビング隅の床に置いてあり、昇らせて頂いたときも持ち上げるのが大変でした。
今回新しくすることにして、アルミ製で簡単に引っ張り出せるタイプに変更しました。常時掛けておけて、角度も60度ぐらいなので、大きな荷物を持って上り下りしても大丈夫です。使わないときにはすっきり壁に掛けて置けます。

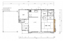
ビフォー
リフォーム前の図面

1階既存図面

beforeafter_before2_06
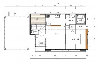
アフター
リフォーム後の図面

1階改修図面

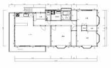
ビフォー
リフォーム前の図面

2階既存図面

beforeafter_before2_06
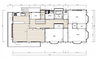
アフター
リフォーム後の図面

2階改修図面

 

工事内容  間取り変更リフォーム
工事費用  約757万円
工事日数  47日
施工エリア  世田谷区

 

関連の間取り変更を見る

リフォームのケンテック公式Instagramはこちら
page top