リフォームのケンテック
  • TEL

    0120-25-4145

    受付時間 09:00-18:00(日祝除く)

  • MAIL

    お問い合わせフォームへ

    年中無休24時間承り中

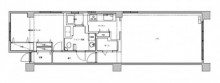
間仕切り開閉壁スクリーンウォールで自由な空間に 世田谷区O様邸

東京都 世田谷区O様邸

中古のマンションを購入されたのを機会にリフォームを実施。
LDに子供のためのフリースペースを作るため二つの部屋の間仕切りを撤去して
快適な空間にリフォーム。



ビフォー
間仕切り開閉壁スクリーンウォールで自由な空間に 

工事中の洋室とリビングルーム
二つの部屋を仕切っていた壁を解体。

beforeafter_before2_06
アフター
間仕切り開閉壁スクリーンウォールで自由な空間に 

工事後の洋室とリビングルーム
特注のスライディングドアを製作し、本当にピッタリに納まったときは、ちょっと感動しました。壁を取ってしまったところにスライディングドアを取り付けたので、敷居をフローリングの色に合わせて取り付けました。

間仕切り開閉壁スクリーンウォールで自由な空間に 

b08b05af2f829a3617a4f9b0d7055d5c-s-1

 

工事内容  マンション内部改装工事
詳細 間仕切開閉壁  パナソニック スクリーンウォール
工事費用  約85万円
工事日数  5日
施工エリア  世田谷区

 

関連の間取り変更を見る

リフォームのケンテック公式Instagramはこちら
page top