リフォームのケンテック
  • TEL

    0120-25-4145

    受付時間 09:00-18:00(日祝除く)

  • MAIL

    お問い合わせフォームへ

    年中無休24時間承り中

壁面収納でお部屋がひろびろ 目黒区K様邸

東京都 目黒区K様邸

リピートのお客様からご紹介頂いたK様。
今回こちらのマンションにお引越しするにあたり、間仕切りをとりLD空間を広くし、収納部分をすっきりさせたいとのご要望でした。



ビフォー
壁面収納でお部屋がひろびろ

リフォーム前の間仕切り

既存はLDの隣に洋室6畳があり間仕切り戸で仕切られていました。

beforeafter_before2_06
アフター
壁面収納でお部屋がひろびろ

リフォーム後のLD

間仕切りを撤去し、収納を壁面に集約したので、広々としたLDになりました。

壁面収納でお部屋がひろびろ

LD収納部分

既存柱型に合わせて、ムダのないすっきり大容量の収納

ご提案パース

イメージパース

壁面収納でお部屋がひろびろ

リフォーム後のLD

ご提案パース

イメージパース

壁面収納でお部屋がひろびろ

浴室

壁面収納でお部屋がひろびろ

洗面

壁面収納でお部屋がひろびろ

トイレ

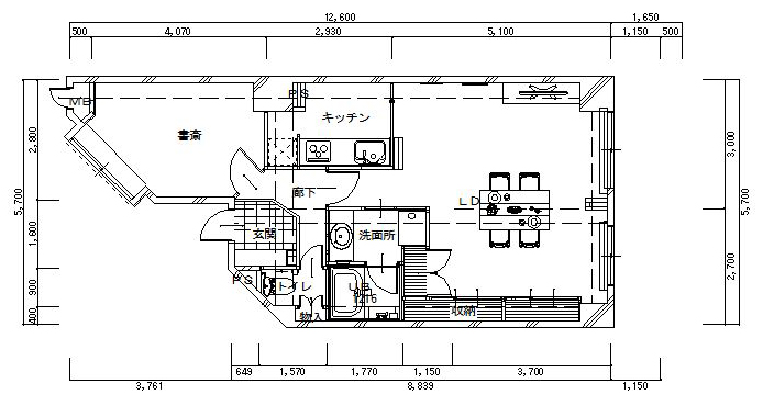
リフォーム後の図面

 

工事内容  間取り変更リフォーム

詳細(設備機器)

  ユニットバス  TOTO WFシリーズ
    トイレ  TOTO ピュアレストEX
詳細(内装材)    壁天井材   クロス
     床材   フローリング Panasonic ウッディF45
工事費用  約412万円
工事日数  15日
施工エリア  目黒区

 

関連の間取り変更を見る

リフォームのケンテック公式Instagramはこちら
page top