リフォームのケンテック
  • TEL

    0120-25-4145

    受付時間 09:00-18:00(日祝除く)

  • MAIL

    お問い合わせフォームへ

    年中無休24時間承り中

家族みんなが集まる明るいリビングに 狛江市U様邸

東京都 狛江市U様邸

築27年のマンションにお住まいのU様。キッチン周り、壁や床の老朽化が気になり始めリフォームをご検討されていました。
合わせて収納スペースの確保、段差のないバリアフリー化もご希望でした。


ビフォー
家族みんなが集まる明るいリビングに

リフォーム前のダイニングと和室

beforeafter_before2_06
アフター
家族みんなが集まる明るいリビングに

リフォーム後のリビングダイニング

 

既存LDと隣の和室を1つにつなげて、開放感のある広々としたLDKに間取り変更しました。
梁の部分には間接照明も設置しました。



ビフォー
家族みんなが集まる明るいリビングに

リフォーム前の和室

beforeafter_before2_06
アフター
家族みんなが集まる明るいリビングに

リフォーム後のリビングダイニング

和室の畳からフローリング貼りに変更しました。
壁の一面はアクセントでこげ茶のクロスを施工しました。

ビフォー
家族みんなが集まる明るいリビングに

リフォーム前のダイニング

beforeafter_before2_06
アフター
家族みんなが集まる明るいリビングに

リフォーム後のLDK

和室とダイニングの間の壁を取り払ったので広々と感じられます。
キッチンは壁付けから対面になるよう位置を変更しました。


ビフォー
家族みんなが集まる明るいリビングに

リフォーム前のキッチン

beforeafter_before2_06
アフター
家族みんなが集まる明るいリビングに

リフォーム後のキッチン

 

トクラス BerryW2400にお取替え。
berryのシンクはカウンターと継ぎ目がなく、お手入れもしやすいのが人気です。シンクのお色はカフェベージュをお選び頂きました。

家族みんなが集まる明るいリビングに

リフォーム後のキッチン背面収納

家族みんなが集まる明るいリビングに

リフォーム後のパントリー入口

キッチン横には以前なかったパントリーを新設しました。ストック品などがたっぷり収納できます。

ビフォー
家族みんなが集まる明るいリビングに

リフォーム前の廊下

beforeafter_before2_06
アフター
家族みんなが集まる明るいリビングに

リフォーム後の廊下

家族みんなが集まる明るいリビングに

家族みんなが集まる明るいリビングに

家族みんなが集まる明るいリビングに

家族みんなが集まる明るいリビングに

リフォーム後の洋室

家族みんなが集まる明るいリビングに

リフォーム後の洋室

 

工事内容  間取り変更リフォーム
詳細(設備機器) キッチン  トクラス Berry
建具・玄関収納  Panasonic ベリティス
詳細(内装材) 壁天井材  クロス
床材  朝日ウッドテック ライブナチュラル
工事費用  752万円 (税込) 
工事日数  約2ヶ月
施工エリア  狛江市

 

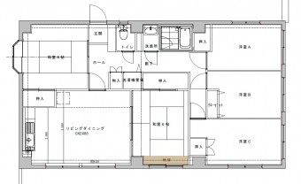
ビフォー
リフォーム前の図面

改装前図面

beforeafter_before2_06
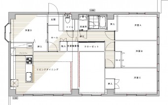
アフター
リフォーム後の図面

改装後図面

関連の間取り変更を見る

リフォームのケンテック公式Instagramはこちら
page top