リフォームのケンテック
  • TEL

    0120-25-4145

    受付時間 09:00-18:00(日祝除く)

  • MAIL

    お問い合わせフォームへ

    年中無休24時間承り中

賃貸物件の間取り変更リフォーム 川崎市高津区K様邸

神奈川県 川崎市高津区k様邸

賃貸として貸している物件のリフォームのご依頼を頂きました。
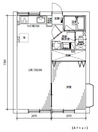
もともと和室2部屋とキッチンの2DKという間取りから、和室を洋室にして1LDKという間取りに変更しました。


ビフォー
賃貸物件の間取り変更リフォーム

リフォーム前の和室①

beforeafter_before2_06
アフター
賃貸物件の間取り変更リフォーム

リフォーム後のLDK

ビフォー
賃貸物件の間取り変更リフォーム

リフォーム前の和室②

beforeafter_before2_06
アフター
賃貸物件の間取り変更リフォーム

リフォーム後の洋室収納

洋室にはW2670の大容量収納を確保。
内部もハンガーパイプと棚で造作しました。


賃貸物件の間取り変更リフォーム

リフォーム後の洋室

賃貸物件の間取り変更リフォーム

リフォーム後の洋室収納(開けた時)

ビフォー
賃貸物件の間取り変更リフォーム

リフォーム前の和室①

beforeafter_before2_06
アフター
賃貸物件の間取り変更リフォーム

リフォーム後のLDKからみたキッチン

和室とキッチンの間にあった押入れも撤去して広々としたLDKに。
部屋として仕切れるようにアコーディオンカーテンも設置しました。

ビフォー
賃貸物件の間取り変更リフォーム

リフォーム前の玄関

beforeafter_before2_06
アフター
賃貸物件の間取り変更リフォーム

リフォーム後の玄関

以前はなかった玄関収納。今回のリフォームで天井までの大容量玄関収納を設置しました。
玄関ドアも塗装でキレイにしました。



ビフォー
賃貸物件の間取り変更リフォーム

リフォーム前のキッチン

beforeafter_before2_06
アフター
賃貸物件の間取り変更リフォーム

リフォーム後のキッチン

ビフォー
賃貸物件の間取り変更リフォーム

リフォーム前の脱衣スペース

beforeafter_before2_06
アフター
賃貸物件の間取り変更リフォーム

リフォーム後の洗面脱衣室

以前はなかった脱衣室を新設しました。
洗面化粧台もサイドキャビネットも設置し、収納量は十分に確保できています。

賃貸物件の間取り変更リフォーム

リフォーム後のユニットバス

ビフォー
賃貸物件の間取り変更リフォーム

リフォーム前のトイレ

beforeafter_before2_06
アフター
賃貸物件の間取り変更リフォーム

リフォーム後のトイレ

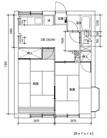
ビフォー
リフォーム前の図面

Before図面

beforeafter_before2_06
アフター
リフォーム後の図面

After図面

 

工事内容  間取り変更リフォーム
詳細(内装材)    壁天井材   クロス
     床材  ダイケン フォレスティア
   トイレドア  LIXIL
詳細(設備器機)    キッチン  クリナップ ラクエラ L2100
  ユニットバス  LIXIL 1116
    トイレ  サティス リトイレEタイプ
   洗面化粧台   シャンピーヌS W750
工事費用  330万円(税込)
工事日数  約1ヶ月半
施工エリア  川崎市高津区

 

関連の間取り変更を見る

リフォームのケンテック公式Instagramはこちら
page top