リフォームのケンテック
  • TEL

    0120-25-4145

    受付時間 09:00-18:00(日祝除く)

  • MAIL

    お問い合わせフォームへ

    年中無休24時間承り中

洋室をリビングと一体化 品川区S様邸

東京都 品川区S様邸

洋室をリビングの一部として、子供のプレイルームにしたい。キッチンの壁を好きな色にしたいというご要望でした。



ビフォー
洋室をリビングと一体化

リフォーム前の洋室

以前は廊下から入る個室でした。

beforeafter_before2_06
アフター
洋室をリビングと一体化

リフォーム後のLDK

洋室とリビングの間の壁を撤去し、広々としたリビングになりました。
L型の間仕切り開閉壁を取付。
普段は開け放し、来客時には仕切りをしめて個室にできます。

洋室をリビングと一体化

開閉壁を開けた時

洋室をリビングと一体化

開閉壁を閉めた時

洋室をリビングと一体化

キッチン壁はS様こだわりのグリーン色に塗装

リビングとキッチンの間の壁はグリーンに塗装し、アクセントとしました。

今回新たに設置した間仕切り開閉壁は建具屋さんによるオーダー品。リビング入口側は扉が全て収納でき、あけた時にスッキリするように設計されています。

ビフォー
リフォーム前の図面

Before図面

beforeafter_before2_06
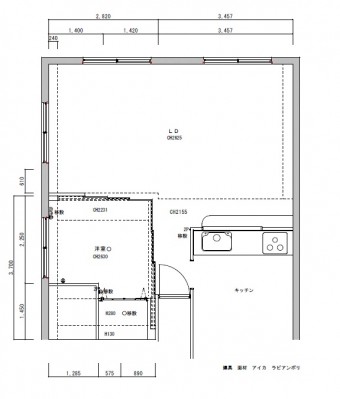
アフター
リフォーム後の図面

After図面

 

工事内容  間取り変更リフォーム
詳細(内装材)    壁天井材   クロス/一部塗装
 間仕切り開閉壁  オーダー品
  クローゼット扉  Panasonic レセンテ
工事費用  約150万円
工事日数  14日
施工エリア  品川区

 

関連の間取り変更を見る

リフォームのケンテック公式Instagramはこちら
page top