リフォームのケンテック
  • TEL

    0120-25-4145

    受付時間 09:00-18:00(日祝除く)

  • MAIL

    お問い合わせフォームへ

    年中無休24時間承り中

奥まった場所にあったキッチンを対面キッチンに 世田谷区Y様邸

お孫さんが生まれたことがきっかけで限られた広さのLDKを広く使いたいとリフォームをご検討されていました。
キッチンにいながらもリビングの様子がよく分かるように、奥まった場所にあったキッチンを対面キッチンにしたい
というご要望でした。

奥まった場所にあったキッチンを対面キッチンに

ビフォー
奥まった場所にあったキッチンを対面キッチンに
リフォーム前のキッチン

beforeafter_before2_06
アフター
奥まった場所にあったキッチンを対面キッチンに
リフォーム後のキッチン

クリナップ ラクエラにお取替え。
扉面材は鏡面(木目柄)のグラセウッドグレージュというお色をお選び頂きました。
奥まった場所にあったキッチンをリビング側に移設。
もともとキッチンがあったスペースには食器棚と冷蔵庫スペースを作りました。

奥まった場所にあったキッチンを対面キッチンに
Y様ご希望の対面キッチンが実現!!

キッチンの位置をずらした事でY様ご希望の対面キッチンが実現しました。
キッチンまわりにはカウンターも設置。
短手側のカウンターは折りたたみ式なので、使わないときはたたんでスペースを広く使うことができます。

奥まった場所にあったキッチンを対面キッチンに

背面には薄型を収納ラックを造作
   吊戸がなくても収納量を確保しました。

キッチンの平面には薄型の収納ラックを造作。
幅が1m以上もあるので、食器やストック品などよく使うものをたくさん収納できます。

奥まった場所にあったキッチンを対面キッチンに
壁のクロス一部はアクセントでグレーのクロスを施工しました。
またお好きな絵が飾れるよう、ピクシャーレールも設置しました。

ビフォー
奥まった場所にあったキッチンを対面キッチンに
リフォーム前のリビング

beforeafter_before2_06
アフター
奥まった場所にあったキッチンを対面キッチンに
リフォーム後のリビング

壁一面を占領していた冷蔵庫・食器棚は全て撤去・移設しスッキリ広々としたリビングに。
玄関とリビングを隔てていた壁と扉も撤去して、より広さを感じるようになりました。
壁の代わりには縦格子を設置。ほどよい目隠しとなっています。

ビフォー
奥まった場所にあったキッチンを対面キッチンに
リフォーム前の玄関収納

beforeafter_before2_06
アフター
奥まった場所にあったキッチンを対面キッチンに
リフォーム後の玄関収納

場所は変わりませんが、玄関収納の半分をトールキャビネットにしたことで収納量がアップ。
縦格子を通してリビングの光も取り込み、以前より明るい玄関になりました。

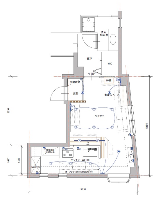
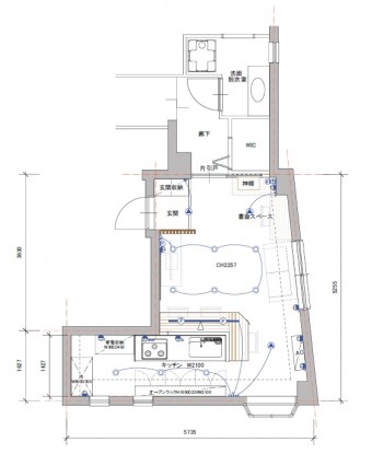
奥まった場所にあったキッチンを対面キッチンに
<リフォーム後の図面>

工事内容  キッチン・内装のリフォーム
詳細(設備・内装) キッチン

 クリナップ ラクエラ W2100

   フローリング  朝日ウッドテック ライブナチュラル
  建具・格子  Panasonic ベリティス
工事費用  約358万円 (税込)
工事日数  約1ヶ月
施工エリア  世田谷区 

関連のキッチンリフォームを見る

リフォームのケンテック公式Instagramはこちら
page top