リフォームのケンテック
  • TEL

    0120-25-4145

    受付時間 09:00-18:00(日祝除く)

  • MAIL

    お問い合わせフォームへ

    年中無休24時間承り中

給水給湯管もやり替え安心の住まいに 川崎市中原区W様邸

7年ほど前、トイレや内装の工事をして頂いたW様。
今回はキッチンと浴室をキレイにしたいとご依頼を頂きました。
またその工事と一緒に給水・給湯の配管を更新したいというご希望でした。

ビフォー
給水給湯管もやり替え安心の住まいに
リフォーム前のキッチン

beforeafter_before2_06
アフター
給水給湯管もやり替え安心の住まいに
リフォーム後のキッチン

クリナップ クリンレディにお取替え。
フードは「とってもクリンフード」シンクは「流レールシンク(大)」です。
扉カラーは「ペアウッドホワイト」という木目調のホワイト柄でお選び頂きました。



ビフォー
給水給湯管もやり替え安心の住まいに
リフォーム前のキッチン

beforeafter_before2_06
アフター
給水給湯管もやり替え安心の住まいに
リフォーム後のキッチン
吊戸の下には「アイエリアボックス(調味料棚タイプ)」を設置。
調味料ポットとキッチンペーパーがまとめて収納でき、必要なときにサッと手元まで下ろせます。

キッチン・浴室工事と合わせて給水給湯の配管を更新

今回キッチンなどの水廻り設備工事と合わせて、給水給湯配管更新工事を行いました。
床材をやり直さない為、天井側を通して配管を更新しました。
今回使用している架橋ポリエチレン管は耐熱性・耐寒性どちらも兼ね備えている優れものです。
耐食性にも優れているので、サビの心配はありません。

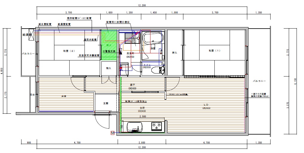
図面

給水給湯管もやり替え安心の住まいに
給水給湯配管更新① ⇒⇒⇒
(キッチン:天井配管)

給水給湯管もやり替え安心の住まいに
給水給湯配管更新② ⇒⇒⇒
(キッチン:梁型に造作)

給水給湯管もやり替え安心の住まいに
給水給湯配管更新③ 

(キッチン:内装仕上げ)

給水給湯管もやり替え安心の住まいに
給水給湯配管更新④ ⇒⇒⇒
(廊下:天井配管)

給水給湯管もやり替え安心の住まいに
給水給湯配管更新⑤ ⇒⇒⇒
(廊下:梁型に造作)

給水給湯管もやり替え安心の住まいに
給水給湯配管更新⑥

(廊下:内装仕上げ)

給水給湯管もやり替え安心の住まいに
給水給湯配管更新⑦
(押入れ床開口部分)

給水給湯管もやり替え安心の住まいに
給水給湯配管更新⑧
(押入れ床開口部分)

給水給湯管もやり替え安心の住まいに
給水給湯配管更新⑨

(和室畳床開口部分)

給水給湯管もやり替え安心の住まいに
リフォーム後の浴室

キッチン工事と合わせてユニットバスの工事もさせて頂きました。
TOTO WGシリーズDタイプ1316サイズにお取替え。
壁パネルはブリックナチュラルという温かみのあるお色です。
追炊き配管工事も行いました。

工事内容  キッチン・浴室リフォーム
詳細(設備機器) キッチン  クリナップ クリンレディ
ユニットバス  TOTO WGシリーズDタイプ1316
工事費用  約295万円(税込) 
工事日数  約2週間
施工エリア  川崎中原区

関連のキッチンリフォームを見る

リフォームのケンテック公式Instagramはこちら
page top