リフォームのケンテック
  • TEL

    0120-25-4145

    受付時間 09:00-18:00(日祝除く)

  • MAIL

    お問い合わせフォームへ

    年中無休24時間承り中

中古マンションをお料理教室のキッチンスタジオに  渋谷区T様邸

リフォームのきっかけ

お料理教室を開くことになった渋谷区のT様。
3DKのマンションの間仕切りを撤去してワンルームに。
アイランドタイプの大きなカウンターが素敵な、キッチンスタジオにリフォームしました。

ビフォー
中古マンションをお料理教室のキッチンスタジオに
リフォーム前3DKのマンション

間仕切りを撤去します。

beforeafter_before2_06
アフター
中古マンションをお料理教室のキッチンスタジオに
リフォーム後のキッチン

中古マンションをお料理教室のキッチンスタジオに

ビフォー
中古マンションをお料理教室のキッチンスタジオに

キッチンは [LIXIL リシェル]を
ご選定いただきました。

生徒さんたちがぐるりと囲める広々としたカウンターの、清潔感いっぱいの明るいキッチンになりました。
キャスター付のダストボックスは場所を移動して使うこともできます。

beforeafter_before2_06
アフター
中古マンションをお料理教室のキッチンスタジオに

中古マンションをお料理教室のキッチンスタジオに

中古マンションをお料理教室のキッチンスタジオに
オーブンが3つ並んでも余裕の広さです。

カウンターは4mを超える長さ。
生徒さんたちが集まって
パン生地を捏ねることができます。

ビフォー
中古マンションをお料理教室のキッチンスタジオに
リフォーム前のトイレ


[LIXIL リフォレI型]
 にお取替え

エコカラット(LIXIL ヴィーレ)
施工しました。

beforeafter_before2_06
アフター
中古マンションをお料理教室のキッチンスタジオに
リフォーム後

DSCN3960

トイレ手洗いはキャビネット付
[LIXIL キャパシア]

扉カラーはスノーホワイト
カウンターは人造大理石のパールブラック
をお選びいただきました。

ビフォー
5b9d8abf19cc8fdb495315b3ee168a3d
リフォーム前玄関

beforeafter_before2_06
アフター
DSCN3963
リフォーム後

玄関土間は[ADVANのギアマンテ]
を施工しました。

ビフォー
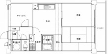
中古マンションをお料理教室のキッチンスタジオに
リフォーム前の図面

beforeafter_before2_06
アフター
中古マンションをお料理教室のキッチンスタジオに
リフォーム後の図面


hyou

関連のキッチンリフォームを見る

リフォームのケンテック公式Instagramはこちら
page top