リフォームのケンテック
  • TEL

    0120-25-4145

    受付時間 09:00-18:00(日祝除く)

  • MAIL

    お問い合わせフォームへ

    年中無休24時間承り中

作るのも片付けも♪家族みんなのキッチンスペース 港区K様邸

リフォームのきっかけ

以前浴室の工事をご依頼いただいた港区のK様。

この度はキッチンと内装のリフォームをさせていただくことになりました。
対面キッチンへのレイアウトの変更や、リビングのインテリアのご提案など、K様のご希望をうかがいながらステキなリフォーム工事となりました。

ビフォー
作るのも片付けも♪家族みんなのキッチンスペース 港区K様邸
リフォーム前

beforeafter_before2_06
アフター
作るのも片付けも♪家族みんなのキッチンスペース 港区K様邸
リフォーム後のキッチン

トクラス Berry にお取替え。
コの字型だったキッチンを大きくレイアウト変更。
シンクはリビング向きのI型でシンプルなデザインです。
吊戸棚を撤去してリビング側がより開放的になり、広く家事動線がよくなりました。

ビフォー
作るのも片付けも♪家族みんなのキッチンスペース 港区K様邸
リフォーム前 キッチン側から

beforeafter_before2_06
アフター
作るのも片付けも♪家族みんなのキッチンスペース 港区K様邸
リフォーム後 キッチン側から

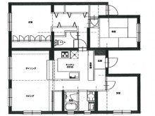
ビフォー
作るのも片付けも♪家族みんなのキッチンスペース 港区K様邸
既存図面

beforeafter_before2_06
アフター
作るのも片付けも♪家族みんなのキッチンスペース 港区K様邸
改修後図面


作るのも片付けも♪家族みんなのキッチンスペース 港区K様邸

作るのも片付けも♪家族みんなのキッチンスペース 港区K様邸
●人造大理石シンク●

色素の強い赤ワインや、カレー等も、汚れが染み込みにくいのでスッキリと落とせます。
シンクやカウンターは熱や衝撃に強く、万が一すりキズがついてしまっても、ナイロンたわしで補修できます。
カウンター奥のバックガードを高く立ち上げることで、コーキングのつなぎ目や段差がなく、汚れがたまりにくくなっています。
排水部分も継ぎ目のない一体成型なので、簡単なお手入れで清潔に保てます。

作るのも片付けも♪家族みんなのキッチンスペース 港区K様邸
レンジフードとガスコンロ、食器洗い乾燥機は既存の物を脱着して利用しました。

作るのも片付けも♪家族みんなのキッチンスペース 港区K様邸
キッチン対面部分の上部には、吊り戸収納ではなくて棚を設けました。

カウンター上部にはダウンシーリング照明を付け、カウンタートップがとても明るくなりました。

作るのも片付けも♪家族みんなのキッチンスペース 港区K様邸

作るのも片付けも♪家族みんなのキッチンスペース 港区K様邸
工事写真①

作るのも片付けも♪家族みんなのキッチンスペース 港区K様邸
工事写真②

作るのも片付けも♪家族みんなのキッチンスペース 港区K様邸
工事写真③

作るのも片付けも♪家族みんなのキッチンスペース 港区K様邸

作るのも片付けも♪家族みんなのキッチンスペース 港区K様邸
●インテリア格子●

緩やかに目線を隔てながら空間にアクセントを加えることができます。縦格子は空間に圧迫感を与えずに仕切ることができます。台形の格子形状なので表裏で表情が変わります。

作るのも片付けも♪家族みんなのキッチンスペース 港区K様邸
イメージ画像

作るのも片付けも♪家族みんなのキッチンスペース 港区K様邸
本棚の下には棚下照明を設けました。取付は棚下でも壁面でもどちらでも可能。取替え施工がしやすい設計になっています。

作るのも片付けも♪家族みんなのキッチンスペース 港区K様邸
クロスを貼り換えました。

作るのも片付けも♪家族みんなのキッチンスペース 港区K様邸
イメージ画像

工事内容  キッチンと内装のリフォーム
設備詳細 システム
キッチン
 トクラスBerry スクエアI型
工事費用  約266万円(税込)
工事日数  約10日間 
施工エリア  港区

関連のキッチンリフォームを見る

リフォームのケンテック公式Instagramはこちら
page top