リフォームのケンテック
  • TEL

    0120-25-4145

    受付時間 09:00-18:00(日祝除く)

  • MAIL

    お問い合わせフォームへ

    年中無休24時間承り中

ナチュラルなのにピリッと引き締まったキッチン 目黒区N様邸

リフォームのきっかけ

マンションにお住まいのN様。
ホームページに載っている同じマンションのキッチンリフォームの施工事例を見て頂き、
壁付I型キッチンから対面式のキッチンへの変更をご検討されていました。

同じマンションの施工事例はコチラ↓↓




ビフォー
ナチュラルなのにピリッと引き締まったキッチン
リフォーム前のキッチン

beforeafter_before2_06
アフター
ナチュラルなのにピリッと引き締まったキッチン
リフォーム後のキッチン

LIXILのリシェルSI W2250にお取替え。
壁付のI型キッチンを対面式キッチンに変更し、リビングを見渡すことができる明るく開放的なリビングダイニングキッチンになりました。

扉色は「チェリー」で明るくナチュラルに。
壁紙はシンプルにホワイト、床は石目柄のプリントタイルでシックにピリッと引き締まったキッチンになりました。

1238
【キッチンコンセント】
食洗機横にはキッチンコンセントを設置。ワークトップの手前から電源がとれるので、コードの位置を気にせずに、ハンディタイプの調理家電が使えます。
合計1,500Wまで使える2口コンセントには、水がかかりにくいカバーやフックが付いています。
※画像:LIXIL HPより抜粋


ビフォー
ナチュラルなのにピリッと引き締まったキッチン
リフォーム前の窓

beforeafter_before2_06
アフター
ナチュラルなのにピリッと引き締まったキッチン
リフォーム後のインプラス

洋室には内窓「インプラス」を設置しました。

ナチュラルなのにピリッと引き締まったキッチン

ナチュラルなのにピリッと引き締まったキッチン

インプラスは、今ある窓の部屋側に取付ける内窓で、断熱・結露軽減・防音に効果的です。



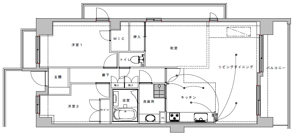
ビフォー
2caace379f407dcde5381a78be90f7d5
リフォーム前の図面

beforeafter_before2_06
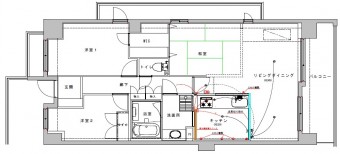
アフター
d8d835cf00ee739b7cf8a91a9b68e4d4
リフォーム後の図面

工事内容  キッチンリフォーム
詳細
(設備機器)
システムキッチン  LIXIL リシェルSI W2550
詳細
(内装)
内窓  LIXIL インプラス
工事費用  約350万円(税込)
工事日数  約10日間
施工エリア  目黒区 

関連のキッチンリフォームを見る

リフォームのケンテック公式Instagramはこちら
page top