リフォームのケンテック
  • TEL

    0120-25-4145

    受付時間 09:00-18:00(日祝除く)

  • MAIL

    お問い合わせフォームへ

    年中無休24時間承り中

カウンターのコモノ問題がスッキリ解決!  世田谷区 S様邸

リフォームのきっかけ

キッチンカウンターの下の部分に収納を取り付けたいとリフォームの御依頼を頂きました。

ビフォー
カウンターのコモノ問題がスッキリ解決!

カウンターの上は、小物が散らかりがちに

なってしまいますね

beforeafter_before2_06
アフター
カウンターのコモノ問題がスッキリ解決!

扉付の収納ですっきりと片付きました。

カウンターのコモノ問題がスッキリ解決!

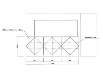
リフォーム後の図面

関連の収納リフォームを見る

リフォームのケンテック公式Instagramはこちら
page top