リフォームのケンテック
  • TEL

    0120-25-4145

    受付時間 09:00-18:00(日祝除く)

  • MAIL

    お問い合わせフォームへ

    年中無休24時間承り中

収納造作でスッキリ生活♪  世田谷区W様邸

リフォームのきっかけ

もっていらっしゃるレコードとプレーヤーうまく収納したいとの事で収納工事のご依頼を頂きました。



ビフォー
収納造作でスッキリ生活♪

リフォーム前の玄関収納

beforeafter_before2_06
アフター
収納造作でスッキリ生活♪

リフォーム後の玄関収納



ビフォー
収納造作でスッキリ生活♪

リフォーム前のリビング壁面

beforeafter_before2_06
アフター
収納造作でスッキリ生活♪

リフォーム後の壁面収納

収納造作でスッキリ生活♪

完全オーダーの壁面収納

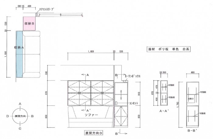
今回はリビングの壁面収納と玄関収納の2箇所の工事をしました。リビングの壁面収納はお持ちの家具の寸法に合わせた完全オーダーです。オーダーですとお客様の希望に合わせて収納を作れますので、ムダなく収納できます。

お客様からも、一番は心がすっきりしました!とのお声を頂きました。



ご提案図面

関連の収納リフォームを見る

リフォームのケンテック公式Instagramはこちら
page top