リフォームのケンテック
  • TEL

    0120-25-4145

    受付時間 09:00-18:00(日祝除く)

  • MAIL

    お問い合わせフォームへ

    年中無休24時間承り中

木製からアルミサッシに―外装全面改修 川崎市Y様邸

リフォームのきっかけ

川崎市幸区の戸建にお住いのY様。外壁が経年によりだいぶ古くなってきたこと、ベランダや階段の劣化、木製の窓が硬くて開きづらいなど、お困りでした。この度、外装を中心に改修することとなりました。

ビフォー
木製からアルミサッシに―外装全面改修 川崎市Y様邸
改修前(母屋)

beforeafter_before2_06
アフター
木製からアルミサッシに―外装全面改修 川崎市Y様邸
改修後(母屋)

外壁、漆喰部塗装、雨戸、サッシ、ベランダ、
など外装の全面的な改修をしました。
ブラウン系のカラーで統一されています

ビフォー
木製からアルミサッシに―外装全面改修 川崎市Y様邸
改修前(子屋)

beforeafter_before2_06
アフター
木製からアルミサッシに―外装全面改修 川崎市Y様邸
改修後(子屋)


ビフォー
木製からアルミサッシに―外装全面改修 川崎市Y様邸
改修前

beforeafter_before2_06
アフター
木製からアルミサッシに―外装全面改修 川崎市Y様邸
改修後


柵と屋根を塗装し天井の波板を交換しました

ビフォー
木製からアルミサッシに―外装全面改修 川崎市Y様邸
改修前

beforeafter_before2_06
アフター
木製からアルミサッシに―外装全面改修 川崎市Y様邸
改修後


雨戸もすべて交換

ビフォー
木製からアルミサッシに―外装全面改修 川崎市Y様邸
改修前

beforeafter_before2_06
アフター
木製からアルミサッシに―外装全面改修 川崎市Y様邸
改修後

階段と手すりを塗装しました

ビフォー
木製からアルミサッシに―外装全面改修 川崎市Y様邸
改修前

beforeafter_before2_06
アフター
木製からアルミサッシに―外装全面改修 川崎市Y様邸
改修後

ベランダはウレタン防水密着工法を施しました

ビフォー
木製からアルミサッシに―外装全面改修 川崎市Y様邸
改修前

beforeafter_before2_06
アフター
木製からアルミサッシに―外装全面改修 川崎市Y様邸
改修後


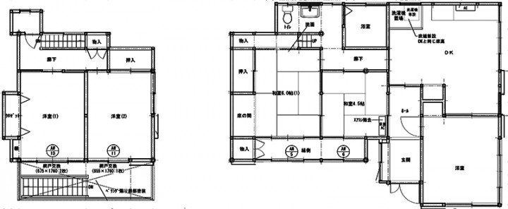
木製からアルミサッシに―外装全面改修 川崎市Y様邸
母屋と子屋、平面図

5c872ce66be95f2454272547e51d489f3










工事写真①

足場を組んでシートで養生します

木製からアルミサッシに―外装全面改修 川崎市Y様邸
工事写真②

サッシの交換

木製からアルミサッシに―外装全面改修 川崎市Y様邸
工事写真③


サッシの交換

 

工事内容  戸建の主に外装のリフォーム
 
工事個所
 
サッシ・雨戸   アルミサッシ取付 
外壁  足場組・サイディング工事
屋根  ポリカ波板工事
ベランダ・階段  鉄骨塗装・防水工事
工事費用  約 530万円 (税込)
工事日数  約1ヵ月半
施工エリア  川崎市幸区

 

関連のエクステリア・耐震を見る

リフォームのケンテック公式Instagramはこちら
page top