リフォームのケンテック
  • TEL

    0120-25-4145

    受付時間 09:00-18:00(日祝除く)

  • MAIL

    お問い合わせフォームへ

    年中無休24時間承り中

設備も住まい方も一新したい 品川区K様邸

トイレには給排水統合タイプの手洗いカウンターを別に取付けたタンクなしのサティスを。
INAXの商品で対応させて頂きました。



ビフォー
設備も住まい方も一新したい

beforeafter_before2_06
アフター
設備も住まい方も一新したい

ビフォー
設備も住まい方も一新したい

beforeafter_before2_06
アフター
設備も住まい方も一新したい

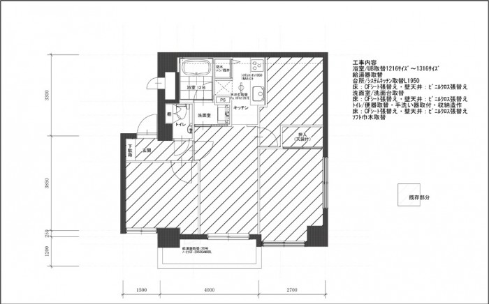
間取り図

設備 INAXサティス
内装 機能性壁紙とINAXエコカラット、クッションフロア
工事総額 約43万円



関連のトイレリフォームを見る

リフォームのケンテック公式Instagramはこちら
page top