リフォームのケンテック
  • TEL

    0120-25-4145

    受付時間 09:00-18:00(日祝除く)

  • MAIL

    お問い合わせフォームへ

    年中無休24時間承り中

斜め天井の浴室交換!1116から1616へサイズアップ 目黒区K様邸

リフォームのきっかけ

風呂が小さく足が伸ばせないので、大きな浴槽に変えたい。
ただ、屋根が傾斜している為、そのままではユニットバスが入らない。
洗濯器置き場と風呂を入れ替えれば、ユニットバスも入るので、そうしたい。
可能であれば、目黒区の住宅リフォーム助成金を使いたい。

というご希望でした。



ビフォー
斜め天井の浴室交換!1116から1616へサイズアップ

リフォーム前の浴室

beforeafter_before2_06
アフター
斜め天井の浴室交換!1116から1616へサイズアップ

リフォーム後のユニットバス

LIXIL アライズ1616にお取替え。
洗面化粧台の位置を変更し、ユニットバスを1116から1616にサイズアップ!!
お客様ご希望の足が伸ばせる浴槽となりました。

斜め天井の浴室交換!1116から1616へサイズアップ

リフォーム後のユニットバス

斜め天井の浴室交換!1116から1616へサイズアップ

リフォーム後のユニットバス

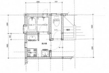
ビフォー
リフォーム前の図面

beforeafter_before2_06
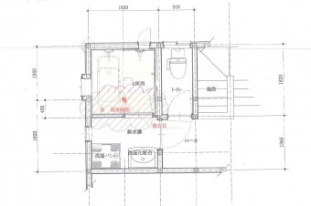
アフター
リフォーム後の図面

工事内容  お風呂のリフォーム
詳細
(設備機器)
ユニットバス  LIXIL アライズ1616
壁パネル  ホワイト(アクセント:ポテチーノベージュ)
 ベージュ
浴槽  ロング浴槽
工事費用  約151万円(洗面工事含む)
工事日数  8日
施工エリア  目黒区 

関連のお風呂リフォームを見る

リフォームのケンテック公式Instagramはこちら
page top