リフォームのケンテック
  • TEL

    0120-25-4145

    受付時間 09:00-18:00(日祝除く)

  • MAIL

    お問い合わせフォームへ

    年中無休24時間承り中

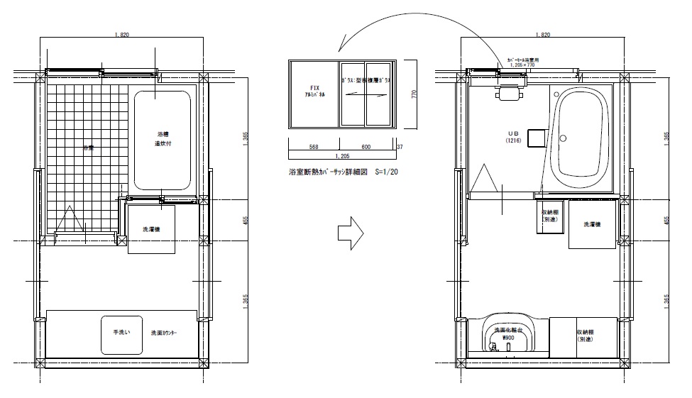
土台も補修し、安心して入浴できる浴室に 大田区O様邸

リフォームのきっかけ

戸建てにお住まいのO様。
浴室まわりの土台が腐食している可能性があり、在来の浴室からユニットバスへのリフォームを
ご検討されていました。

ビフォー
土台も補修し、安心して入浴できる浴室に
リフォーム前の浴室

beforeafter_before2_06
アフター
土台も補修し、安心して入浴できる浴室に
リフォーム後のユニットバス

TOTO サザナHTシリーズSタイプ1216を設置しました。大きかった窓も小さく作り直し、スライドバーなどが設置できるようにしました。

ビフォー
土台も補修し、安心して入浴できる浴室に
リフォーム前の浴槽


beforeafter_before2_06
アフター
土台も補修し、安心して入浴できる浴室に
リフォーム後の浴槽 
浴槽はラウンド浴槽です。肩まわりはゆったりとしたデザインで、浴槽のフチは出入りや立ち座りの際に握りやすくなっています。

土台も補修し、安心して入浴できる浴室に
リフォーム後のユニットバス(床)

床はお掃除ラクラクほっカラリ床。床表明に特殊加工がしてあり、親水効果により皮脂汚れなどが取れやすくお掃除がしやすい構造となっています。乾きやすいのでカビも生えにくいです。

ビフォー
土台も補修し、安心して入浴できる浴室に
リフォーム前の洗面化粧台

beforeafter_before2_06
アフター
土台も補修し、安心して入浴できる浴室に
リフォーム後の洗面化粧台

TOTO オクターブW900にお取替え。水栓が壁面に設置してあるので、根元に水垢がたまりにくくなっています。


ビフォー
土台も補修し、安心して入浴できる浴室に
リフォーム前の洗濯機スペース

beforeafter_before2_06
アフター
土台も補修し、安心して入浴できる浴室に
リフォーム後の洗濯機スペース

浴室エリアが少し小さくなったことで、広々とした洗面脱衣スペースが確保できました。

土台も補修し、安心して入浴できる浴室に
浴室・洗面改装プラン

工事内容  お風呂・洗面のリフォーム
詳細
(設備機器)
ユニットバス    TOTO サザナ HTシリーズSタイプ
壁パネル  クレアライトグレー
浴槽  ラウンド浴槽
洗面化粧台  TOTO オクターブ W900
工事費用  216万円 (税込)
工事日数  約2週間
施工エリア  大田区 

関連のお風呂リフォームを見る

リフォームのケンテック公式Instagramはこちら
page top