リフォームのケンテック
  • TEL

    0120-25-4145

    受付時間 09:00-18:00(日祝除く)

  • MAIL

    お問い合わせフォームへ

    年中無休24時間承り中

ビンテージマンションのハーフリノベーション

ビンテージマンションのハーフリノベーションをさせて頂きました。

ご希望の中の1つが「ゆとりのある洗面化粧室」
という事で

b
Beforeです。

IMG_1668-e1721030364125
幅75㎝の洗面化粧台と

IMG_16581-e1721030543793
横に洗濯機。

よくあるレイアウトです。

After
Afterです。

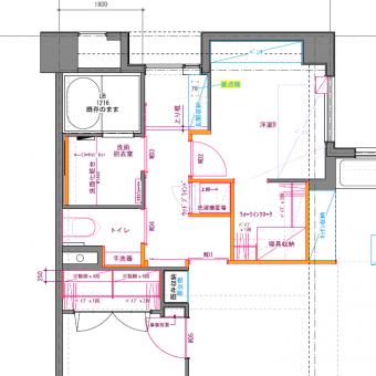
建築図面と現調からギリギリ排水が取れそうなので

松本お勧めの<洗濯機置場を廊下に>移動するご提案をさせて頂きました。
その結果

IMG_3325-e1721030859331
こんな洗面化粧室になりました。

洗面化粧台は
LIXILのルミシスです。
幅は元のほぼ倍の147㎝

IMG_3330-e1721031327757
タオルウォーマーも設置しました。

ピーエス工業のTSNEです。
注.納期は1ヶ月程になります。

IMG_3313-e1721031658180
廊下はこんな様子です。

左のガラリの所が洗濯機置場です。

IMG_3312-e1721031799727
ベストは引戸ですが、今回は引き込むスペースが取れません。

という事で、ウッドブラインドを使いました。

タチカワブラインドのフォレティアです。

IMG_3309-e1721031894240
ブラインドを上げると洗濯機が現れます。

ウッドブラインドは上げるのが少しおっくうです。
毎日開け閉めしたい場合はロールスクリーンの方が良いのですが、印象はだいぶ変わってきます。

お問い合わせはこちら
リフォームのケンテック公式Instagramはこちら
page top